【NICE耐思】位于“亚洲玉都”揭阳市中心,是一个建筑面积超1200平方米的综合型专业沙龙空间,毗邻榕江与市政广场,是揭阳市核心商圈区域。独栋建筑物难能可贵在这闹市中偏安一隅。【NICE耐思】的中文含义是“美好的”“令人愉悦的”,客户希望在地建立一个充满无限可能性的品质沙龙空间,以承载他们的极致手艺与国际美感,为这座城市注入更多美好的事物。
[NICE] Located in the center of Jieyang, the “Emerald Capital of Asia”, it is a comprehensive professional salon space with a construction area of more than 1,200 square meters. Adjacent to Rongjiang River and Municipal Plaza, it is the core business district of Jieyang City. In this downtown area, single buildings are rare and precious. The Chinese meaning of [NICE] is “beautiful” and “pleasant.” The client hopes to build a high-quality salon space, carrying its superb technology and international style with unlimited possibilities, and injecting more beautiful things into the city.


【GGD好好设计】持续践行探索与冒险和试验,通过对这个行业一个旁观者的角度去思考与实行,希望可以满足在地性材料及工法与现代化的结构形态产生碰撞、以未曾有过的方式突破当代人们对于沙龙空间的固定认知,呈现真正意义上的“体验迭代”。我们的想法是通过一个纯粹与简洁的空间作为基本载体的同时植入“未知”,以致敬这班美业后浪。
[GGD Double Good Design] Continue to break through exploration, adventure and experiment. Thinking and practicing from the perspective of consumers, we hope to cope with the collision of local materials and construction methods with modern structural forms in an unprecedented way. This approach breaks through contemporary people’s fixed understanding of salon space and proposes a true “experience iteration”. Our idea is to use pure and concise space as the basic carrier, while implanting “unknown” to pay tribute to the new generation.


咖啡色的铝板与石漆作为主要材料,为厚重的体量赋予了微妙的质感,刻意退入的部分为核心入口,呈现出现代的秩序观感,与场地附近的老建筑物形成强烈对比。轻盈且厚重、低调又分量十足,在这熙熙攘攘的闹市中显得谦虚又自信。
Brown aluminum panels and stone paint are the main materials, providing a subtle texture to a large amount of space, and the deliberately returned part is the core entrance, presenting a modern sense of order, in sharp contrast with the old buildings near the site. He is light, low-key, heavy, and humble and confident in this bustling city.


【GGD好好设计】色系的灵感来源于“星际大战”,采用了银灰色的阳极氧化铝板,搭配以黑白武士,局部点缀“幻彩色”与“光剑”如此具有穿越星际的色系在空间中以超乎寻常的形态“呈现-诠释-转换”,与结构相结合打破了空间原始的边界。
[GGD Double Good Design] The color system is inspired by “Interstellar Wars”, using silver-gray anodized aluminum plate, with black and white samurai, partially embellished with “magic color” and “light saber”. “Present-Interpret-Transform”in an extraordinary form in the space, combining with structure breaks the original boundary of the space.


材质上的天然气质,太空铝与光,纵横交叉,包裹感十足的太空能量舱,为人们带来新的观感体验,制造出沉浸其中的未来感,让等待多出几分期待。
The natural attributes in the material, the intersection of spatial aluminum and light in the vertical and horizontal directions, and the full space energy capsule bring people a new look and feel, creating an immersive sense of the future, which makes people wait for the process Always full of expectations.

尤里·阿列克谢耶维奇·加加林(1934-03-09—1968-03-27),苏联航天员,苏联英雄,苏联红军上校飞行员,是第一个进入太空的地球人,也是第一个从太空中看到地球全貌的人。至此之后人类从未停止探索的步伐。
Yuri Alekseyevich Gagarin (1934-03-09—1968-03-27), Soviet astronaut, hero of the Soviet Union, and pilot of the Soviet Red Army colonel, was the first Earth to enter space Man is also the first person to see the full picture of the earth from space. Since then, human beings have never stopped exploring.


穿梭过金属展示架,非典型的展架形式,金属管的无序支撑,托盘则是由一片片实心不锈钢手工打磨而成,再嵌入金属管。几乎无厚度感般轻盈的展示托板高低错落的节奏与韵律,再辅以光源,形成神秘光影变化。使产品更有计划地不经意间吸引到体验者的视线。
Through metal display racks, atypical display rack forms, disorderly supported metal tubes, trays are hand polished with solid stainless steel blocks and then embedded in the metal tubes. It shows the rhythm and rhythm of the staggered height of the tray, with almost no sense of thickness, and is supplemented by light sources to form mysterious light and shadow changes. Make the product more attractive, and inadvertently attract the attention of the experiencer.



“无限镜”,通过建构的方式重新定义镜子的展示方式,以交错的视觉效果凸显出人与镜子微妙的联动关系。“设计师林彦先生”将五个时代巨轮有序阵列植入空间,这种结构的植入迫使周边与它被动重组成各种形态迥异的负空间,使它的多样性超越结构预期,以丰富的空间体验向人们诠释品牌差异性。
“Infinite Mirror” redefines the way the mirror displays through the structure, highlights the subtle connection between people and the mirror, and has a staggered visual effect. “Designer Mr. Lin Yan” implanted the five great wheels of the era into space in an orderly manner. The implantation of this structure forces the surrounding environment to passively reorganize into various forms of negative space, which makes its diversity exceed the expectations of the structure. The rich spatial experience interprets brand differences to people.



若是过度的堆砌或偏执般对于材质的苛求都是无意义的。材质应该代表某种情感语境,辅助想法去构建一个可感知优越性的场所是【GGD好好设计】与【NICE耐思】的精神共识,让空间成为品牌与年轻消费者快速建立起深刻的情感纽带。
If there is too much accumulation or paranoia, the material appears meaningless. The material should represent a certain emotional background. The spiritual consensus of [GGD Double Good Design] and [NICE] is to help this idea establish a place with obvious advantages, so that the space becomes a brand, and young consumers quickly establish a deep emotional bond.

三三不尽,六六无穷。创造人与人、人与空间、空间与空间的隔离与交织艺术,用虚实营造出意味深长的空间罅隙,形成了更富有情感体悟的游园记忆。
Three and three are endless, six and six are endless. Create the art of isolation and interweaving between people, people and space, space and space, and use virtual reality to create meaningful space gaps, thereby forming a more emotionally connected haven.




人们在专业理发店的时间及密度正逐年稳步增长,截止至2019行业权威统计数据新女性消费群体每年至少到沙龙接受专业沙龙服务不少于90+次,男性消费者普遍也保持两周即到发廊接受专业造型服务以保持个性形象,这是一个高频率的市场行为,【NICE耐思】降低容积率以换取体验者更优质的沙龙体验,也为发型师提供了更独立的创作环境。消解切分并强化了个体在集体中的共存感。
The frequency of consumers receiving professional hairdressing services has steadily increased year by year. According to the statistics of industry authority [WELLCREW], by 2019, the proportion of new female consumers who enter salons to receive professional salon services will be no less than 90 times a year. Male consumers usually enter salons within two weeks to maintain their personal image. This is high-frequency market behavior. [NICE] reduced the land occupancy rate in exchange for a better salon experience for the experiencers, and also provided a more independent creation for the surrounding environment of the hair stylist. Eliminate subdivisions and enhance individual coexistence in the collective.



人际交往的空间距离与情感距离,往往以相悖的形式存于陌生人之间。染烫是服务时间较长的环节,陌生人之间四目相对持续3+个钟头对于体验者来说是需要克服莫大的心理压力,【GGD好好设计】在有限的空间中借古喻今“曲水流觞”让亲密的消费者可以自由互动,令陌生的消费者可以自得其所,【NICE耐思】是生活方式也是新型社交场所。
The spatial distance and emotional distance of interpersonal communication often exist between strangers in contradictory forms. Dyeing and perming are long service periods. The four eyes between the strangers looked at each other for more than three hours. Overcoming the huge psychological pressure is the pain point of the experiencer. [GGD Double Good Design] In a limited space, the “qushui concept” enables intimate consumers to interact freely and makes strange consumers feel at home. [NICE] is a way of life and a new social place.

迷失在太空废墟之中,在全封闭的空间之中做头部SPA,严格控制每个头疗间的客数,体感门禁有效管理声音与气味,轴对称建筑语言搭配纯净的色调,空间在扩张的同时保持着整体画面的平衡及统一,值得一提的是这款太空铝SPA床是为该项目专属研发而生产,【NICE耐思】在专利期限内拥有绝对专属权。
Lost in the space ruins, do head spa in a fully enclosed space, strictly control the number of guests in each head therapy room, somatosensory access control effectively manages sounds and smells, axisymmetric architectural language with pure colors, the space is expanding at the same time Maintaining the balance and unity of the overall picture, it is worth mentioning that this space aluminum SPA bed is produced for the exclusive research and development of the project, and [NICE] has absolute exclusive rights during the patent period.

我们发现染烫的气味相对分子质量比空气的大一些,所以会沉积在距离地面一米左右的位置内。多番实验后【绍刚工程】自制空气循环系统,配合气韵流动理论,调整风口维度,并合理隐藏美化,有效净化空气。
We found that the relative molecular mass of dyeing and hot odor is larger than that of air, so it will be deposited in a position about one meter from the ground. After many experiments, [Shaogang Project] self-made an air circulation system, matched with the theory of air flow, adjusted the dimensions of the tuyere, and reasonably concealed and beautified to effectively purify the air.

在柔软和煦的日光环绕中,【NICE耐思】正以另一种姿态展示着自己对这个世界的期许与热忱。进化迭代着,如同他们那与国际接轨的美学理念与精湛技艺,执着的探索精神。
Surrounded by soft and warm sunlight, [NICE] is showing its expectations and enthusiasm for this world in another posture. The evolution is iterating, just like their aesthetic philosophy and exquisite skills in line with international standards, and their persistent spirit of exploration.
设计思路推演(GIF)
Design idea deduction

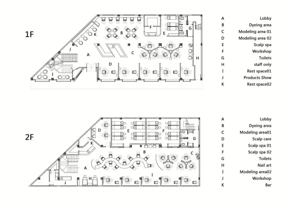
平面图
Floor plan


林彦,高级环境艺术设计师,启始于广东工艺美术学院设计系(环境艺术设计专业)。系「好好设计」创始人兼艺术总监,粤东90后设计师杰出代表。于2016年创办「好好设计」机构,秉承“好设计+好执行=好结果”为目标导向,定制最合适于“第一用者”的专属设计。从业近10年以来创作无数「好设计」,是无数甲方项目“吸睛”秘密武器,与忠实合作伙伴。
Lin Yan, a senior environmental art designer, started her career in the Department of Design of the Guangdong Academy of Arts and Crafts (Environmental Art Design). He is the founder and artistic director of “Good Design” and an outstanding representative of the designers of Yuedong 90. In 2016, we established the “Good Design” organization, adhering to the goal of “Good Design + Good Implementation = Good Results”, and customized the exclusive design that is most suitable for the “first user”. In the past 10 years, he has created countless “good designs”, and is the secret weapon of countless Party A projects, and a loyal partner.

「好好设计」是极富创意思维,追求人文气息的精品型设计团队。作品涵盖各类业态,多元化的经验积累与探索,夯实的理论与实践体系,尤为擅长捕捉项目优势,突破认知局限。
我们主张理性科学的设计方法,讲究设计策略,善于解决问题,注重塑造作品气质。
赋予每个项目鲜明的个性与长盛的生命力,配合数字化分析工具和科学的设计方法,高效创作富有前瞻性的「好好设计」。
“Good Design” is a boutique design team with creative thinking and a humanistic atmosphere. The works cover all kinds of formats, diversified experience accumulation and exploration, and a solid theoretical and practical system, especially good at capturing project advantages and breaking through cognitive limitations.
We advocate rational scientific design methods, pay attention to design strategies, be good at solving problems, and pay attention to shaping the temperament of works.
Give each project a distinct personality and longevity, and cooperate with digital analysis tools and scientific design methods to create forward-looking “good design.”
︱金奖︱2019年度︱意大利A‘ DESIGN AWARD室内设计类
︱金奖︱2015年度︱中国室内设计联盟最佳度假酒店客房设计
︱金奖︱2019年度︱集美国际设计奖优秀室内设计师作品评定
︱银奖︱2018年度︱发展中国家建筑设计大展&国际青年设计竞赛
︱银奖︱2018年度︱得利空间色彩大赏&色彩风尚演绎奖
︱翼奖︱2018年度︱中国室内装饰协会与深圳陈设艺术协会联袂评定
︱授予︱2019年度︱40UNDER40中国设计杰出青年
︱授予︱2018年度︱5A级汕头装饰行业协会个人成就奖
︱授予︱2019年度︱芒果奖中国人文设计大赛晋级者
︱提名︱2016年度︱绿地集团创意空间设计大赛全国25强
︱提名︱2019年度︱立邦“未来之星”青年设计师大赛全国百强
︱提名︱2015年度︱粤东首届艺术空间设计大赛优胜奖
项目名称:耐思美业
Project name:NICE SALON
设计方:好好设计
Design:DOUBLE GOOD DESIGN
联系邮箱E-mail:651502334@qq.com
WeChat:651502334
项目设计&完成年份:2020年3月(启动设计)2020年7月(项目竣工)
Design year & Completion Year:March 2020 (start design) July 2020 (project completion)
主创及设计团队:林彦&丹仪
Leader designer & Team:LinYan & DanYi
特别顾问:周清
Special adviser: FE
项目地址:中国/广东省/揭阳市
Project location:China/Guangdong/JieYang
建筑面积Gross Built Area (square meters):1200M²
摄影版权:义稳&林荟摄
Photo credits:YiWen & Lin-Vision
合作方:软装:好好优选/工程:绍刚工程
Partners:Casa:GOOD SELECT Construction:SHAOGAN CONSTRUCTION
主要材料:大理石/砂面金属/乳胶漆/涂装木饰板/ RC防水微喷背胶/线型灯/幻彩玻璃
Main materials:Marble / sand surface metal / latex paint / painted wood veneer / RC waterproof micro spray back glue / linear lamp / Magic Glass
撰文:林彦


