“ 美不仅在物,亦不仅在心, 它在心与物的关系上面, 它是心借物的形象来表现情趣。 ——朱光潜 ” 以多元设计角度诠释,表达人生每一面都精彩,是设计师借助设计语言与符号,所表达的一种生活和精神状态。这一立意的展开,基于三个层次和境界,到达最后的呈现。
视野是格局,细节见品质
契合是人与空间相融,人在其中达到最佳舒适感的根源。这一空间的业主为一对中年夫妻,事业有成,见过世界,历过人生。 自律、不将就,是他们人生成功的关键词,从一个细节便能窥见,那就是每天下午四点钟雷打不动的健身时间。干练、利落是他们的性格,而生活品质也是他们不妥协的要求,这一点奠定了空间的基调。
一层的设定更偏重为“开放” 迎接的仪式,待客的品位 以及居住者的练达型格 都以设计的语言向到来者直白传达
空间不是形式,而是形式和内容的统一 现代的形式是基于当下审美的逻辑 每一个点、线、面、形、色、材、韵 都指向着内容的意义、情感与价值 这是对东方基因与文化的钟情
黑白撞色的经典是空间艺术的起点 其中星星之火般的点缀,是恰到好处的点睛取舍 却撩起整个层次韵律上的起伏 硬装造型孕育出错落的艺术形态 既是基于空间天然条件的灵感来源 也是后天设计忠于多元使用需求的衡量
留白的艺术徐徐不疾地把控着整个节奏 软装的现代天分中自带浓烈的中式韵味 借景喻情是空间意境的无限延伸 如若空间能说话 一定是对优雅与从容人生的唱和
中式气质的内涵隐而不露,是藏锋的东方智慧 将重要话语权交予当代艺术的语言表达 简洁几何分割的布局设定 是潮流风情,是古雅格调 色块碰撞出的质感与温度 全新的尝试与多元融会 再推敲,演变出一种新形态下的现代中式风情
以一角窥全局 设计的巧思立意总有迹可循 一盏台灯的小巧,是吸睛的焦点 木与金属的搭档经过艺术加工 是整个空间古韵与现情交融关系的最佳投射 氛围的营造,空间元素的交互 在每一处设计点上皆有初衷来源
空间是布局的艺术,也是创意巧思的自由化境 通透的玻璃材质,延伸至整个空间的高度 是分区的设计语言,也是若隐若现的视觉魔术 串联起公共空间、功能西厨和独立卫生间的动线 既赋予每一个独立空间私密的权利 也没有剥夺他们互相交流的连接点
细节深蕴精致,平凡亦可造境 隐入式的洗手间在功能需求之上 也被设计注入新的灵感 酷炫黑搭配玫瑰金的吸睛 宛若天幕悬挂一轮圆月 借由玻璃材质的光影魔术 可折叠的巧妙悬念与隐藏式镜面 在视觉上衍生出圆的错位叠拼和呼应 开与合,朦胧与通透,意境与质感呼之欲出 中式含蓄的借景手法 当代奔放的波点艺术 再一次产生交集,和谐过招
衣食住行乃内心生活的具象化 大面积留白的意蕴,与整体线条的弃舍 都统一于空间的需求意向 那就是回归到型格上的干练 与空间体验上的静谧与安宁
贰. 现代风情,中式情怀
设计逻辑是多元化与平衡融合的立意
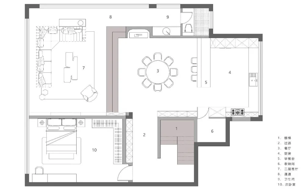
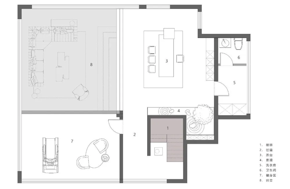
400㎡的三层空间尺度,给予多样化探讨更多可能。在同一建筑体中,我们在设计立意上,定义了多种设计表达方式,既在当代中式的大框架里,又不断在表达细节上。
相对于一层的开放共享性 二层空间更侧重于两人独享的私密 偷得浮生半日闲,对坐闲敲棋子 看云卷云舒,试烟火风味 诗酒趁年华
豁然开朗是尺度格局的天然优势,也是内心独白 露天造型是建筑天然结构的意外惊喜 近4米的超大圆径视角,被辅以后天的再定义 自动幕布是充满魔法的神奇机关 天景大开的沐光模式是自然的恩赐 夜晚的晴空是收集历代星辰的惬意
错层设计制造出同一空间的韵律感 既保证了格局上流动的通透感 又营造出错落有致 二者相对独立,宛如一个和谐的平行世界 造境者的想象力被放入生活的未来规划 每一个空间都张弛有度,别有洞天 可滋生出百种体验
几何式陈列柜的设置 并没有精确到未来的一步到达 而以深沉隐藏的形式,消融于立面的布局里 等待着未来生活的日常去盈满 主人的兴之所至是开启他们高光时刻的钥匙
东方意境借由西方手法去成全 是空间设计中贯穿始终的立意 雕塑艺术家蔡尉成 AboutCheng 以西游记为主载的《化变自在》雕塑展中的“来去” 成为这一立意不谋而合的首选 东方神话的精神内核,当代艺术的表达手法 碰撞出玩趣的火花,成为广阔空间里的一抹跳跃
烟火气的加入,完成了对生活的完整讲述 空间延续了完全开放与划区而定的起承转合 餐厅是其中的过渡 在功能和色彩上自成隐藏的分界线 一半是归素底色,一半是浓墨重写 一半是滋味江湖,一半是大千世界
叁. “言有尽而意无穷”
以设计语言的平衡,创造新的空间情绪
空间设计之于生活,在于一眼可见的功用形式,更深层的则是有尽之言,无穷之意的细水长流。在具体创意中,设计在形式上更偏重于当代的表达,在内核上又保留了东方的气质,以圆、对称、色彩、小的情境符号等角度,刻意去轻描淡写,但是东方的魂已深入其中。
三层着重于自由造境 于是便诞生了一个遗世独立的茶境 将诗意的栖居凝结在这一超然境界 圆满了心中对于中式情怀的朝圣
始于纯粹,归于自然,是所有登高后的人生寄望 纵深布局让造境有了更“豪横”的天资 空间一角的山石松柏围合,成为整个三层的焦点所在 也是所有空间中 当代与中式风情完美融合的集大成者 光是氛围营造的高手,那便借由天景窗请光入室 后天呼应是默契的助手 顶面天光倒影,地面枝叶嬉戏 清茶氤氲,光影婆娑 身在一室,心向自然
关于项目信息 项目名称:栩栩合居 项目地址:山东 临沂 项目性质:私宅 项目面积:400㎡ 完工时间:2020.7 设计公司:本白设计 设计主创:刘峰、Ben 项目施工:本白施工 视觉陈设:HuGo绘果软装 摄影支持:徐义稳
本白空间设计创办于2018年,致力于高质量的住宅空间与商业空间的设计与营造,概括内容包含设计,软装,施工,同步化整案呈现,以设计为主导,我们提倡设计的原创性,人与空间的关联性,注重体验感与互动,遵循生活轨迹的攀升与改变,以定制的形式为每一位业主提供优质的理念和落地方案,公司拥有设计与施工双资质和优质的施工经验,匠心独运,为精英人群营造旺盛力优质空间环境。

