森林住宅是对物质、光线和建筑与景观融合的探索。坐落在南非德班的一个独特的森林庄园,森林住宅力求用干净的水平线勾勒景观。

家庭庆祝原材料,这有助于软化建筑形式和周围珍贵景观之间的过渡。这种原始材料加强了建筑构造背后的诚实。

通过对材料和形式的微妙操纵,我们试图改变感知。通过倒角的野蛮边缘,我们揭示了混凝土的凉爽优雅。混凝土框架由钢柱支撑,由笨重变为轻巧。

游泳池里里外外交错,把天空和云彩的短暂反射深深吸进屋里。屋顶上的原生野草模糊了景观和建筑之间的界限。除了增加一个生动的听觉体验,种植提供了一个更实用的绝缘层从外部。

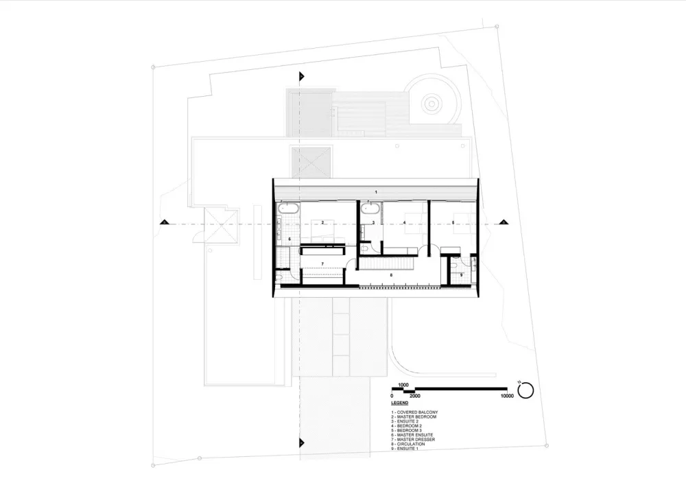
从概念上讲,住宅由地面上的两个矩形盒子(“服务”和“存储”盒子)组成,位于场地的两侧。在另一个盒子上面,“活的”盒子,横跨两个较低的盒子。

西边的“服务”箱里有三个车库、洗衣房、厨房、员工公寓、健身房和办公室。东边的“储物箱”存放一般的储物箱和专门的设备。两处住宅都覆盖了木质屏风,以确保隐私不受开放式“游戏”区域的影响,“游戏”区域位于“睡眠”盒子的正下方。

这两个底层盒子提供了来自邻居的私密空间,并将北部景观和远处海景的珍贵景观框起来。

所有的门和木屏风无缝地滑进洞中,确保洞穴体量与景观直接互动。这栋房子是围绕亚热带德班气候和年轻客户的社交生活方式设计的。











地址:南非 设计:Bloc Architects 年份:2017 摄影:Peter Oravecz
版权声明:本文内容由用户自行发布上传或投稿由设计芝士代为发布,版权归原作者所有,设计芝士不拥有其著作权,亦不承担相应法律责任。如果您发现本站中有涉嫌抄袭或侵权的内容,请点此提交工单进行举报,一经查实,本站将立刻删除涉嫌侵权内容。


