生活,是一场与艺术的邂逅
 
 
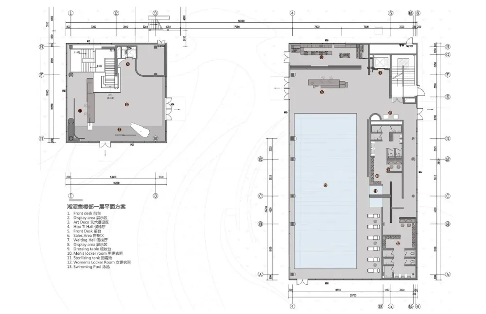
序厅 PREFACE HALL
 
 
 
 
 
 
整个空间以白色大理石为基底,四面玻璃全墙幕引入自然景观,通透而大气简练。室内水景的引入成为整个空间的灵魂,悠悠水池模糊了室内外边界,增添空间的空灵之境,在对自然至纯至简的呈现中,缔造空间的视觉感知一体化。
 
 
 
 
 
 
明朗与开阔间,向外接受自然天光的温润声色,向内完美地嵌入设计线,贯彻设计语言的流动性和连续性,自然的质感与艺术的气息在此融为一体。前台背后弧形墙体的设计,在一片直线条棱角中柔化中和空间的冰冷感,在保证隐私性的同时,亦构建了空间的视觉中心,点睛空间主题。
 
 
沙盘区 SAND TABLE AREA
 
 
 
 
沙盘设置在中空区,大气高阔,连绵起伏的吊灯充盈了上方空间的空旷感,通过高低错落的线条造型,柔化了空间的硬线条,简约而不失流畅,增添了空间的流动之美。
 
 
 
 
透过落地窗看户外景观,将映射入室内空间的自然景观尽收眼底。室内外虚实景观结合,感受人文与自然的和谐,想象未来美好的生活。
洽谈区 NEGOTIATION AREA
大片的落地窗为洽谈区提供极佳的观景面与舒逸的氛围,柔软的布艺沙发,充满质感的皮革,纯净的花艺与绿植,在精炼的设计中更添一分惬意的舒适怡然。
 
 
 
 
 
 
洽谈区承载自室外的自然光源,以暖灰为基底,杂糅出内敛温柔的调性,充盈不同层次的红色,增加设计中点睛的色彩与奢华感。家具节奏性的摆放,让空间错落中带有交流,与室外景观连通,喧闹中带有宁静,带给客人轻松惬意却不失品质的体验。
 
 
水吧 WATER BAR AREA
 
 
 
 
水吧区域的要义为放松休闲,设计摒弃了抽象逻辑语言的冰冷,红色饰品的点缀,定位了“活跃颜色”,创造冲破视觉画面的形式,调节场景氛围,仿若从清晰明朗过渡到丰富多义。
 
 
儿童乐园 CHILDRENS PARK
 
 
 
 
儿童乐园以弧线去划破空间的压抑与拘束,凝练出现代艺术的韵律美感。抽象城堡形态,作为滑梯功能,趣味立显。引入大量艺术饰品与书本,视觉艺术与自由梦幻的思绪融汇于一体,用有限的空间构建无限的想象。
健身区 FITNESS AREA
 
 
 
 
 
 
 
 
泳池空间延续售楼部的设计语言,利用简练的体块穿插形成天花的造型,强化层次感,与清透水景呼应,让空间充满张力。
 
 
 
 
 
 
108户型 意式质感 · 生活艺术品质调和
时尚与艺术是生活的一部分,通过设计将它们很好地融合,生活艺术化,感知生活的品质感。整个空间调和在同一维度里,承载着家居的优雅品质,构筑空间艺术的同时,还原一个真实的家,让家与艺术融为一体,让人们在生活中感知艺术的魅力。
 
 
客厅 LIVING ROOM
 
 
 
 
 
 
客厅线条干净简练,天花的轨道射灯紧密结合了艺术与功能,并赋予了空间更多的活力。松石绿贯穿在优雅舒适的米色系空间,在一片干净优雅中撞入浓浓的品质感与时尚感。流畅的弧度,淡雅的色彩,意式风情的家具演绎着现代生活韵律。
 
 
 
 
 
 
 
 
就餐区 DINING AREA
 
 
 
 
 
 
金属与松石绿碰撞衍生,从客厅一直延续到餐厅。局部亮眼的简约挂饰在这样通透的空间氛围中变化多种层次,烘托出缓解压力,治愈人心的氛围。客厅与餐厅的酒器酒杯,仿佛在舒适优雅的空间格调中渗入一丝慵懒的酒香。
 
 
 
 
 
 
 
 
卧室延续了空间的简约与质感。
 
 
 
 
 
 
主卧的金属与松石绿的融合,让优雅品质的格调弥漫一室。次卧家具、皮革艺术挂画、软装摆件以及边柜的水晶花器,每一处细节无不彰显出对艺术及生活的热爱。
 
 
儿童房加入绿色与黄色的跳色模块,宁静却不失活泼。动物作为这个小空间的主题,巧妙的软装点缀下,不仅没有孤立,反而变得生动,熠熠生辉。在品质奢华中显示了孩子的爱好与能量。
▷ 硬装设计:武汉柒柒柒
C户型 简欧雅奢 · 浪漫生活美学演绎
 
 
简约欧式,褪去原本的冗长繁琐,结合现代生活方式,在纯粹自在空间中注入雅奢气质,材质上选用细腻的皮革,璀璨夺目的水晶和高质感的香槟金金属搭配,精简的家具线条勾勒出简欧风格的灵魂轮廓。整体以浅暖色系为基调,一抹鲜活的黄色充盈在空间的不同层次。通过光、色彩、空间材料之间的微妙感官体验,演绎出当代生活的浪漫美学功能与艺术兼备。
客餐厅 LIVING AND DINING AREA
 
 
 
 
 
 
客餐厅,休闲吧与半开放式厨房整体流畅贯通,以长凳进行空间功能分隔,既保持了空间中最大限度的交融和连续,又让空间具有极大的利用率和使用调配功能。
 
 
 
 
 
 
 
 
空间色彩以暖灰色打底,整体家具装饰品运用浅色,一抹沁人心脾的黄色贯穿在优雅的暖灰色空间中,给予空间注入充满活力的灵魂。
 
 
客厅高贵雅致的水晶灯,细腻柔软的皮革、搭配硬朗的香槟金与大理石,张弛有度,细节处映衬着主人的生活格调。设计师尽量的利用每一寸空间,流畅的线条搭配鲜活的色彩,演绎着现代生活韵律。
 
 
卧室延续了整体的风格,并根据使用者不同做了细节上的区分。主卧增加休憩空间、步入式开放衣帽间,并与主卫连贯流畅动线设计;简约格调与视觉延伸,柔软舒适的皮草床品,温馨中跳脱出精致;浪漫生活的归属感油然而生。
 
 
长辈房采用沉静的浅蓝为主色调,同时保持典雅底蕴,现代舒适。
 
 
 
 
儿童房分别以幽蓝与粉白作为主色调,色彩富有层次,布局动静分明,饰品选择时尚个性,主题明确,充满童趣却不失质感。
D户型 现代简中 · 典雅大气人文风范
 
 
本案设计为现代简中风格,以传承与革新为主要出发点,贯穿过去与当代的设计风潮,以新中式为内核之源,以艺术设计的方式呈现出来,烟火气浸润在空间的人文艺术之中。
客厅 LIVING ROOM
 
 
 
 
客厅设置中空,沉稳的大理石背景结合柔和的皮革,奠定了沉稳宁静的基调,大气不失典雅。大片的落地窗保证光源、开阔视野,光与影,米白灰中点缀的些许翠绿,用取自水墨画的元素,层次丰富给居间赋予了生机,以现代手法演绎出一个雅适而简约的栖息之所。
 
 
 
 
为使开放式客厅与餐厅之间更加饱满并实现价值最大化,客厅以L型沙发及搭配单椅与边几的围合手法,拉伸整个空间的体量感,与中空呼应、尽显大气怡然的家居风范。
就餐区 DINING AREA]
 
 
 
 
 
 
 
 
厨房与餐厅一体化设计,中式餐桌与西式餐吧满足中西式用餐要求,精致细腻的陈设、冷暖相融的材质,体现了简约有品质感的生活追求,在最大程度上满足现代日常生活功能与审美的平衡,并刻录着亲人好友日常汇聚的温情点滴。
 
 
 
 
 
 
 
 
 
 
卧室延续了米白灰的空间基调。主卧融入东方美学的雅致灵动,用原木的细腻刻画出空间的温润与澄静。以屏为墙,床背独特的屏风拼接式设计,巧妙地将休憩空间与衣帽间做功能性分割,可开可合的整排窗户,将客厅的自然光线引入居间,运用朦胧美学营造出当代人文雅致。
 
 
长辈房青绿色系的背景墙,以石竹、祥云为衬,生机盎然与低调奢贵齐享,东方之境融入了细腻饱满的人文情怀。
 
 
 
 
儿童房在嫩绿主调中,点缀活泼明亮的黄色,跳跃的色彩与城堡奇异造型的装饰柜和植物墙饰,趣味性的细节装饰烘托创意的梦幻感,为孩子构建一方童真的梦幻小天地。
 
 
 
 
 
 
我们希望塑造人文品质艺术生活,为创造更美好的生活,展示浪漫生活的惬意而设计,用最质朴的设计语言,延续人文情怀。
项目名称:湘江保利时代
甲方单位:湖南保利房地产开发有限公司
甲方团队:刘城亮、李振宇、张媛、段国庆
施工单位:湖南新宇装饰设计有限公司、中众建设(深圳)集团股份有限公司
展示区开放时间:2020年6月
主要材料:法国木纹、鱼肚金、克罗地亚灰、香槟金不锈钢、意大利木纹


