项目名称:大理国际大酒店
室内设计:深圳九唐装饰集团有限公司
建筑设计:深圳市建筑设计研究总院
 
 
 
 
从酒店远望苍山洱海风景如画
白族文化与现代风格的碰撞
大理国际大酒店坐落于云南大理白族自治州,靠苍山、看洱海,拥有绝佳景观视野。酒店占地约3.6万平方米,总建筑面积约7.5万平方米,365间客房,其中311间全景客房能够看到洱海苍山风光。
 
 
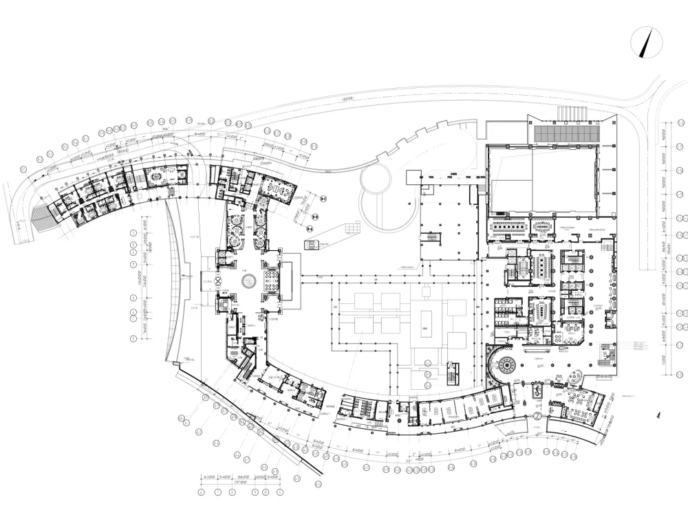
酒店主体建筑分为三栋,其中AB栋建筑及室内展现出浓郁的白族文化,C栋为22层高的国际化现代建筑。大理国际大酒店从设计、建设到竣工周期长达8年,为世界首座白族风格的五星级度假酒店,被列为云南省旅游业的重点项目之一。
 
 
 
 
设计调研初期,设计团队特邀云南当地民族文化研究专家解读白族文化的历史和特点。就地理环境而言,在一千多年前的古大理王国时期,苍山被当地人比喻成世界上最高的城墙,洱海则是最深最宽的护城河。今天大理国际大酒店所在地,地理位置优越,踞龙山山嵴,背苍山、面洱海,拥有观赏日落的最佳位置。在民族传统文化方面,白族建筑门楼飞檐串角、雕梁画栋,照壁形式独特,同时白族还拥有艺术造诣很高的漆器,剑川木雕更是以精湛的技艺以及浓郁的地方民族特色闻名于世。
 
 
错落有致、层层退台的建筑布局
上善若水,仁者乐山,智者乐水
《道德经》:“上善若水,水善利万物而不争。”孔子亦有云:“仁者乐山,智者乐水。”山水代表着天地万物的根本品性,更是中华文化传承的载体。本案以苍山洱海的自然山水为灵感,致力于达到室内、建筑与景观和谐共存,天人合一的状态。
 
 
整个空间贯穿以山与水的形态,虚实相间,意境相生,将室外风景引入室内,室内外气韵相通,令空间显浑厚而不笨拙、灵秀而不漂浮。去除浮华,回归自然,返璞归真,满足人们对度假胜地的极致向往。
 
 
 
 
酒店AB栋建筑宛如两条玉龙,灵动演绎“二龙戏珠”。错落有致、层层退台的布局确保了绝大多数客房都能尽览苍洱风光。前庭设有巨大水幕墙,大堂层高16米,定制的蝴蝶水晶灯与圆形山水装置再造出大理“蝴蝶泉”的震撼场景,“迷离蝶树千蝴蝶,衔尾如缨拂翠湉。”
 
 
 
 
大堂吧用木格栅增加采光顶,打破空间的封闭感,将自然光引入室内,创造出光与影的朦胧之美,人与自然、人与空间更生出和谐宁静的意境。呼应“水”的主题,室内设计上将大堂地面整体抬高30cm,从而实现室内水景蜿蜒散布的别致体验。白族特色木雕装置对称陈列,给予客人尊贵仪式感,精致的雕花细节与绰绰光影互为映衬,引发关于假日的美妙遐想。
 
 
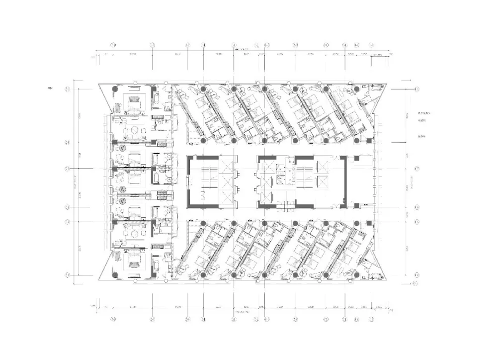
与AB栋建筑所呈现出的鲜明民族文化不同,酒店C楼在设计和建造年份上稍晚,建筑运用现代玻璃幕墙作为外墙,室内设计语言在延续民族文化的同时更具国际性,表现出时尚现代与传统的完美融合。
大堂接待前厅背景墙采用天材大理石篆刻出流动的水波纹理,雕刻精细;不远处的立柱被金属编织成的鱼网所妆点,令人心生出关于古老的洱海捕鱼的情景遐想。
山水文化的精髓贯穿于酒店室内设计中,从每一面望去都有不同景致的艺术吊灯,既如水般变幻优雅,也像每次撒下去的鱼网一样都会有千般姿态。关于海的记忆凝结在一起,璀璨如星。
 
 
室外树荫光阴斑驳,远处洱海波光粼粼,水晶灯随风轻起舞,奏出轻快的“叮铃”声,让悠闲的脚步也随心情轻快起来。
 
 
宴会厅的设计延续白族文化,白色吊灯取意山形,地毯纹理表现海浪,山与水的起伏,气场庄重大气,仪式感十足。
苍山洱海边,观大理十二时辰
度假酒店的设计追求与自然的融合,将视线从酒店本身延伸到外界环境中去,尽可能地打破室内和户外的边界。不仅有利于通风透气,更重要的是能够将独特的地域风光引入到室内,带来无边界的沉浸式度假体验。
 
 
 
 
二楼景观平台的户外婚礼现场、室内外的一线洱海风景泳池……莫不让人为之心动,不必离开室内,也能一眼望尽无边大理美景。海水、天空,在一天的不同时刻展露出不同浓度的蓝色。夕阳渐隐,给云层渡上金边,大理的十二时辰,在这里就能静观其美。
 
 
 
 
为保证客房获得最佳的观景视野,在C栋建筑设计初期,室内设计就从使用者需求出发提前介入平面布局。客房室内简洁大方,摒弃多余装饰,尽量将目光转向室外风景。地毯以米色为主调,水纹图案自由变幻,以少许蓝色跳脱,传递海的意向。挂画以大理民族文化为题材,展现民族风情。套房配备观景阳台和天文望远镜,可在星辰大海中自由遨游。
 
 
 
 
套房卫生间同样享有最佳观景位,清早起床面向洱海升个懒腰,晚上睡前在浴缸里泡澡喝红酒,眺望星河点点,一切喧嚣归于静谧。
 
 
2300平米的复式总套
真正的奢侈,是居于最高处俯瞰山海一色的心境。总统套房位于酒店C栋21-22顶层,除宽敞的主卧之外,还设一间夫人房,两间随从房,配套功能包括庭院式空中花园、全海景健身房、室内恒温泳池、中西餐厅等。
 
 
室内设计以大理白族风格为主,木质雅致,独具特色的斜屋顶,视觉轻盈的木格栅,传承千年工匠精神的剑川木雕,营造出奢华舒适氛围的同时彰显出浓郁的民族文化底蕴。
 
 
 
 
 
 
 
 
 
 
总统套房内的每个功能空间都将室外景致引入室内,令主宾足不出户即能感受到苍山洱海之美,对大理风光留下深刻的印象。每到一地,即感受一地之独特。
室内设计注重体验感,从空间尺度、家具、装饰等细节处做到极致,不仅满足视觉观感,更胜在体验感。
 
 
 
 
 
 
 
 
远山如黛,近水如岚,在极尽开放的空间里对坐或独自远眺。舒适透气的藤编单椅搭配木质长桌,一杯现榨热带水果冷饮,把味蕾也加入到亲近自然的行列。
 
 
以大理之名,塑一座独一无二的度假之所。苍山洱海与云峰蝶泉的自然景致,国际化与民族风的巧妙融合,木雕、石雕、扎染等传统技艺与现代新型材料的完美呈现……无不在向世界传达一种自然纯真的生活方式,一种与时俱进的民族风情度假体验。苍山洱海,亘古不变,经过八年时间打磨的大理国际大酒店,为体验风花雪月,提供了一个全新的视角……
 
 
 
 
 
 
 
 
 
 
深圳九唐裝飾集團有限公司總部設立於中國深圳,區域分公司遍布香港、上海、西安、哈爾濱等兩岸三地。是壹家擁有甲級設計資質,專註於酒店、商業、大型公共、辦公、住宅空間等設計的國際頂尖專業設計公司。公司服務範圍涵蓋室內設計、園林綠化、燈光照明、機電設計、陳設設計、BIM設計的集合型設計企業。
九唐秉承著以客戶為導向,讓設計創造價值,給員工創造美好未來的核心價值觀,主張專業、服務、責任、成長,為室內設計行業的健康發展全力貢獻,成為室內設計行業全專業設計的引領者。


