粟集轻食餐厅位于重庆弹子石老街,总面积130m2,周边历史建筑环绕,沿街面为三扇空高3.6 m的拱形门洞。如何在结合去繁存简品牌态度的同时,发挥历史街区建筑优势,整合细碎空间保有空间,使之更具整体性,在使用较少装饰元素的条件下,保有层次感而又不失细节,提供良好用餐体验,是此次设计的核心。
▼室内空间一览

▼餐厅外观,与历史街区相协调

粟集是一个倡导去繁存简轻松生活的轻食品牌,是由朴开十向的深度合作方“成都华航乐星餐饮管理有限公司”打造。设计师基于他们的品牌态度,提出“减法空间”的概念,即减去繁琐的装饰,保留建筑原始肌理,并通过人工开凿破坏墙体表面,使粗糙感更突出,给予顾客最纯粹的用餐氛围。在主材料选择上,以木桌椅作为缓冲,弱化冲突感,优化空间选用光泽感较强的拉丝金属,与粗糙墙面形成强对比,丰富空间层次,并配合原体验。混凝土、金属、原木、石材,这些质朴的粗加工材料在精心搭配组合后,也能显得层次丰富,细节精致。
▼减去装饰,保留建筑原始肌理

▼不同材料搭配使空间显得层次丰富




在原始场地中,空间曲折破碎,窗边的结构柱更是破坏了空间的视觉整体性。按照普通思路,会单一化座位形式,即大量设置软包卡座,在视觉上尽量显得规整。而我们将空间全部打碎,长桌、散座、卡座全部因景设坐,优先保障用餐者入座后的用餐体验。这使得空间富于变化,行走时和入座后体验完全不同。座位形式丰富,就餐形式也因此变得灵活,实际利用率随之上升,能容纳更多顾客。
▼依照空间设置不同的座位形式

▼不同形式的座位


除了减去繁琐装饰的“减法”,打破原有墙体也是一种选择。我们在狭长走道的尽头破开一扇拱门,引入更多的自然光线,赋予金属变幻的光影。还结合周边街景形成一个独特的借景窗口,提升用餐体验。
▼空间尽头打开一扇拱门,形成借景窗口

▼钢板使空间更为完整连续

在空间造型上,也延续“减法”的概念,即回归到最简单的几何元素。无论是墙面上的矩形色块,还是贯穿空间的拉丝钢板,都是几何图形的重组与延续,使空间富有变化,增加视觉层次金属圆桌和原木长椅的组合,使层次感一直延续到顾客入座后,让空间细腻丰满。
▼矩形钢板贯穿空间

▼金属圆桌搭配原木长椅


我们通过这次合作,想传达出一种新的看待问题的方式,同时它也是粟集所倡导的:去繁存简,返璞归真,卸下复杂的外壳,以最质朴的形态勇敢去面对生活的难题。
▼舒适的就餐空间


▼细部

▼轴测图

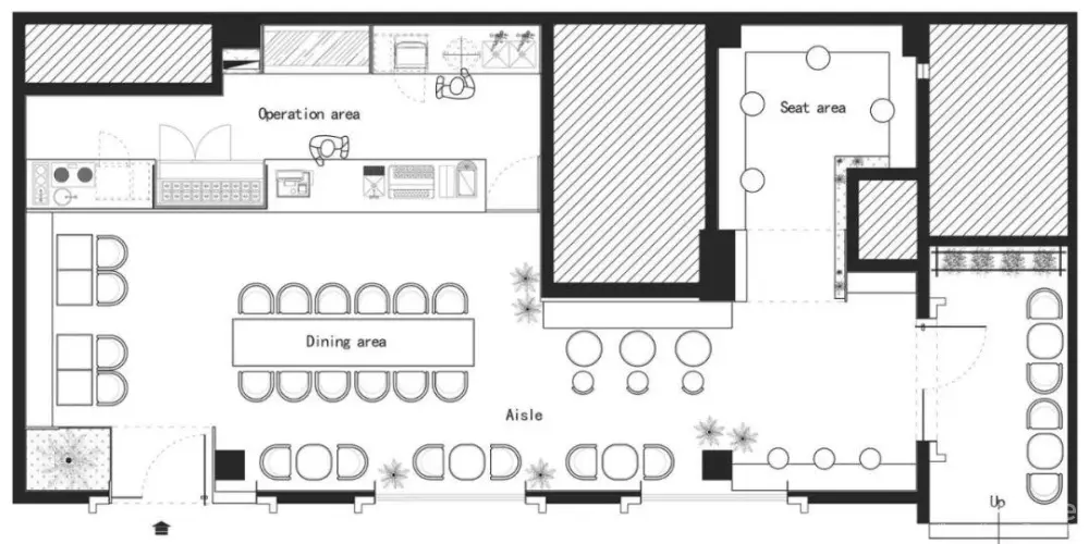
▼平面图

工程名称:重庆粟集轻食餐厅
坐落地点:重庆
面积:130㎡
设计单位:武汉朴开十向设计事务所
主要材料:水磨石 不锈钢 风化木
竣工时间:2018.10
摄影:张筱锴
原文始发于微信公众号( idc室内设计与装修 ):简单美学 | 重庆粟集轻食餐厅
现在这个浮躁的世界,能细心整理一些东西发上来的越来越少了。要么就是敷衍的图片,要么就是枯燥的文字。之后就是AI生成的预制菜类的打包便捷快餐了。感谢楼主的分享,让我能在大智能无人化来临之前,看到同类发出的项目。有幸与您互动,缘分。