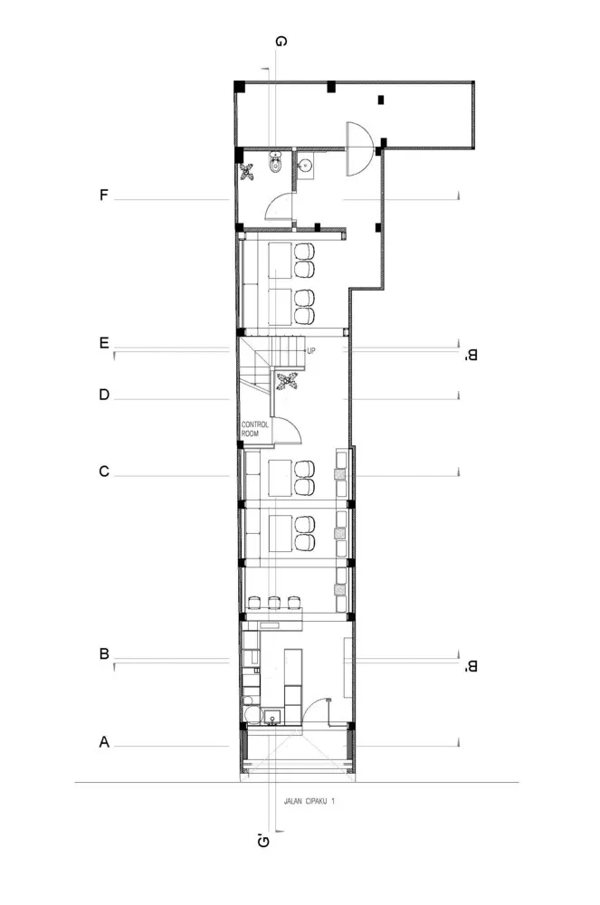
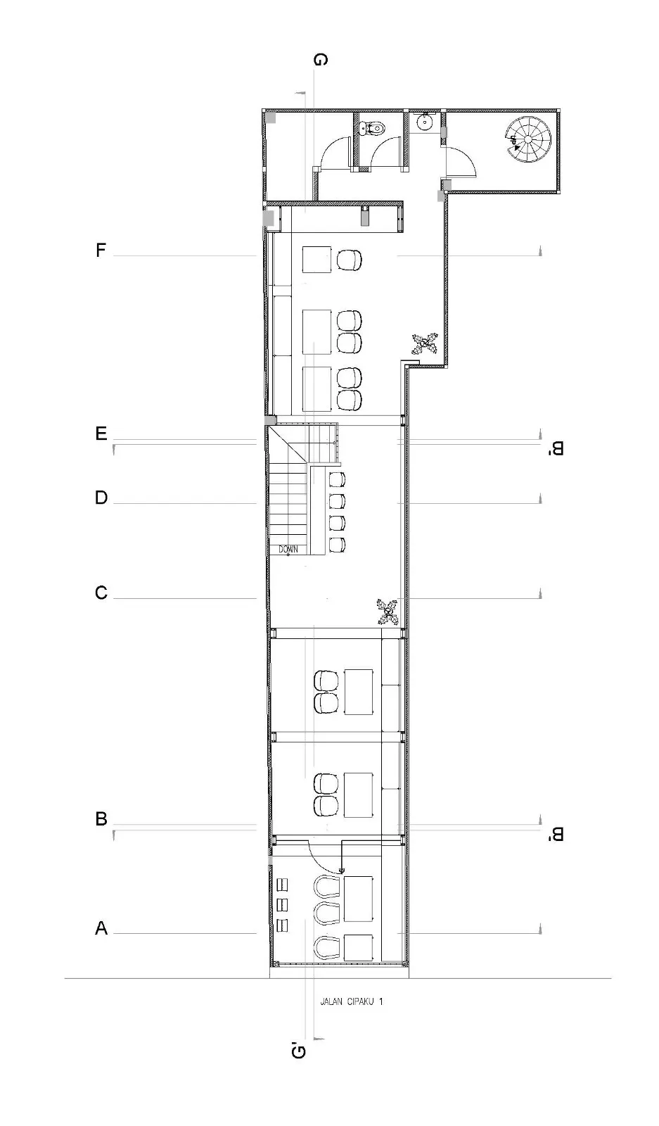
200平方米的咖啡馆位于雅加达南部一个密集而杂乱的社区,由两层组成,包括室内和室外用餐区。改造项目利用现有结构狭窄低矮的天花板空间,创造独特的隧道体验。这是一个度假的地方,你可以休息一下,喝杯咖啡。尽管空间有限,座位布局设计是高效的,同时保持明亮和轻量级的空间氛围。
设计中引入了一系列拱结构,作为一种处理狭窄深空间的策略。拱的几何形状借鉴了古典建筑作为建筑的统一元素。一排拱门从室内空间一直延伸到立面。这反映了从内到外发生了什么。与此同时,拱形立面使建筑在邻里中具有很强的存在感。
内部是关于插入到现有结构中的不同几何形状的组合。浅绿色和桃色被用来加强每个几何图形的特征,而白色纹理的拱门和墙壁成为统一的元素。从吧台和楼梯上的水磨石材料可以看到图案的一瞥,这使得两者成为室内空间的焦点。木家具的引入通过给空间一个更温暖和亲密的感觉来平衡平面色彩几何图形。天鹅绒坐垫搭配黄铜元素的家具带来了一种奢华的感觉。









Architects Studio Kota Location Yakarta, Indonesia Design Team Wendy Sudibyo, Farah Muzakar Area 200.0 m2 Project Year 2018 Photographs Sefval Mogalana Manufacturers Dulux, Forbo Flooring Systems
版权声明:本文内容由用户自行发布上传或投稿由设计芝士代为发布,版权归原作者所有,设计芝士不拥有其著作权,亦不承担相应法律责任。如果您发现本站中有涉嫌抄袭或侵权的内容,请点此提交工单进行举报,一经查实,本站将立刻删除涉嫌侵权内容。

