项目位于北京东城区钱粮胡同一片院落之间,占地面积约410平方米。原有建筑并不是四合院常见的坡顶建筑,而是几个相互分离的砖混平顶房。平顶房应该是四合院某一时期被改建的结果,在旧城之中也有不少这样的房子。场地分前后两个部分,前部是一块空地,包含两个砖房和一棵老树;后部是一个U形建筑体,玻璃屋顶盖住了内院。旧建筑结构老化,房间狭小封闭,缺少基础设施,已经无法满足当代生活的使用,需要彻底改造。改造之后的建筑将出租给潜在的客户,需要满足可办公、可聚会、可居住的弹性使用。因此,本次改造的主要挑战是:如何基于现存条件做恰当的拆改,增加建筑空间的活力,回应不确定的功能。
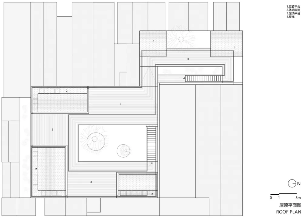
基于平屋顶建筑的特点,设计在旧有建筑平面格局上添加了连廊和楼梯,将屋顶与地面、房屋与庭院相互串联,成为一条可通达赏玩的折叠循环路线,让建筑的内与外、上与下、新与旧产生互动关系。平屋顶是一处在四合院区域难得的公共活动场地,也是内部功能使用的重要延伸,屋顶景观与周边复杂多样的坡屋顶建筑和树木形成有趣的对应。
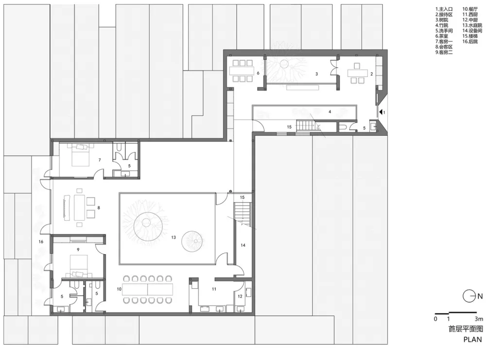
围绕折叠的环线,由入口向内部自然划分出四个不同尺度的庭院——入口处狭长的竹院;保留原有老槐树的树院;清除原来玻璃顶,并置入水景、卵石的水院;以及保留南向与邻里过渡的后院。因此,在这个空间游走将伴随着不断变化的景致。
保留原有建筑的两处砖房子,并新增三处砖盒子则作为私密空间,功能分别被设定为休息室、厨房、卫生间等。盒子之间构成连续而又分离的公共区域,可容纳办公、聚会、餐饮等活动。砖盒子墙体内部隐藏着屋面的结构,设计有意让屋面与砖盒子墙面脱开产生天光的缝隙,令二者独立并置。
项目沿用了四合院常见的旧砖、青瓦、水泥等作为主要材料。屋面均为立砌青瓦铺装,青瓦按照屋顶不同方向线性排布,并跟随楼梯连接到室内,产生如流水一般的视觉效果。屋面为现浇混凝土板,室内表面保留了木纹模板的自然纹理。砖盒子则是由附近院落拆除的旧砖砌筑的,由墙面延伸到屋顶并形成了休息座椅。
一层平面图
屋顶平面图
剖面图
项目名称:折叠院
项目地址:北京市东城区钱粮胡同
占地面积:410平方米
建筑面积:308平方米
建造时间:2018.04—2019.04
主要材料:砖、青瓦、水泥、水磨石、玻璃
设计公司:建筑营设计工作室(www.archstudio.cn)
主设计师:韩文强
设计团队:黄涛、王同辉、张富华、郑宝伟、于妍
摄影师:王宁

