围绕庭院设置半室外就餐区 ©赵爽
院子是童年的记忆,这种记忆真实而温暖。记得十几年前到北京寻找生计,最能打动我的也是胡同里的四合院,邻里之间的一声问候“您吃了吗”让你倍感温暖,空气中弥漫的饭菜香味让你似曾相识。是的,这就是童年的记忆,一种人与人之间最朴实的交流。
▼前台入口外观 ©赵爽
酒店项目的所在地是距离后海200米远的柳荫街十号(地图定位)据说这原本是一座完整的三进四合院,不知道什么原因被分割成三个不同的房东,我们租住的只是其中的一进,虽然面积不大(280㎡)但依然保持着良好的合院格局。内向的空间,高低错落的屋檐,让你立刻感受到传统文化的魅力。
对于四合院的理解我们不能完全停留在它的形式上,尤其是作为设计师的我们。它是民族智慧的结晶,也是炎黄子孙为人处事的哲学。自古以来我们就是一个防御型的民族,自秦统一六国开始,为了防止外族入侵便开始修筑万里长城,保护我们的家园,一直到现在我们依然保持着这个传统习惯。围合,内向,谦虚谨慎是我们国人的优良传统。
▼项目概览,围合在院子中 ©赵爽
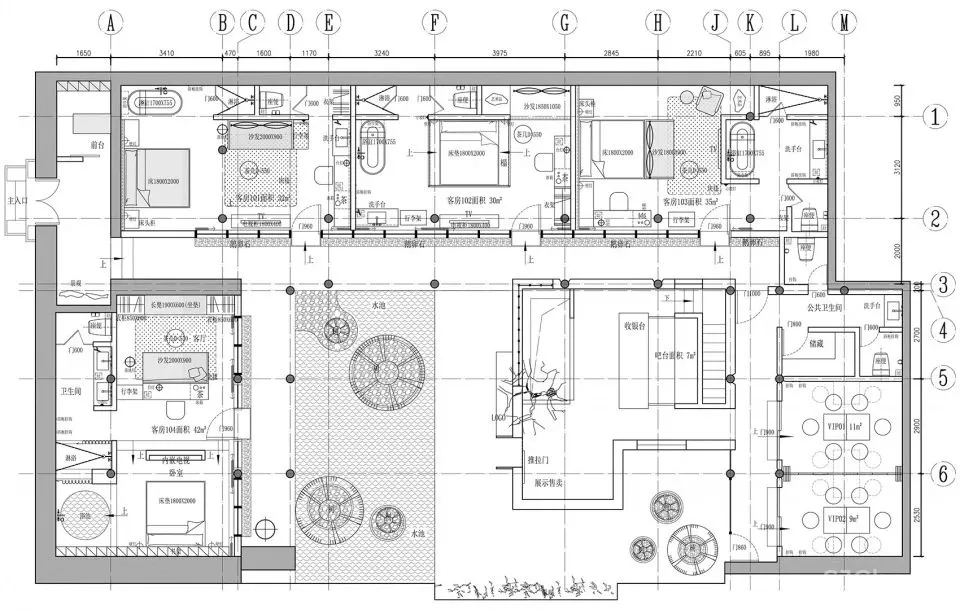
这是元古的第一家店,也是样板店。这里面承载这我们太多的期许。为未来的酒店做样板,打磨我们的供应链体系,寻找符合元古精神的设计调性,都是我们要解决问题。院子平面成一个U字型,与隔壁墙体形成四面围合。
在这里我们需要满足四间客房,一个下午茶和早餐厅的功能,虽然功能并不复杂,但是面积的捉襟见肘让我们大伤脑筋。入口处需要一个小服务台,接下来就是,四间客房。再往里面就是酒店的功能空间,洗手间和储藏空间把下午茶餐厅同酒店的居住区域分开,里面分别是两间下午茶vip包间,也是多功能空间,这里不但可以作为散台使用,同时也可以承接小型会议,沙龙以及展览等等。最后剩下空间就是院子,一个地下室和几棵相映成趣的古树构成了院子的全部。
▼轴测图,功能分区 ©元古设计
地下室面积比较小,为了能很好的提高空间效率我们加建了一个小建筑,这个空间非常重要,它不但要满足下午茶和早餐的出品,同时也把地下室空间与vip包间有效的联系起来,楼梯和建筑的天窗,照亮了原本阴暗的地下室,让原本幽暗的空间充满了无限的温暖。几颗古树安静的伫立在院子中间,仿佛窃窃私语,与我们的客人时而打着招呼。院子里的水池设计是我们有意而为之,水是万物之灵,有了水我们的小院便有了灵性。
▼围绕庭院设置半室外就餐区 ©赵爽
▼从前台看向院落 ©赵爽
▼前台与庭院之间设置天井,大面积玻璃保证地下空间的采光 ©赵爽
▼地下就餐区,天窗采光 ©赵爽
▼地下就餐区空间氛围静谧 ©赵爽
▼VIP包间,可以看到室外庭院 ©赵爽
这三间客房分别做了不同的平面布局,意在尝试不同动线下的客人的住宿体验。倒座房是其中的一间,面积最大,它的格局介于套房和普通客房之间。由于房间的内部标高还不错,我们考虑了榻榻米方案,床垫直接落地,来增加酒店的放松休闲感。其他三间客房在左手边一字排开,面向院内借景。改造之后的落地窗会增加更多的自然采光,另外屋顶也设计了采光天窗,即使是躺在床上也能感受到自然光线的洗礼。
▼倒座房,面积最大 ©赵爽
▼榻榻米床铺增加酒店的舒适感 ©赵爽
▼沿廊道排开的普通客房,屋顶设置采光天窗©赵爽
▼设有采光天窗的浴室©赵爽
在设计的过程中我们始终保持着一种克制。顺势而为,顺其自然是设计师一直保持的心态。这里我们不做过多的粉饰,更多的是强调生活中朴素的真实和美。生活就是艺术,艺术便是生活,它就在元古酒店,就在你我的身边。
项目名称:元古水屋(北京后海店) 设计方:元古设计 联系邮箱:madongjie@yuanguhotel.com 项目设计-完成年份:2020年4月 主创及设计团队:赵爽,马冬洁,郑雅楠,李敏健 项目地址:北京市西城区柳荫街10号 建筑面积:280㎡ 摄影版权:赵爽 施工方:华装兄弟,华秀江团队 客户:元古集团 品牌:柚木实木,黄锈石黄岗岩,工程灯具石客照明,装饰灯具熙呈照明

