Type Street公寓是一个70年代一居室小公寓的改造翻新项目,面积为35平方米。项目设计是对小型住宅运动的支持,也是对抛弃文化和过度消费的现代生活方式的质疑。
现存肌理|EXISTING CONTEXT 现有的一居室小公寓是20世纪70年代楼梯公寓12个单元中的一个。2.4米高的公寓布局不够合理,内部没有厨房和室外空间,仅有洗手间有朝北的窗户。
设计目标|DESIGN OBJECTIVE 设计目标是让被忽视的住宅恢复活力。设计师在现存结构和空间布局的约束下进行设计,为建筑使用者创造灵活的居住/工作空间。

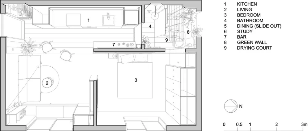
设计策略|DESIGN SOLUTION 设计策略是对公寓局限性的直接回应,采取措施包括在洗手间和厨房之间增添一扇内部窗户,为厨房引入从洗手间射入的北侧光照。窗户上安装了一个可切换的隐私保护膜,按下按钮,窗户就变为磨砂玻璃,保护了洗手间的私密性。
为了引入室外空间,设计师仔细考虑了洗手间的色调来营造一种像温室一样的室内/室外的空间感觉。主墙被各种盆栽植物覆盖,形成一道特色的绿墙。在进入公寓的那一刻就可以直接看到这面墙,住户能够感受到自然和绿色的友好环境。

为了营造一种宽敞奢华的感觉,设计师的策略是扩大功能空间所占比例,公寓的主要特点是内部插入了一个4米长的厨房。分层与重叠是小空间规划的重点,两种不同的功能可以在同一空间的不同时间中存在。灵活的家具如可以滑出的餐桌,使不同功能的空间可以轻松转换。

材料色调|MATERIAL PALETTE 室内采用了带来轻松平静感觉的简洁的色调,因此不会产生压迫感。设计主要用料是木材,设计师采用统一的的木材饰面,塑造空间连续性:从木地板到木板家具和墙板,再到天花板,它们一起构成了插入公寓空间内部木盒子这一建筑语言。公寓其它空间、与橱柜相配的白墙、天花板一起形成了一道简单的白色背景。精致的银蓝色乙烯编织地板为稻草榻榻米地板提供了一种现代感,也为空间带来了柔软感。








▼平面
设计公司:tsai Design 位置:澳大利亚 类型:建筑 材料:木材 金属 涂料 家具 住宅家具 厨房 厨房家具/台面 标签:Interior Deisgn Richmond 室内设计 里士满 分类:住宅建筑 公寓
版权声明:本文内容由用户自行发布上传或投稿由设计芝士代为发布,版权归原作者所有,设计芝士不拥有其著作权,亦不承担相应法律责任。如果您发现本站中有涉嫌抄袭或侵权的内容,请点此提交工单进行举报,一经查实,本站将立刻删除涉嫌侵权内容。

