 
 
极简给你的第一感觉是什么?
极简并不是一味地返璞归真,它代表着简单与克制,充满了去繁求简的智慧。
其实,将它定义成「更为人性化的、环保的、轻松愉悦的生活方式」,来得更加精辟和确切。
我们热爱我们所做的事情,竭尽全力来构建精美、制作精良的项目。我们事必躬亲每一个设计项目,并与我们信任的人们合作,从而构建满足完美的愿景。——
McLaren.Excell
McLaren.Excell 来自伦敦的一家建筑设计公司,由 Luke McLaren 和 Robert Excell 共同创立,主要从事私人住宅和商业项目。
 
 
Robert Excell 和 Luke McLaren
“越是高级的设计就越简单低调。”
冰冷混凝土与木质的对比
 
 
基尤之屋完全重建了一个马厩和一个维多利亚时期的房子,通过联通房屋内的许多小房间,给予建筑自由性和流动性。
 
 
 
 
 
 
该项目主要侧重于扩建建筑的后部和镶嵌两个倒角的空间。从外观来看,扩建部分与原始建筑后立面的漆面产生了鲜明的对比。墙面由灰白粗糙的石砖用石灰砌起来,使得建筑在环境中显得非常独特突出。
 
 
这套房子的设计不单是对极简主义的遵循,也是个性的极致展示。简单的线条勾勒撑起大气的感觉。
 
 
虽然外表设计非常简洁,建筑的内部却是结合了斜屋顶和楔形墙的复杂结构。两者巧妙地结合在了一起,丝毫没有影响纯粹的建筑设计形式。斜切的门檐和窗檐的深度和阴影与粗糙的砌砖和混凝土底座一起给予了建筑质量感和持久感,像是一块被雕刻过的岩石。
 
 
“极简主义的生活理念告诉我们,舍弃生活中多余的东西,得以超越物质,追求生命中真正重要的东西:健康、人际关系、热情、成长和奉献。”
 
 
在内部,形式和结构的结合产生了有趣的折叠和相扣的穹顶并且将原有的元素和新设计的元素融合在了一起。外部质量感和严密感同样延续到了内部。原有的混凝土要素界定了房间安排,为内部空间设计提供了基础逻辑。
 
 
 
 
 
 
 
 
 
 
 
 
内部地面全部使用混凝土铺就,并将人的视觉注意力转移到建筑的枢纽上:楼梯,衣帽间和厨房围成了内部空间的中心,起居室的中心则放了一个雕塑感极强的工作台。通过巨大的开窗可以看见室外的花园的玉兰树,并且提供了很宽的窗台让人坐下来欣赏。
 
 
 
 
 
 
 
 
 
 
 
 
 
 
内墙板和细木工制品调和了结构所占的视觉比例。储藏柜用细长的橡木沟槽和墙板掩盖了起来,并且带来了视觉上的提升和柔和了每个体块。
 
 
和外墙一样,表面因为雕刻变得更加灵动。有深度的窗檐和天窗控制了照射进来的阳光,小房间里窗前有整面的木质嵌板过滤光线,并且提供了隐私性,也与房子原有的维多利亚风格的细节相呼应。
 
 
 
 
设计简洁的栎木楼梯连接了入口大厅,走廊和三楼的卧室浴室。楼梯流利地过渡了底层的雕塑感的粗糙体块。
 
 
 
 
 
 
 
 
 
 
 
 
 
 
 
 
 
 
 
 
 
 
 
 
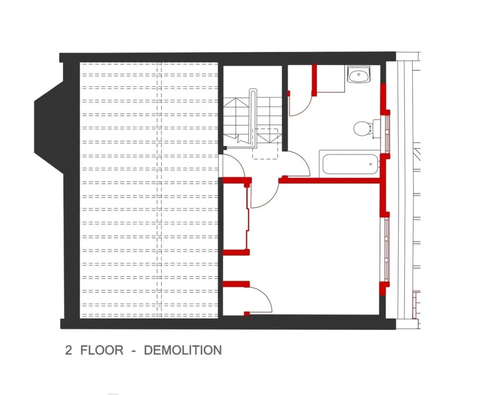
before-原始结构平面图▼
 
 
 
 
 
 
before-原始结构立面图▼
 
 
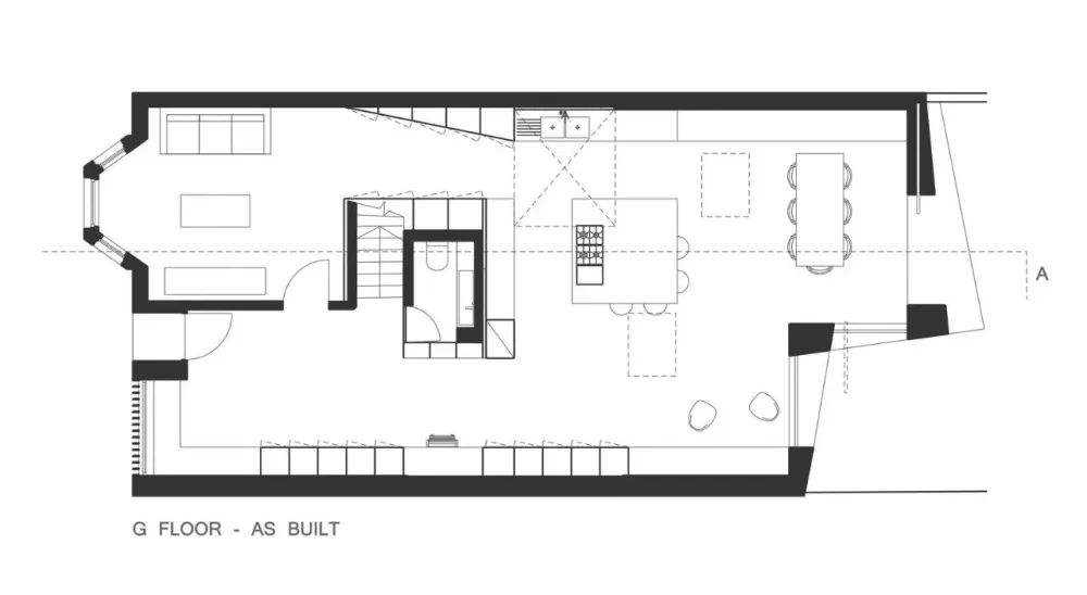
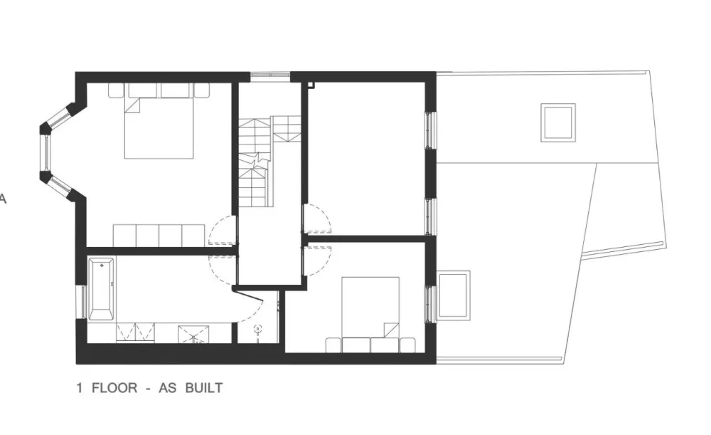
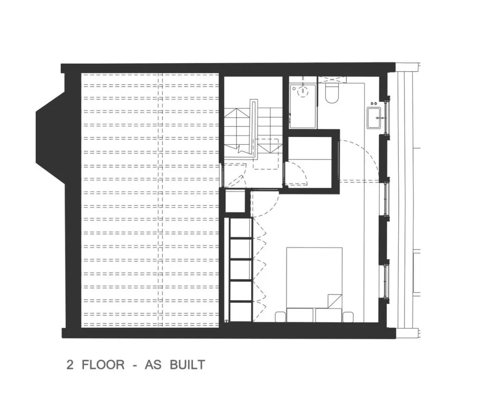
after-改造后结构平面图▼
 
 
 
 
 
 
after-改造后结构立面图▼
 
 
这栋住宅原是当地维多利亚女子学校,20世纪70年代的时候成为一个单层住宅,住宅的主人和现在一样(委托人的妈妈)。住宅原来的布局更像是修道院,一间大大的房间,一条单独的走廊连接着小型卧室,另一侧布置着浴室。
 
 
 
 
 
 
 
 
 
 
我们的设计旨在使整栋住宅显得朴素大方,并达到以下三个要求: •增加住宅使用面积 •充分发挥建筑结构的优势,使居住空间富有乐趣 •将住宅空间划分为两层
 
 
 
 
 
 
 
 
 
 
 
 
最终,该住宅布置了三间卧室、两间浴室,一个开放式起居空间、2层通高的厨房还有一间尺度更小更宜人的学习/娱乐空间。我们调整了二层卧室和浴室的位置,充分利用了过去被忽视的空间,结合建筑构造和自身特点,把空间划分为两层。
 
 
原有的首层平面坐落在1米高的空地之上,而天花板与屋顶托梁之间还有相当大的距离。重新利用这些闲置的空间以及三米高的层高,我们不必挪动原有墙体,也不必刻意提高屋顶高度,就可以将空间划分为两层。
 
 
把原有住宅进行改造,其中局部划分为两层空间(卧室部分),局部设置为通高空间(起居部分),问题的关键在于:如何让两部分彼此关联,合二为一?
 
 
开放式起居空间位于二层卧室的下方,天花高度较低。上层卧室自屋顶结构悬挂而下,避免出现墙体或柱子破坏起居空间的完整性。卧室部分结构处理的十分隐蔽,不得不暴露在外的结构部分则用涂漆钢板装饰起来,与木屋顶融合在一起。最终,上层卧室看起来像漂浮在空中一般,看似并不符合逻辑,充满了戏剧性,处理的十分巧妙。
 
 
 
 
这幢住宅并不用于长期日常生活,而是作为度假、周末住宅或是短租之用。住宅坐落于郊区,作为人们短暂的聚会逗留场所——因此,在设计中,将厨房和起居空间密切的联系在一起,并作为住宅的主要使用空间。
 
 
 
 
住宅主要空间在尺度和布局上近似于礼拜堂,在材料的选择上,更偏好纯净朴素。室内设计中,始终采用桦木胶合板、混凝土、木材、黄铜等材料,利用回收木材/混凝土砌块打造出一片纵向承重墙,作为通向二层卧室的楼梯井的内纵墙,同时它也充当着起居空间的背景墙。忠实的表达材料特性,注重耐磨性能,控制造价。
 
 
所有的材料都不加修饰,未经雕琢,恰到好处的融入原有住宅,形成一个极简而质朴的纯净空间,住宅中所有的木质家具全部在当地手工定制而成。
 
 
 
 
 
 
 
 
 
 
 
 
 
 


