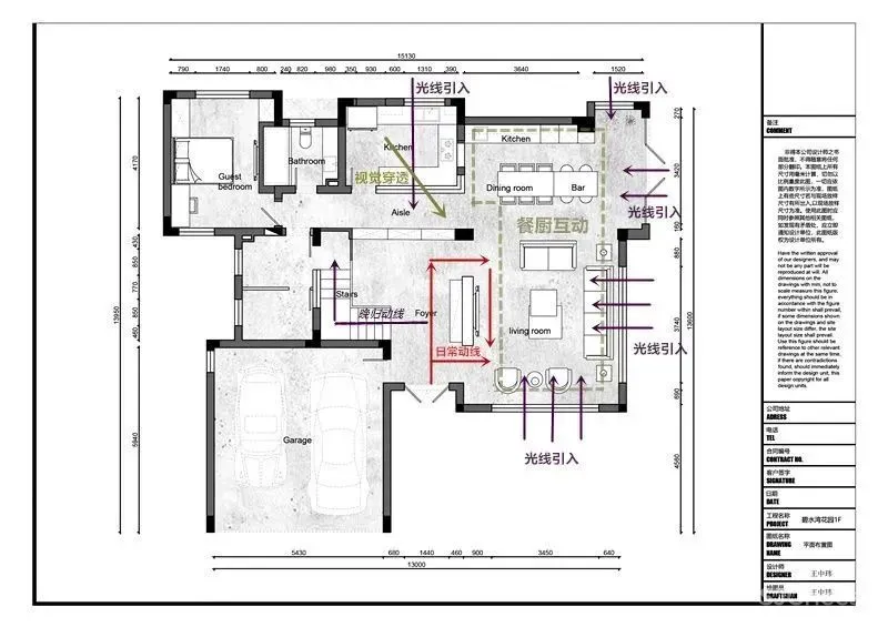
出于某种考虑,屋主在上一次装修的时候将整个餐厅围合成一个独立空间,整个一层的空间变为三个零散的区块。而从入户开始的玄关区域没有明确的界限,这块空间浪费比较多。户型优点是采光非常充足,后期在设计考量过程中设计师将光线列为考虑之一进行优化。
重新梳理并规划了玄关区域使之成为一个整体,这样当客厅有人的时候,进门的客人或收快递的时候会有一个迂回而不是冒然的进入或视觉上一眼望穿。打开了原餐厅之间的隔断,使餐厅与客厅形成一个整体。
介于光线的引入方向,在这个区域将采光无遮挡的最大化,也使得公共区域(一个家的门面)更加敞亮大气。厨房的隔断用半高玻璃的形式,这样能将光线引入新规划出的走廊,并且减少走廊的压迫感。同时也能让在厨房做饭的人与外部空间形成关联。
主卧则形成了一个连同书房以及两个衣帽间在内的大套间。衣帽间根据男女主人不同的使用习惯进行区分。因为男女主人衣物较多,因此在二楼设置了充分的储纳面积。
入户玄关没有浓墨重彩,通过点,线,面的构造手法引出空间的基调。
半高隔墙将玄关与客厅分成两个区域,也正好作为电视机的安置墙。这样从玄关进来会有个缓冲,不会直接面对客厅坐着的人。两侧均留了1.3米的过道作为正常通行,这样的动线设计从两侧引入,使得主次两个区域还是很多的关键性。
改动后将每个区域之间的隔断去除,客厅与餐厅毗邻的位置关系,就餐的时候也可以和客厅坐着的人聊天互动。
环绕落地窗给了空间很好的采光条件。
别墅空间的二层公共区域很多时候会被定义为第二个会客厅摆上沙发。我们在二楼用水吧台定义这个区域,目的同样可以达到会客聊天的功能,相较于传统沙发的布局更显年轻化。而且住在二楼的晚上如果需要喝水,也不用再下到一楼去了。
天花造型的黑色槽也从视觉延伸的角度去强调了这个区域的纵深感。这样的做法能使人的视觉感受到空间变大。
将餐区设定在毗邻客厅的区域,又用高低岛台的形式定义了就餐区。是因为做了十年设计,发现中国人的生活方式一直在演变,从传统的圆桌,方桌,再到现在大肆流行的高低岛台桌。
拘泥于传统的文化形式正在被慢慢淘汰, 好比说传统的餐桌定义了那个区域为
而高的吧台结合餐桌,将这种拘泥形式打破,成为
或者是
。
定制的一体式餐桌与岛台,配合后面整排的高柜形成一个完整的西厨区域,这样可以解决平时所有无油烟的料理,使餐厅的功能更加完整全面。也将中式厨房与西式厨房的作用区分开。
在餐厅选用了百叶帘, 其原因是百叶窗特有的光影效果会使空间增加更多情调。晴天的时候阳光透过百叶打出光影变化, 阴天的室外光线透过百叶也能变的更加柔和。
餐区在中国家庭是非常重要的, 因此尽量的将餐区设置在光线较好的区域。
通过玄关隔出的走廊区域,经过厨房并延伸至一楼的客房。
一组开放式的装饰柜隔出一条新的走廊,用玻璃作为厨房隔墙,能很好解决走廊的采光问题,使得在里面做饭的时候也能看到空间外面人的动态。
厨房向外可以看到柜体内预置了许多开放式格架,是做为屋主的兴趣收藏陈列。屋主说这样在做饭的时候也能看到自己的宝贝们,心情愉悦。
卧室的色调为暗色搭配,深色更能凸显出空间的质感。床背选用了一款哑光的丝绒软包。围边的形式将整个床包裹在内。
氛围灯光是彰显格调的另一个法宝,床背景的灯光条不仅为了营造夜晚的氛围,更通过灯光将软包与墙体这两个体块进行视觉上的剥离,使之过渡的不会太过于僵硬。
这个角度可以看到另一个衣帽间藏在主卧。
主卧大套间内设立了两个衣帽间,主衣帽间供女主使用,所以配备了一个大梳妆台以及首饰柜。次衣帽间则巧妙的通过两道移门隐藏在电视机后面。
次衣帽间的入口通过两道隐藏在电视墙后的移门,与主卧形成一个回字动线,这样可开可合的设计具有灵动性和完整性,晚上睡觉关上门,白天门在开合的状态下可以增加卧室的视觉面积,无论开着还是关着都不失整体性。
移门经过计算,可以完美的隐藏于墙壁之后,达到隐藏的效果。
书房平时闲置的频率较高,因此也以榻榻米的形式来增加储纳面积。

