项目地址 / 苏州·弘阳上园
项目面积 / 145㎡
方案深化 / 周瑜、张娜娜
空间摄影 / TS建筑摄影
 
 
煮茶、饮酒、养花、种草、下棋、会友
 
 
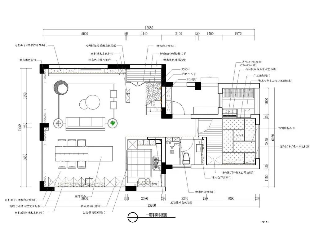
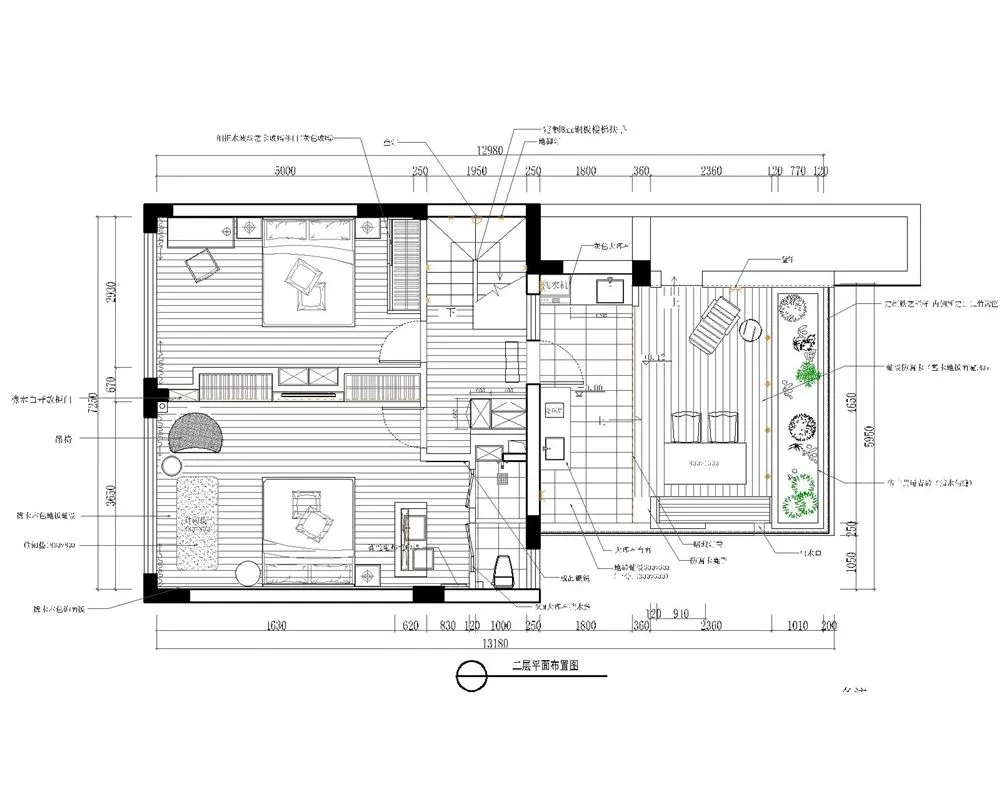
在这个两层复式约150平的空间中,设计师巧妙借景借势,将所有的分隔墙拆除,门窗更换成宽大的落地窗,从而营造出一个无拘无束的自由空间。
 
 
 
 
 
 
 
 
“江南好,风景旧曾谙;日出江花红胜火,春来江水绿如蓝。”
 
 
 
 
 
 
 
 
 
 
 
 
 
 
在这里远离城市的喧嚣家是什么?是身体与心灵的寄托,是空间中物与人的关系,是空间光影的变化,也是繁华世界中仍保留的温柔所在。
 
 
 
 
 
 
 
 
 
 
自然、优雅的配色,温馨、迷人的灯光,视觉与触觉的多元碰撞,木质与大理石形成冷与暖的对比
 
 
 
 
久居繁华之后,人们便格外向往宁静的生活,草木竹禾的空间,无疑是最亲近自然气息的所在,在这个纯粹的空间中,静坐养气,冥思凝神,让身心得到彻底的放松。
 
 
 
 
楼梯木地板暖意融融,就算光脚踩上去也非常的舒服
 
 
 
 
 
 
 
 
 
 
大面积的橡木板和暖白色相配,呈现出更立体的原木质感,阳光透过窗帘映入一层春色
 
 
 
 
次卧按照生活场景进行重塑,让居者在平静与自由的氛围得以休憩,木作的圆弧造型,呈现出放松的肢体语言,低饱和度的色彩,为空间增加柔软与温度。
 
 
 
 
 
 
 
 


