如同世界上许多其他国家一样,越南也受到全球变暖的影响。自然灾害频发,温度激增,空气污染加剧。(据一份报告显示:紧邻平阳省的胡志明市在2016年至2017年间,一天中27%的时间空气质量的AQI指数超过100)。在越南,居住在大城市的人们不仅面临环境污染和缺乏绿色空间的问题——2018年胡志
为0.69平方米,人们还承受着城市化压力对他们身心健康的影响。随之而来的是人们对家庭的忽视和人际关系的淡化。改善人居环境和增进家庭感情是解决城市化问题的开端。T-house位于平阳省,是为一个三口之家建造的住宅。女主人表示她害怕独处,因此希望家庭成员在家时能轻易地看见彼此。
▼项目概览 © Hiroyuki Oki
▼建筑外观 © Hiroyuki Oki
房屋依场地形状而建,伴有很长的西立面。其西立面的墙体为锯齿形,由8个直角墙组成,墙体之间安置竖向长窗。走廊和花园后部的通风系统相结合,在整个房屋中形成良好的空气循环。
▼西立面墙体 © Hiroyuki Oki
为了减少人对环境的影响以及尊重女主人的意愿,设计师建造了一栋通风良好的房屋。它鼓励人们花更多时间在公共空间与家人相处,所有家庭成员可以轻松地看到彼此。
▼两角是私密空间,中间是花园和流线 © Hiroyuki Oki
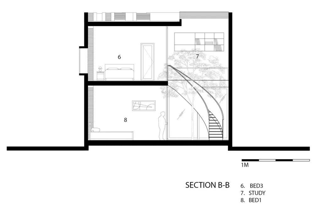
该项目将两个体块置于住宅的两角,其间形成了两个通高空间,它们结合了花园和公共活动的功能以确保所有空间都被自然光照亮。
▼从室外看向室内 © Hiroyuki Oki
▼入口空间 © Hiroyuki Oki
▼视线相通的公共空间 © Hiroyuki Oki
私密空间和卧室分别位于住宅的两侧,它们由日常生活空间、虚空间和花园联系起来。除了通风,采光也是空间布局的一个考虑因素,它联系并鼓励家庭成员走出房门参与家庭活动,享受自然或与家人见面。
▼花园联系私密空间 © Hiroyuki Oki
▼花园里通向二楼的楼梯 © Hiroyuki Oki
▼花园细部 © Hiroyuki Oki
▼二层平台 © Hiroyuki Oki
▼从卧室看向平台 © Hiroyuki Oki
▼从卧室看向花园 © Hiroyuki Oki
该住宅空间简洁,使用简单的材料,由当地工人建造而成,具有减少能源消耗、增加绿色空间、节省建设成本的优点。
▼厨房 © Hiroyuki Oki
▼模型与草图 © Hiroyuki Oki
▼首层平面 © Hiroyuki Oki
▼二层平面 © Hiroyuki Oki
▼剖面图 © Hiroyuki Oki
Project Name: T house Architecture Firm: Creative Architects Website: tacta.com.vn Contact e-mail: buithelong.cta@gmail.com Firm Address: 5/2c Dinh Bo Linh, ward 24, Binh Thanh district Completion Year: 2017 Project location: Di An, Binh Duong province, Viet Nam Ground floor area: 110 m2 Storys: 2 Contrator: Duy Phat Furniture Manufacturing and Trading Co., Ltd Photography : Hiroyuki Oki

