这套住宅是一个改造项目
业主希望根据自己的喜好对房子进行翻新和改建
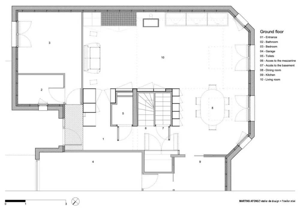
建筑设计部分由 MARTINS AFONSO设计工作室和 Latelier miel共同完成
为孩子们打造了安全的游戏场所
住宅中央的集成木制家具
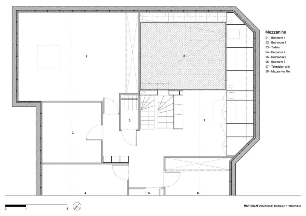
内部包含了通向二楼和地下室的楼梯
同时也在外侧创造了许多储存空间
在整个项目中建立了总体的一致性
让一楼和二楼在视觉上形成统一
设计师还在这里设置了一个酒柜
封闭式的柜门在关上时便十分干净整洁
孩子们也不能轻易触碰到这些易碎品
白色的地面和不加修饰的天花板
让整个空间拥有无限可能
拥有孩子的家庭也不会显得特别杂乱
在夹层网下方设置了一条弯曲的木条
在另一侧集成了投影仪和家庭影院
放映结束后这些设备便隐藏在滑动门的背后
铺上垫子就成为了休息区域
在这里看书也是不错的体验
楼上的柜体内放置了电视机
家长可以在这里看电视的同时
还可以看着孩子们在一旁玩耍
一排矮柜也是由橡木制成的
MARTINS AFONSO设计工作室和 Latelier miel
摄影:Mickaël Martins Afonso

