“每个人都有属于自己的一片森林,也许我们从来不曾去过,但它一直在那里,总会在那里。”
——村上春树《挪威的森林》
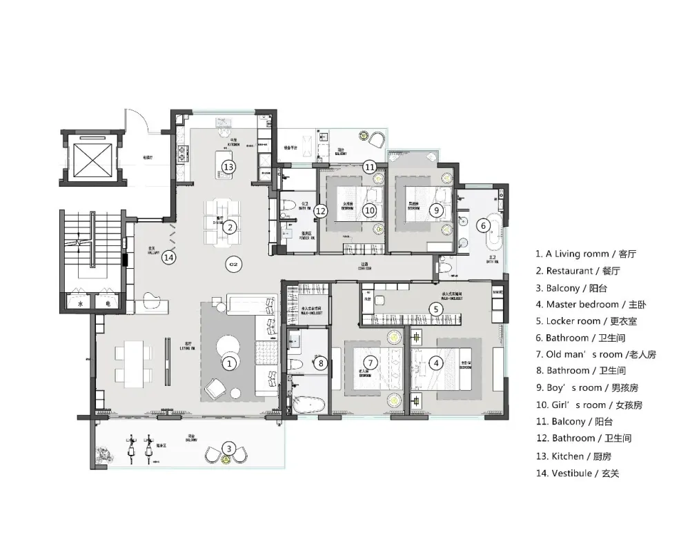
当所有人还在追逐城市核心地带的繁华,麓湖郡却携天地山河漫步而来。5200亩象鼻窝国家级森林公园像一弯巨人的肩膀,拥抱住麓湖郡。432亩占地面积,1.1的超低容积率,1299套房子,以每立方厘米1000个负氧离子的含量,安静地矗立在森林里,与自然对话。270度山体环绕,天地阔景,加上绿地特有的2.0健康宅体系,尊享有山有水的隐奢生活。
厌倦了高楼迭起、车红酒绿,此刻若能回到自然的怀抱,闲时闻风赏景,感受梅溪湖的灵动秀气,何其幸运。绿地麓湖郡位于长沙梅溪湖黄金中轴之上,繁华僻静,进退可守,秉承缔造高质生活的初心,满足不同人群的居住需求,带着对现代人居的思考,一座只为都市塔尖人士栖居的森林秘境,在森林深处等你归来。
Urbanupstarts
出繁入静 格调点亮生活美感
真正的奢侈,是看得见与看不见的都一样完美。
入目所及,两边落地窗将光线引入客厅,宽阔的空间以奢雅静宁的格调呈现出来,木作的纹理、石材的冷硬,低调中彰显现代精英的生活品味。客餐厅动线清晰流畅,摒弃了传统一字厅的布局,在其基础上打造超级客厅,开放的动线也更容易形成视线交叠的可能,令人们不经意间发生互动。宴请家人朋友在这里享受美食、美景,看着生机盎然的自然在眼前铺展,为那些寻找“在城市中心拥有私人又独特体验”的客户重新定义了奢华。
金属酒柜的设计手法,从光线上打造光影虚实之感,使其成为视觉焦点,材质的特殊性使酒柜像一个优雅的绅士在此静立。
设计师贴心地将老人房设置在一层,减少长辈的行走负担和安全隐患。以饱和度较低的灰色为主调,极大程度上放松心情。空间的划分将两代人的生活作息分离,减少因生活习惯的不同而产生矛盾,在一定程度上增加了每个人的隐私感,贴合现代人的生活习惯。拾阶而上,木饰面特有的质感让人心情放松,不同于一层侧重于互动,二楼更加注重生活隐私。
主卧顶层叠级线条与黑色轨道灯带拉高了空间的视觉感,雾霾蓝的色调在亚色空间里更显生活品质。主卧和衣帽间以开放式的风格呈现,背景墙以沉着的米灰色为底,“灰”、“白”为点缀,空间物品环环相扣,营造温馨雅致的轻奢质感。
阳光是这个世界上最普通,也最奢侈的装饰品。一处受到阳光祈福的家,所带来的远不止美的视觉感受,更创造一种充满希望与闲适的生活美学。温柔甜美的女儿房、天马行空的男孩房,童真的纯净,为匆忙的都市生活抚平拉紧的琴弦。
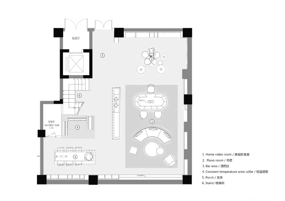
负一层的超高挑空设计,在尺度关系上提升了人的心境,发光软膜营造的光感带来视觉上的宁静。延伸到顶面的格栅,通过线条的深浅、穿插、排布形成一种节奏韵律变化,增加了空间的穿插性。宽尺度,宽格局,宽视野,让生活回归应有的态度,显贵人前,不如隐奢人后。
现代人群更加注重身体健康,夹层区域设置家庭健身房和瑜伽室,忙碌的工作日后,在这里卸下一身的疲惫。
左右滑动,观看更多图片
Leisurevacation
多一方自在天地 让生活更惬意
万物之始,大道至简,衍化至繁
设计是保留生活的一种方式,大面积的玻璃元素是不可或缺的主角,承载着窗外的四时变化。客餐厅明亮清透,以原木色为主基调,质感自然且肌理丰富,赋予空间无限的生命力。地毯与沙发柔软的质感将造型简洁、立体的茶几故意错开,矛盾之间,情理之中。坐案硬朗,沙发柔软,一张一弛之间传递出生活的动态与平衡哲学。
用餐区紧邻客厅,在色调保持一致的基础上,白色吧台跳出了空间,与空间中俨然整齐的线条和方形布局产生一种冲突之美,却融于方圆之内。与其说是一种风格,不如说它是一种深深根植于内心的态度。
漫长的工作日之后,卸下一身疲累地最佳选择,便是焚香品茗。一壶茶,半卷书,就足以安放宁静的精神世界。空间区域的分割将老人房设置在一楼,拉开窗帘,迎接一天中最明媚温柔的阳光,欣赏漫山的自然风景。
二楼主卧临山观景,合理的动线牵引,使各功能区域独立且联通,在这里,有私享,亦有交流;有独立,亦有融合;有温暖,亦有浪漫。
在次卧里,以透明的边界拥抱原生态自然,边界之外,视线扫过森林秘境;边界之上,便是晴天郎朗,尊享梅溪湖凌云之境。
儿童房采用大胆的橘色系做点缀,它装载了孩子所有的奇思妙想和日渐渴望了解世界的心绪,设计师选取风格迥异的艺术画做装饰,营造了一个在物质面前更强调孩子身心感受的世界。
左右滑动,观看更多图片
轻描淡抹 演绎优雅风骨
“美感在乎鉴赏,故美学之判断,所以别美丑。是吾人意识发展至各方面也。”
——《美学观念》蔡元培
空间布局契合现代生活方式的功能区域划分,以时尚框架为主题,强烈的空间感和立体感,让整个客餐厅通透大气。设计师采取室内外景观相融合的设计手法,使用烟灰薄荷绿作为客餐厅软装的主题色,恰到好处的绿意给空间铺上了一层自然的味道。光线的交织拉近了建筑与自然的距离,或坐或卧于柔软的沙发之上,让思绪在空间里律动,抽象理性与优雅感性的交织,在这里融合成一个关于生活的哲学。
主卧的设计由外至内层层剥离外界的繁杂,开启充满仪式感的个人私享时光。大面积的米色调在光线的晕染下让主卧尽显温柔,以弧形圆角手法打造的背景墙增加了空间层次感。区别于常规的空间隔断设计,主卫玻璃墙的通透感打破了空间的约束,让整个卧室的干净利落。洗漱空间里,柔软舒适的毛绒坐垫中和了大理石洗漱台的冷硬,慵懒与理性的碰撞,给予空间无限的想象。
次卧霜灰色墙体在光线下呈现出柔和的肌理,搭配隐约显露的金属线条,氛围优雅轻松。经典的直线分割设计手法、灰白相间的优雅、多元变奏的几何线条碰撞相映,艺术与设计在设计师的笔下融入空间内饰细节。
温馨的儿童房中,容纳这孩子心目中最为憧憬的童话世界。羊毛毯的柔软、玩偶的微笑、公主床上的美梦……设计以温暖抵达孩童内心深处的渴望,让每个日常都饱含生机。
GentlemanYapi
红酒雪茄 儒雅自在有型
设计是表达自我感受和情绪的一种方式,是对至美追求的最佳诠释,是对舒适和奢侈、现实与理想的一种永恒挑战。
以艺术生活为基点,轻奢质感的现代生活融合开阔的空间动线,不仅是一种视觉享受,同时也是一种低调奢美的生活体验。阳台、客厅、餐厅三者横向相连,落地窗把光线集于一身然后倾撒而下,大面积咖色让整体空间如绅士一般成熟稳重,活泼清亮的橙色越然而上,为客餐厅带来一丝活跃。
餐桌与吧台融为一体,节省空间的同时也让用餐更有仪式感,大理石冷峻的线条愈发反衬了餐米油盐后的热情,一抹橘色点缀着餐厅区域,形成跳跃而生动的居家之美。
放弃一切突兀繁复的修饰,卧室里温润的象牙白点缀着亚色格栅,不同材质的对比,就像雅与痞两个字本身代表着的是不同的人物性格,在这里却相融地恰到好处。
儿童房的色彩哲学同样以极具跳跃性的趣味笔触构造营建,元素的驰骋演绎和色彩的沉淀安静,在睡梦的深处不经意间触摸儿童心底的童趣。
那些时光里 你是一见钟情的温柔
罗曼·罗兰曾赞颂:艺术的伟大意义,在于它能显示人的真正感情、内心生活的奥秘和热情的世界。
客厅以深邃温柔的静谧蓝为主色调,设计师用开放式设计手法去诠释空间氛围,浪漫的法式线条随处可见。借助空间美学视角,以大理石隔墙划分客厅的区域功能,让空间形成回游动线,充满现代优雅的法式风情流淌于客餐厅,留住更多浪漫的想象空间。
生活中所有美好的期待,从精致的细节讲究开始。在柔和静谧的主卧空间里,不规则的墙面装饰品与柔软的床面相呼应,表现出细腻的质感层次,于细节之处打动人心。
儿童房用粉色点缀,粉色是所有通话梦中不可或缺的颜色,尖尖的猫耳朵俏皮可爱,床头柜上不对称的装饰让空间更显天真烂漫。
项目名称:绿地·长沙麓湖郡样板间
甲方设计团队:绿地集团湖南事业部技术研发中心
室内设计公司:南京W E室内设计有限公司
主案设计师:王文翠、张钰琼、鹿艳、梅佳敏
硬装设计团队:黄睿、王雨婷、郭明露、刘亚萍
软装设计团队:刁永涓、蒋芳芳、徐畅
建设单位:绿地集团湖南事业部
施工单位:上海盛房建设集团有限公司
建筑设计公司:上海域境建筑规划设计有限公司

