Deborah Berke
当代杰出建筑和室内设计师
耶鲁大学建筑学院第一任女性院长
Deborah Berke(德博拉·伯克),生于1954年,毕业于罗德岛设计学院和纽约市立大学。1982年,伯克建立了以她的名字命名的德博拉·伯克建筑事务所(Deborah Berke Partners),从事建筑设计和室内设计。
Deborah Berke的设计风格以简约见长,没有杂乱的视觉干扰,反而用类似于一种“强迫症”的执念,使房间处处散发着艺术的气息。她接手的项目,不管是顶级豪宅、还是酒店,都能演绎出整洁如一的极简风格。白墙就是她最好的装饰,在室内设计上也常用减法,给空间留最大的呼吸自由度。
承袭包豪斯的“极简主义”,遵循“少即是多”的原则,她运用最简单的构成原理,实践设计功能化、理性化,去除多余的装饰,强调简洁、纯粹,以几何造型为主的空间设计风格。其对真实性的追求,对视觉艺术的热爱,以及她知性的严谨,贯穿了设计过程和建筑项目,将环境,社会和美学提炼成有意义的架构,通过持久的设计,努力丰富周围的世界,并注意到每个地方的独特品质。
正如阿尔伯特·爱因斯坦 (Albert Einstein) 所说:一切事物应该力求简单,但不能过于简单。在 Deborah Berke 的设计理念中,对物品进行舍弃和精简,剔除那些无意义的东西,大量留白、少量陈设,催生了简约而不简单的生活场景。Deborah Berke的设计理念,即通过追求真实性和温暖来强化建筑,将人与地方联系起来。共同打造了一个个性鲜明、经久不衰的作品体系。
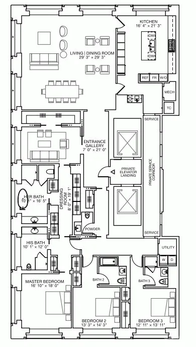
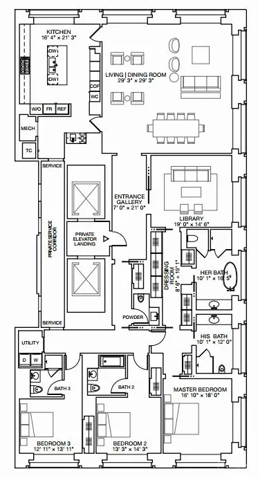
432 Park Avenue
这里的落日是360度无遮挡,
Deborah Berke
每个空间都是梦幻般的美景
当然,所有的配套设施也不能少
会所、SPA、健身室、室内游泳池、电影院、阅览室等


谢谢分享