 
 
元禾大千,是一个以艺术为驱动⼒的软装设计品牌。专注于售楼中心、样板间、酒店、会所等公共空间,以深度、全面、专业的态度提供从空间装饰设计、艺术定制化生产、采购到落地布场、推广宣传等各环节的整体项目设计管理服务。
YHDQ Design, an art-driven interior design company focuseson space decoration for sales centers, showrooms, hotels and clubs.Withprofessional, in-depth and comphensive service attitude, we provide customerswith overall project design and manage
ment services. The specific businessincludes space decoration design, art customized production, procurement andpromotion.
 
 
“关于我们为什么要呼吸?
About why do we breathe?
Why am I here?
为什么我没有得到我想要的东西?”
Why didnt I get what I wanted?
——《心灵奇旅》导演Peter Hans Docter
 
 
在充满好奇心的时代,《心灵奇旅》在2021的开年就给出了答案——寻找生命的“火花”,正是这些“为什么”把导演内心苦闷变成灵感,用探索和感知去满足好奇心。
In an era full of curiosity, Spiritual Journey offers the answer at the beginning of 2021 — to search for the sparks of life. It is these why that turn the directors inner anguish into inspiration, and satisfy his curiosity with exploration and perception.
 
 
元禾大千用好奇的力量,以光、艺术,生长的力量、未知的好奇心为苏州上城时光展开一场有趣的、年轻的设计。
YHDQ Design uses the power of curiosity, light, art, the power of growth, the curiosity of the unknown to launch an interesting, young design for the uptown time of Suzhou.
 
 
Feeling The Light With The Eyes
情感是人与环境的关联,设计师用灵动的光,唤醒年轻人生活的B面。吊灯装置以其独特的造型、柔和的弧线、光影的变化,中和黑色接待台的果敢,成为空间的灵魂。
Emotion is the connection between people and the environment. The designer awakens the B side of young peoples life with clever light. The chandelier installation with its unique shape, soft arc, the change of light and shadow, and the determination of the black reception desk, become the soul of space.
 
 
行走穿越在黑与白的平行时空,追随心中窜动的光。墙面一块克莱因蓝为空间倾注一种微妙的时空情绪,宛如严肃中的激情,像是年轻一代对现实生活的诉求。
Walking through the parallel time and space between black and white, follow the light moving in the heart. A piece of Klein blue on the wall poured a subtle space-time mood into the space, just like passion in seriousness, like the appeal of the young generation to real life.
 
 
 
 
 
 
Feeling The Art When The Stars Shine
由于那一盏灯,空间具有了人性。白色柔光的玻璃球体由独特曲线的金属框架衔接,像无数个睁着看黑夜的眼睛,探寻、捕捉一切未知。
Because of that lamp, space became human. The soft white glass sphere is connected by the unique curve of the metal frame, like countless eyes open to look at the night, exploring and capturing all the unknown.
 
 
 
 
 
 
 
 
 
 
橙色与银白,世间的活力与美幻,游离在空间中。烤漆白兔子、比例失调的巨大粉红蘑菇,有着破次元的超现实感,与大地色系的家具互相抗衡。此刻,他们才是空间的主角,自有精彩,当群星闪耀时,童真且幽默。
Orange and silver, the vitality and beauty of the world, floating in the space. White bunnies baked in paint, giant pink mushrooms out of proportion, have a broken dimensional sense of hyper-reality, competing with earth-colored furniture. At the moment, they are the leading role of the space, own wonderful, when the stars shine, childlike innocence and humor.
 
 
 
 
 
 
自由与灵动,是光线带来的。手工艺术画中波动的线条犹如年轻人不安的情绪,与空间和谐的调性形成对比。在自然光的融入下,一面感受无尽的生命,一面体验理性的秩序,使空间的艺术张力生辉。
Freedom and agility are brought by light. The undulating lines in handmade art paintings are like the restless emotions of young people, which contrast with the harmonious tonality of the space. In the integration of natural light, on the one hand, feel the endless life, on the other hand experience the rational order, so that the artistic tension of space is enriched.
 
 
 
 
 
 
 
 
 
 
 
 
 
 
空间中的镜面反射,让人产生画里画外的不同感知。家具黑与白、木作与皮革之间构成对撞,创意搭配拼接的地毯与圆形抱枕,赋予空间无限想象力。
The specular reflection in the space makes people feel different inside and outside the painting. The black and white furniture, wood and leather form a collision, the creative combination of stitched carpet and round pillow, give the space infinite imagination.
 
 
 
 
 
 
Curiosity Is The Upward Driving Force
一只托腮思考的兔子带领好奇心来到阅读的世界。年轻人的好奇心总是被各种未知所吸引,而静谧的阅读空间正是他们精神的指引方向。
A thinking rabbit with his chin leads curiosity into the world of reading. Young peoples curiosity is always attracted by all kinds of unknown, and the quiet reading space is the direction of their spirit.
 
 
 
 
正中央一个大型的玻璃瓶装置艺术品矗立于此,纤细的竹条与起伏的苔藓,以向上的姿态,指引空间精神的本质,安静却坚韧,令步入其中的人感受到阅读的力量。
In the center stands a large glass bottle installation. The slender bamboo strips and undulating moss guide the spirit of the space in an upward posture. Quiet but tenacious, people who step into it feel the power of reading.
 
 
 
 
 
 
休闲读书体验方式让人感到似乎时间将多一刻的为自己停留,可以坐下来让好奇心在阅读中疯狂生长。
Leisure reading experience makes people feel as if the time will be more than a moment to stay for themselves, you can sit down and let the curiosity in reading crazy growth.
 
 
 
 
趣玩:与兔子的奇妙森林
The Rabbits Wonderful Forest
兔子对现实生活的美丽小窥视,绿色蘑菇、毛绒的花艺,这些天马行空的创作,是设计师在现实需求与理想设计的平衡中,对探索未来的乐趣感知。
Rabbits beautiful peep into real life, green mushrooms, plush flowers, these unimaginative creations are designers sense of fun to explore the future in the balance between realistic needs and ideal design.
 
 
 
 
闪烁的圆形吊灯、左右对称的兔子雕塑与可爱圆乎的座椅都定格在此,与孩子进行一场奇妙的趣玩游戏。
The flickering round chandelier, the left and right symmetrical rabbit sculpture and the lovely round chair are fixed here, and the children have a wonderful fun to play games.
 
 
 
 
 
 
 
 
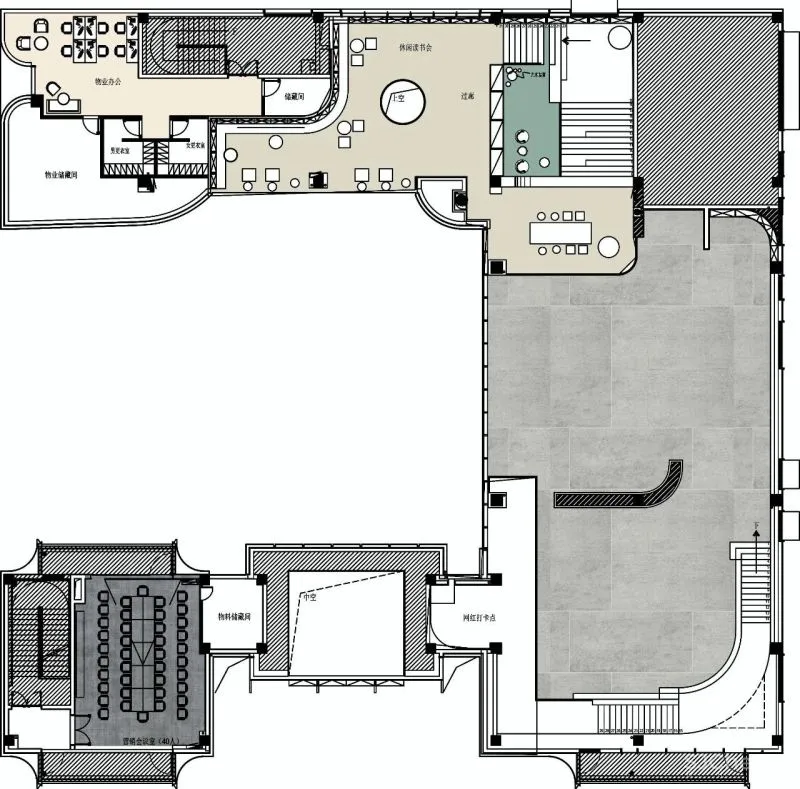
Plan @ 1F平面图
 
 
Information
Project Name:Shangcheng Shiguang
Project Location:Suzhou, Jiangsu
Decoration Design:YHDQ Design
Interior Design:Matrix Design
Space Area:
:美的置业沪苏皖区域公司
Midea Real Estate Shanghai, Jiangsu and Anhui Regional Company
Photography: Ganguang Film


