这是个适合倒叙的故事…
“建筑师的职责是让每一块砖头回归到它自己的位置,建筑师不是在圆自己的梦,而是在帮助砖头完成它们的梦想。”
路易斯·康 (Louis Kahn)
上亿年的自然活动孕育出的石材,个性鲜明,不应该被肤浅地对待。
云浮是国内两大石材产业基地之一,每年成千上万的石材被切割。这意味着成千上万的石材边角被遗弃,胡乱堆积。等待她们的是沉沦和粉身碎骨。
而在我们眼中,她们光彩依旧,
她们自由地表达着自我,我们只是聆听,试图去理解她们的语言…
▼诚实、大方的空间锣鼓喧天,正迎娶她们
她们的外表在开采、搬运、风雨过后留下痕迹,有些则被机器切平;
有些成为薄片,在华丽的大厅展示身段;
有些则因为尺度不够,被遗弃在荒野;
石材被约束,有了用途,
但她是否也像人一样,渴望挣脱?
▼坚硬的石材被脆弱的镜子切开
▼曾经互不相识的石头,如今相互依存、不可分割
▼300kg 的大理石柱,被 0.5cm² 的点支撑
我们要如何待人?如何待物?
▼180kg的石材被直径Ø4mm的钢丝悬吊
被丢弃的荒料切片、石堆里的圆柱和碎块想成为什么?
大理石球与吧台体块,通过一个点接触和承托。
空间中的石材以不同的形式出现在不同的位置上,各司其职。
大块石材成为吧台,悬浮在空中;
还有些立在地面,显得坚实而厚重…
建筑在刚建出来的时候是纯粹的。
其后人们在其骨骼上胡乱添加外衣,各说各话,场面开始变嘈杂。
渐渐地,建筑被异化成一个杂乱的存在…
拆除后,建筑开口说话。
它的语言简洁、有力量…
新建造的部分,希望延续建筑的生命,它是从建筑中“生发”出来的。
留心地面的石材,可以感受旧空间的布局,想象其间发生过的故事…
老故事成为新空间的一部分。
大会议室设置在接待大厅与行政办公区中间,从功能上,缩短交通流线,提高效率,方便内外部的沟通交流;
从视觉上,渐变效果的玻璃隔断,提供了较好的私密性和安全感,在自然光的晕染下,营造出层层叠叠、朦胧的诗意。
大会议室的天花贯穿展厅、过道、会议室和洽谈室,内部用钢结构龙骨替代轻钢龙骨。
中间的建筑钢柱起到核心支撑的作用,这个结构是设计部悬浮吧台结构的放大版,彼为载物,此为容人。
建造物(新)与建筑柱(旧)的相拥和对话
设计过程的特殊要求,新构建的天花,尽量避免使用轻钢龙骨吊筋,由此得出纯净、悬浮的体块。既清晰的界定空间,又诚实表达空间构造。
钢结构,它自有其个性,无需隐藏。
半高隔断充分发挥钢结构的优势来建造:
·它作为建筑的骨架材料被直白地用于室内空间,强调了空间的属性;
·它仅需要极少的材料即能围合出空间,从而解放出天花,共享了空调,使绝大部分空间在不挪动原有空调点位的情况下,仍然能满足新空间的空调需求。
对钢结构的“不修饰”,向人传达物质在实际中发挥的作用,而非用A掩盖 B的贡献和价值。
对前台的处理贯彻空间的设计逻辑,以清晰的结构容纳功能,并让它诚实可见。
从一个空间过渡到另一个空间,我们需要什么体验?
在重要空间之间的转换通道中,我们都设置巨型的石材体块。
让人对“即将进入另一个空间”做好准备。
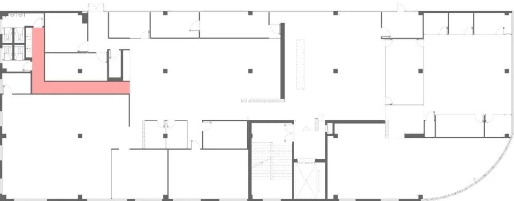
△电梯厅-大厅通道(中花白)
△电梯厅-大厅通道示意图(中花白)
△大厅-设计部通道(苹果绿)
△大厅-设计部通道示意图(苹果绿)
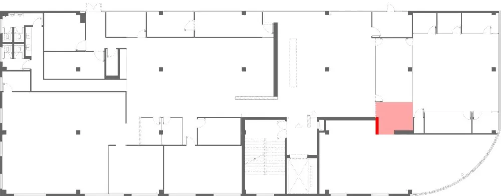
△大厅-行政办公室-展厅通道(巴塞罗那)
△大厅-行政办公室-展厅通道示意图(巴塞罗那)
△设计部-样衣车间通道(中花白)
△设计部-样衣车间通道示意图(中花白)
△洗手间通道(瓷砖黑白错拼)
材料之间没有等级之分。瓷砖也有其优秀的性质:耐磨、耐污、易于保养,更适合湿区的地面。
通过切割和重构,它作为工业产品的模数基因得以展现。
△洗手间通道示意图(瓷砖黑白错拼)
对石材,我们尽量保留起初发现她们时的状态。
在安置它们的过程中,我们增
好空间应该是“完美的统一”。
清晰地建造,而后才会有所表达。
反之,空间便会走向混乱
项目名称:YEARLY PLAN 全年计划/总部办公空间
项目面积:1024m² 完工时间:2019年 11月
设计单位:PENG – PARTNERS /鹏和朋友们设计公司
设计团队:李程、陈容仪、杜晓鹏
照明顾问:陈志君、莫超
主要材料:石材(巴塞罗那/苹果绿/中花白/大理石荒料)、工字钢、渐变玻璃
石材供应:刘永亮(万汇石业)
家具品牌:HermanMiller(广州代理商/ 奕居国际)、MarioTsai.studio (马扎灯及铝制长桌椅)
PENG – PARTNERS创始人/设计总监
多莫斯设计学院 , 意大利 米兰,产品设计系,硕士研究生;
伦敦艺术大学,英国 伦敦,室内设计系,硕士研究生。
作品屡获国际顶级设计奖项, 包括德国iF设计奖、德国RedDot 红点设计奖、美国 IDA Design Awards设计金奖、德国国家设计奖 German Design Award, 亚洲最具影响力设计奖、意大利MACEF Design Award设计奖、亚太设计双年奖最佳产品设计大奖,以及被《漂亮家居》杂志评选为“50位华人设计新势力”,《环球设计》2017年度最佳办公空间设计、2018年度最佳展厅空间设计等。
△摩邦律师事务所办公总部
△中原地产(深圳)总部
△奕居国际YI’S HOUSE HermanMiller广州零售店

