恰如其分的设计,并未顾此失彼,空间呈现刚柔并济的调性,难得在其秩序里有趣味,理性中显诗意。
▼轴测图,Axonometric drawing
– Location – | 项目地点 Guiyang,China
– Date – | 设计时间 Jun.2019
– Leader Designer – | 设计师 宋久治
– Team – | 团队 杨毅 王蕾
– Photographer – | 摄影 形在空间 贺川
近几年,多元化的时尚店铺逐渐被带入城市文化之中,这些融入个人趣味的买手店结合了设计、艺术等复合型消费模式为顾客选购个性化时装的同时,更像是一座城市的立体杂志。
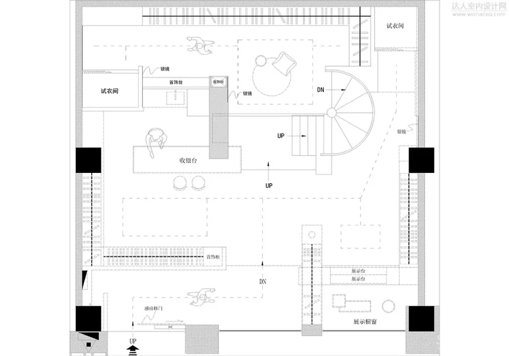
O2买手店位于贵阳市商业街区,于闹市之中,取一方天地。品牌创立于2017年,是一家专注于时尚女装零售品牌集合买手店。店内包含了 Angelchen、Romanchic、CHRISOU BY DAN等国内外原创时尚品牌。
“当时装逐渐被商业化时,服装的价值不仅仅在于它表面的形态,真正的时尚源于个性,创意和探索。”设计师结合这种概念和构思,经过反复调试,重塑空间节奏。在保持空间动线连贯性的同时,些微之处的巧思与用心,等待路过的细细探究。
设计师创造出空间的情景,不同的材料在建筑中呈现出其独特的诗性。拉丝不锈钢的金属感从户外的墙身延伸进室内,与原有街道的粗糙墙面形成对比,平淡之中制造“微表情”。镜面不锈钢的球形装置给哑光的空间带来一丝清透,视觉上的秩序感被打破,为空间增添无穷生命力。
设计师创造出空间的情景,不同的材料在建筑中呈现出其独特的诗性。拉丝不锈钢的金属感从户外的墙身延伸进室内,与原有街道的粗糙墙面形成对比,平淡之中制造“微表情”。镜面不锈钢的球形装置给哑光的空间带来一丝清透,视觉上的秩序感被打破,为空间增添无穷生命力。
设计师保有一些“挑剔”的态度,对空间未来经营模式作出“预测”,在保证功能性的同时也保持“新”式。结合层出不穷的产品与陈列的协调搭配,使空间具有现代性,并保持前卫性与前沿性。

