位于(ARTKVARTAL)住宅楼顶层的180平方米的销售办公空间,是莫斯科现代建筑最引人注目的设计之一。
设计师的任务是创造一个不寻常的、壮观的和具有代表性的办公空间,考虑到场地最初的独特特征——一个带有全景窗户的大型光混凝土空间,俯瞰尤扎河,以及一个特殊的细节是非标准的8.5米高的山墙天花板。
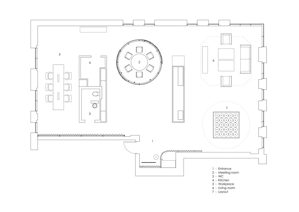
设计方案根据功能将空间划分为三个区域:带尺度模型的客厅、圆形会议室和员工办公室。
这些区域由两个黄铜镶板的盒子分隔——一种“空间锚”,办公室的生活围绕着它循环。厨房、卫生设施、办公室储物间等技术用房和公用用房均位于此。
中心元素是一个正圆形框架,是这个空间的尺度参考,由建筑师设计的一盏独一无二的灯照亮。它由周围的25个灯泡组成,与一般的照明概念形成对比。
室内设计的概念是由不同尺度的作品组成:5米高的会议室圆形大厅位于8.5米高的空间;圆形大厅被厚重的蓝色天鹅绒窗帘包围,保证了谈话的私密性;3,5米高的黄铜家具与大格局的黄铜面板强调规模的变化。
室内装饰元素:极简主义家具,精致的细节,地毯和落地高剧院窗帘在墙上作为不同区域的空间划分。
基于设计师的想法,所有的细节和家具都为了这个空间定制:顶部灯的比例模型,表的比例模型。它们突出了空间的独有个性,更加展现了不一样的办公空间风格。










项目名称:NV/9 ARTKVARTAL Sales Office
项目位置:Serebryanicheskaya Naberezhnaya, 1、корпус5 Moskva、俄罗斯
设计公司:Alexander Volkov Architects
设计团队:Alexander Volkov, Natalia Semchishina, Julie Petrova
设计时间:2018年
翻译整理:如室设计网

