Click the blue word design FB at the top to follow the design release public account
 
 
 
 
 
 
 
 
 
 
 
 
 
 
 
 
 
 
 
 
 
 
 
 
 
 
 
 
 
 
 
 
 
 
 
 
 
 
 
 
 
 
 
 
 
 
 
 
 
 
 
 
 
 
 
 
 
 
 
 
 
 
 
 
 
 
 
 
 
 
 
 
 
 
 
 
 
 
 
 
 
 
 
 
 
 
 
 
 
 
 
 
 
 
 
 
 
 
 
 
 
 
 
 
 
 
 
 
 
 
 
 
 
 
 
 
 
 
 
 
 
 
 
 
 
 
 
 
 
 
 
 
 
 
 
 
 
 
 
 
 
 
 
 
 
 
 
 
 
 
 
 
 
 
 
 
 
 
 
 
 
 
TOLKO继上次发表Almond 、Oregano和Latte作品之后,这次以极其细腻优雅的冷静美学又给受众带来佳作,以一贯低调和简单的风格,以不失质感的设计给人带来高贵宁静的视觉感受。
 
 
 
 
 
 
 
 
 
 
 
 
 
 
 
 
 
 
 
 
 
 
 
 
 
 
 
 
 
 
 
 
 
 
 
 
 
 
 
 
 
 
 
 
 
 
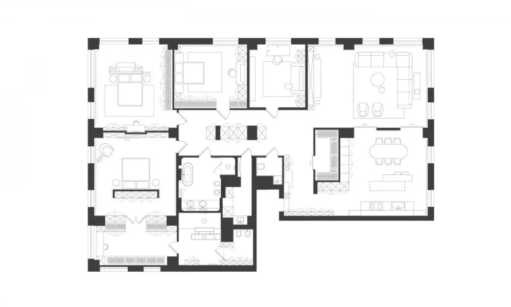
该项目坐标莫斯科,占地面积280㎡,由建筑师Gorokhov Denis and Nikolay Koloskov参与设计。
 
 
 
 
 
 
 
 
 
 
 
 
 
 
 
 
 
 
 
 
 
 
 
 
 
 
 
 
 
 
 
 
 
 
整体以单色调为基础,纯粹利落的线条,以一种浓厚的理性气息,弥漫在整个内部。他们擅长利用木质、玻璃、金属这些工业性较强的材料,完美地呈现了轻奢的现代风格。
 
 
 
 
 
 
 
 
 
 
 
 
 
 
 
 
 
 
 
 
 
 
 
 
 
 
 
 
 
 
从客厅的木质地板、到素雅的天花板,再到落地窗的窗帘,营造了一种舒适且含蓄的空间氛围。设计师采用中性色调与柔和的纹理的室内设计概念,赋予空间鲜明独特的个性。高级奢华的混色大理石结合金属质感的长条,给整个室内空间增添了不少艺术气息。
 
 
 
 
 
 
TOLKO由设计师Gorokhov Denis和 Nikolay KoIoskov联合创立于2006年,以极其细腻优雅的冷静美学,不失质感的设计给人带来高贵宁静的视觉感受。
 
 
 
 
 
 
 
 
 
 
 
 
 
 
 
 
 
 
 
 
 
 
 
 
 
 
 
 
 
 
在TOLKO的每一个作品里,干净的线条,纹理和色调的结合永不缺席。表达高贵奢华的方式千万种,唯有一种是怎么都表达不出来的是它一直低调和简单的风格仍然给人一种宁静的享受。
 
 
 
 
 
 
 
 
 
 
 
 
 
 
TOLKO由设计师Gorokhov Denis和 Nikolay KoIoskov联合创立于2006年,以极其细腻优雅的冷静美学,不失质感的设计给人带来高贵宁静的视觉感受。
 
 
 
 
 
 
 
 
 
 
 
 
 
 
 
 
 
 
在TOLKO的每一个作品里,干净的线条,纹理和色调的结合永不缺席。表达高贵奢华的方式千万种,唯有一种是怎么都表达不出来的是它一直低调和简单的风格仍然给人一种宁静的享受。
 
 
 
 
 
 
 
 
 
 
 
 
 
 
 
 
 
 
 
 
 
 
 
 
 
 
 
 
TOLKO由设计师Gorokhov Denis和 Nikolay KoIoskov联合创立于2006年,以极其细腻优雅的冷静美学,不失质感的设计给人带来高贵宁静的视觉感受。
 
 
 
 
 
 
 
 
 
 
 
 
 
 
 
 
 
 
 
 
 
 
 
 
 
 
 
 
 
 
在TOLKO的每一个作品里,干净的线条,纹理和色调的结合永不缺席。表达高贵奢华的方式千万种,唯有一种是怎么都表达不出来的是它一直低调和简单的风格仍然给人一种宁静的享受。
 
 
 
 
 
 
 
 
 
 
 
 
 
 
 
 
 
 
 
 
 
 
 
 
 
 
 
 
 
 
 
 
 
 
 
 
TOLKO由设计师Gorokhov Denis和 Nikolay KoIoskov联合创立于2006年,以极其细腻优雅的冷静美学,不失质感的设计给人带来高贵宁静的视觉感受。
 
 
 
 
 
 
 
 
 
 
 
 
 
 
 
 
 
 
 
 
 
 
 
 
 
 
 
 
 
 
 
 
 
 
在TOLKO的每一个作品里,干净的线条,纹理和色调的结合永不缺席。表达高贵奢华的方式千万种,唯有一种是怎么都表达不出来的是它一直低调和简单的风格仍然给人一种宁静的享受。
 
 
 
 
 
 
 
 
 
 
 
 
 
 
 
 
 
 
TOLKO由设计师Gorokhov Denis和 Nikolay KoIoskov联合创立于2006年,以极其细腻优雅的冷静美学,不失质感的设计给人带来高贵宁静的视觉感受。
 
 
 
 
 
 
 
 
 
 
 
 
 
 
 
 
 
 
 
 
 
 
 
 
 
 
 
 
 
 
 
 
在TOLKO的每一个作品里,干净的线条,纹理和色调的结合永不缺席。表达高贵奢华的方式千万种,唯有一种是怎么都表达不出来的是它一直低调和简单的风格仍然给人一种宁静的享受。
 
 
 
 
 
 
 
 
 
 
 
 
 
 
 
 
 
 
 
 
 
 
 
 
 
 
 
 
 
 
 
 
 
 
TOLKO由设计师Gorokhov Denis和 Nikolay KoIoskov联合创立于2006年,以极其细腻优雅的冷静美学,不失质感的设计给人带来高贵宁静的视觉感受。
 
 
 
 
 
 
 
 
 
 
 
 
 
 
 
 
 
 
 
 
 
 
 
 
 
 
 
 
 
 
 
 
 
 
 
 
 
 
 
 
 
 
 
 
 
 
 
 
 
 
 
 
 
 
 
 
 
 
 
 
 
 
 
 
 
 
 
 
在TOLKO的每一个作品里,干净的线条,纹理和色调的结合永不缺席。表达高贵奢华的方式千万种,唯有一种是怎么都表达不出来的是它一直低调和简单的风格仍然给人一种宁静的享受。
 
 
 
 
 
 
 
 
 
 
 
 
 
 
 
 
 
 
 
 
 
 
 
 
 
 
 
 
 
 
 
 
 
 
 
 
 
 
 
 
 
 
 
 
 
 
 
 
 
 
 
 
 
 
 
 
 
 
TOLKO由设计师Gorokhov Denis和 Nikolay KoIoskov联合创立于2006年,以极其细腻优雅的冷静美学,不失质感的设计给人带来高贵宁静的视觉感受。
 
 
 
 
 
 
 
 
 
 
 
 
 
 
 
 
 
 
在TOLKO的每一个作品里,干净的线条,纹理和色调的结合永不缺席。表达高贵奢华的方式千万种,唯有一种是怎么都表达不出来的是它一直低调和简单的风格仍然给人一种宁静的享受。
 
 
 
 
 
 
 
 
 
 
 
 
 
 
 
 
 
 
 
 
 
 
 
 
TOLKO由设计师Gorokhov Denis和 Nikolay KoIoskov联合创立于2006年,以极其细腻优雅的冷静美学,不失质感的设计给人带来高贵宁静的视觉感受。
 
 
 
 
 
 
 
 
 
 
 
 
 
 
 
 
 
 
 
 
 
 
 
 
 
 
 
 
 
 
 
 
 
 
 
 
在TOLKO的每一个作品里,干净的线条,纹理和色调的结合永不缺席。表达高贵奢华的方式千万种,唯有一种是怎么都表达不出来的是它一直低调和简单的风格仍然给人一种宁静的享受。
 
 
 
 
 
 
 
 
 
 
 
 
TOLKO由设计师Gorokhov Denis和 Nikolay KoIoskov联合创立于2006年,以极其细腻优雅的冷静美学,不失质感的设计给人带来高贵宁静的视觉感受。
 
 
 
 
 
 
 
 
 
 
 
 
在TOLKO的每一个作品里,干净的线条,纹理和色调的结合永不缺席。表达高贵奢华的方式千万种,唯有一种是怎么都表达不出来的是它一直低调和简单的风格仍然给人一种宁静的享受。
 
 
 
 
 
 
TOLKO由设计师Gorokhov Denis和 Nikolay KoIoskov联合创立于2006年,以极其细腻优雅的冷静美学,不失质感的设计给人带来高贵宁静的视觉感受。
 
 
 
 
 
 
 
 
 
 
 
 
 
 
 
 
 
 
 
 
 
 
 
 
在TOLKO的每一个作品里,干净的线条,纹理和色调的结合永不缺席。表达高贵奢华的方式千万种,唯有一种是怎么都表达不出来的是它一直低调和简单的风格仍然给人一种宁静的享受。
 
 
 
 
 
 
 
 
 
 
 
 
 
 
TOLKO由设计师Gorokhov Denis和 Nikolay KoIoskov联合创立于2006年,以极其细腻优雅的冷静美学,不失质感的设计给人带来高贵宁静的视觉感受。
 
 
 
 
 
 
 
 
 
 
 
 
 
 
 
 
 
 
 
 
在TOLKO的每一个作品里,干净的线条,纹理和色调的结合永不缺席。表达高贵奢华的方式千万种,唯有一种是怎么都表达不出来的是它一直低调和简单的风格仍然给人一种宁静的享受。
 
 
 
 
 
 
 
 
 
 
 
 
 
 
 
 
 
 
 
 
TOL’KO是一家位于圣彼得堡的设计工作室,网络上基本没有TOL’KO相关信息。和他们的作品一样非常低调。但每个作品都会给你带来新的设计灵感。 TOLKO Interior素雅色彩,精致的家具,低调且华丽的设计风格。设计师拒绝使用浮夸且奢华的家饰或色彩进行装饰,利用灰色调让整个空间显得沉稳,宁静,彰显出高贵与华丽气息。


