编译:专筑网邢子,小R
项目位于温暖潮湿的热带气候环境中,场地是一块面积有限的坡地,这是为彩票销售商及其家庭设计的一所预算有限的住宅。
该项目须以1,200,000印度卢比完成。
每个家都是一座房子,但并非每座房子都是一个家。
在当今的社会中,尽管人们无法完全理解所有人的想法,但在试图创造标准的过程中,建筑师却独创地为客户设计每个空间。
该住宅拥有双重的设计解读,建筑师既为使用者定制专属空间,也让空间具有私密特征。
这是一种在家庭和住宅、用户和设计师之间进行协调的尝试,前者可容纳使用者的空间个性化和记忆特征,而后者则成为建筑师的设计标志。“介于之间的住宅”是Juhani Pallasm设计内涵的核心解读,是对亲密关系和住所的设计探索,重新定义了现代住宅设计的二元性,其中家庭和住宅的矛盾思想共存。多功能的内部装饰是一种空间属性,会随着时间的推移与住户进行转换,从而形成他们自己的“家庭”习惯。而住宅的外部形式则是可视化对象,具有个人主义色彩,同时与对场地边界的反应具有一定的相关性。
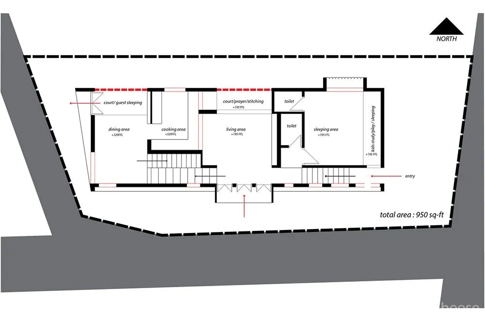
该项目重新定义了当前空间数量重于空间质量的社会概念。在一个将房间数量视为大房子标准的社会中,这一尝试试图使每个空间活动和时间更加多元。内部主要活动空间旁有缓冲区,由阶梯通向走廊和球场,为住户提供了潜在的空间分配内容。在需要时可形成个人活动空间,并可扩大为家庭规模的较大空间。缓冲区是孩子可以适应活动的地方,使他能够建立自己对家庭的感知。这种个性化的设计在家庭记忆的形成中充当粘合剂,并加深了与空间的个人关联。
是住宅的表皮,外立面是对附近边界条件和当地气候的真实反应。每个立面都通过其孔隙度对邻近区域做出反馈。南侧是农业用地,是可能保留数年的开放场地。从屋顶看去是交错的砖墙,砖墙上有特定的开口,这些开口在不同的水平上架起了平面,而大门也朝着同一方向开敞。北侧是一处空地,但之后可能会建造新的建筑,这将减少住宅的景观性及私密性,同时也将向住宅的墙壁反射热量。因此,整个北立面均由多孔陶瓷砖制成,在公共区域沿多孔结构排列,厨房和卧室采用带窗帘的窗户确保空间私密性。
面对车辆进出的主入口立面密不透风,只有一个侧门和通风的百叶窗。鲜明的白色墙体雕刻出一个空隙,在正立面上形成了微妙的阳台空间。朝西的后院被树木覆盖,有一个阳台和公共休息区,可通往果岭。这些墙壁形成了表皮和建筑形式的特征,内部功能合理,同时在周围的房屋中也有其特点,带有建筑师的设计风格。
建筑沿东西向展开,主要开口分布在南侧和北侧,而其多孔的形式使风能在建筑中自由穿梭。由于使用多孔百叶窗、Weinerberger物料和热缓冲物质,住宅的内部温度比周围房屋低约5-7度。 材质:用于墙壁和百叶窗的隔热Porotherm砖,形成缓冲庭院的表皮,可以加强通风并对太阳光线进行热控制。当地的混凝土砌块用于砌筑剩余的墙壁,取材方便,可以直接运送到现场。 窗户:窗的大小由砖块大小决定,减少对砖的切割。 门:旧的木门从拆毁的房屋中取材,并重复使用。 门梁:由金属管铸成,不使用混凝土过梁。
建筑设计:Ego Design Studio 地点:印度 类型:住宅 面积:950.0平方英尺(约88.3平方米) 项目时间:2018年 摄影:Prasanth Mohan ( Running Studios) 制造商:Autodesk, Berger Paints, Build UP Building Material Industries, ProgeCAD, Restile, wienerberger india private limited 主创建筑师:Niranjan C Warrier,UABHIlash UA,Sudheesh S,Jerry Sam,Jayaram GS,Aravind T 设计团队:Anil Prasad,Dhanveer Ahmed,Arun Babu, 客户:Naveen Kumar – Nisha 工程:Krishna Gadha 景观:Aarati Binayak


