© Tom Blachford
汤姆·布莱克福德
架构师提供的文本描述。标志性的Méthode传统制片商Chandon澳大利亚将迎来地窖之门的复兴,与其产品和遗产的质量相匹配。从概念上来说,我们把酒厂的法国起源和新世界的环境结合起来,创造了一个新的品牌-从零售、酒吧、品尝到餐饮。
Text description provided by the architects. Iconic méthode traditionelle producer Chandon Australia was due a cellar door rejuvenation that matched the calibre of its offering and heritage. Conceptually marrying the winery’s French origins with its new-world locale, we created a new brand-immersion across retail, bar, tasting and dining.
Text description provided by the architects. Iconic méthode traditionelle producer Chandon Australia was due a cellar door rejuvenation that matched the calibre of its offering and heritage. Conceptually marrying the winery’s French origins with its new-world locale, we created a new brand-immersion across retail, bar, tasting and dining.
© Tom Blachford
汤姆·布莱克福德
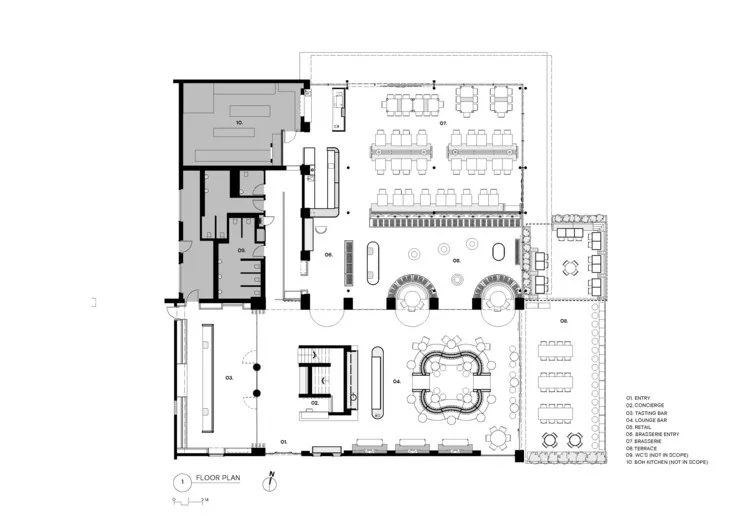
我们的简介是对网站进行全面改革,重点放在客户的品牌体验上。然而,预算要求保留有圆管拱形天花板的庞大建筑,要求对声学进行微妙的管理,并考虑划分区域。原址的布局脱节,造成了混乱的气氛。这意味着,在繁忙的周末,游客通常只停留一个快速,半小时的品尝停留,然后迅速进入下一个酒厂。
Our brief was to overhaul the site with a tight focus on customer brand experience. However, the budget demanded that the voluminous architecture with barrel-vaulted ceilings be retained, requiring subtle management of acoustics and considered demarcation of zones. The original layout of the site was disjointed, resulting in a chaotic atmosphere. This meant that on busy weekends, visitors were typically staying for just a quick, half-hour tasting stop before moving swiftly onto the next winery.
Our brief was to overhaul the site with a tight focus on customer brand experience. However, the budget demanded that the voluminous architecture with barrel-vaulted ceilings be retained, requiring subtle management of acoustics and considered demarcation of zones. The original layout of the site was disjointed, resulting in a chaotic atmosphere. This meant that on busy weekends, visitors were typically staying for just a quick, half-hour tasting stop before moving swiftly onto the next winery.
© Tom Blachford
汤姆·布莱克福德
Floor Plan
© Tom Blachford
汤姆·布莱克福德
为了鼓励客户流连忘返,我们将酒吧体验分离和多样化,分为两种不同的功能。我们的概念‘压缩/释放’是揭示在附近的亲密品尝室和通风休息室。阁楼的办公室被重新设计成私人品尝室,以容纳更多的人,而露台的延伸则是为了最大限度地扩大葡萄园的壮丽景色。这些空间重组之所以成为可能,是因为客户希望减少布拉斯塞里的足迹,这是一个相对正式的空间,需要成为日间就餐的一种更吸引人的休闲体验。
To encourage customers to linger, we separated and diversified the bar experience into two distinct functions. Our concept ‘compssion/release’ is revealed in the adjacency of the intimate tasting room and the airy lounge bar. Mezzanine offices were repurposed into private tasting rooms to host larger groups, while the terrace was extended to maximize the magnificent vista of the vineyards beyond. These spatial reconfigurations were made possible through the client’s wish to reduce the footprint of the brasserie, a relatively formal space, which needed to become a more inviting and casual experience for daytime dining.
To encourage customers to linger, we separated and diversified the bar experience into two distinct functions. Our concept ‘compssion/release’ is revealed in the adjacency of the intimate tasting room and the airy lounge bar. Mezzanine offices were repurposed into private tasting rooms to host larger groups, while the terrace was extended to maximize the magnificent vista of the vineyards beyond. These spatial reconfigurations were made possible through the client’s wish to reduce the footprint of the brasserie, a relatively formal space, which needed to become a more inviting and casual experience for daytime dining.
© Tom Blachford
汤姆·布莱克福德
由于产品采购是游客的主要支付卡,零售成为解决问题的关键环节。我们努力以一种流动和整体的方式将其集成到客户体验中,并推进零售设计方法,而不是将其保留为通常的单独操作。通过战略性地将这一服务搬迁到休息室酒吧和酒廊之间的一个主要位置,顾客们被鼓励自然地在这两个区域之间漫步。
As product purchase is the main drawcard for visitors, retail became a critical component of the brief to resolve. We strove to integrate it into the customer experience in a fluid and holistic manner; and to advance retail design methodology, rather than keeping it the usual separate exercise. By strategically relocating this offering to a prime position between the lounge bar and brasserie, patrons are encouraged to naturally wander between the zones.
As product purchase is the main drawcard for visitors, retail became a critical component of the brief to resolve. We strove to integrate it into the customer experience in a fluid and holistic manner; and to advance retail design methodology, rather than keeping it the usual separate exercise. By strategically relocating this offering to a prime position between the lounge bar and brasserie, patrons are encouraged to naturally wander between the zones.
© Tom Blachford
汤姆·布莱克福德
North and South Elevation
南北高程
© Tom Blachford
汤姆·布莱克福德
感谢钱登的母公司-路易威登-我们创造了一种独特而充满活力的零售体验,受到路易威登门店戏剧性奢侈品的影响。参照炼金术(将普通金属转化为黄金),我们进行了各种金属加工工艺的强化测试,以开发定制的金属饰面。这一结果反映在我们与当地玻璃纤维和金属工匠密切合作开发的定制细木工上:瓶装气泡激发的光盘;折叠和弯曲的存储系统;以及以提取的葡萄酒软木为形式的便携商品柱。超越了客户简要说明的关键方面,该产品现在被展示在一个创造性的环境中,将其提升到最高标准。
Acknowledging Chandon’s parent brand—LVMH—we created a unique and dynamic retail experience influenced by the dramatic luxury found in Louis Vuitton stores. Referencing alchemy (the transmutation of ordinary metals into gold), we engaged in an intensive process of testing various metalwork techniques to develop custom metal finishes. The results are reflected in the bespoke joinery we developed in close collaboration with local fibre glass and metal craftspeople: framed bubble-inspired discs for bottle display; folded and curved storage systems; and portable merchandising plinths in the form of abstracted wine corks. Exceeding key aspects of the client’s brief, the product is now showcased in a creative setting that elevates it to the highest standard.
Acknowledging Chandon’s parent brand—LVMH—we created a unique and dynamic retail experience influenced by the dramatic luxury found in Louis Vuitton stores. Referencing alchemy (the transmutation of ordinary metals into gold), we engaged in an intensive process of testing various metalwork techniques to develop custom metal finishes. The results are reflected in the bespoke joinery we developed in close collaboration with local fibre glass and metal craftspeople: framed bubble-inspired discs for bottle display; folded and curved storage systems; and portable merchandising plinths in the form of abstracted wine corks. Exceeding key aspects of the client’s brief, the product is now showcased in a creative setting that elevates it to the highest standard.
© Tom Blachford
汤姆·布莱克福德
色彩反映了景观中季节性的色调变化,如暗粉色和绿色天鹅绒,天然青铜色调,陈年皮革和印有土著艺术家的纺织品。在餐厅里,黄铜灯饰暗示着巴黎小酒馆的美学,而昆士兰的“梦想时间”大理石和土生土长的树胶木材细木工和地板,则将钱登锚定在澳大利亚的环境中。
Colors reflect seasonal tonal shifts in the landscape, like dusky pink and green velvet, natural bronze-toned hues, aged leather and printed textiles by Indigenous artists. In the restaurant, brass light fittings suggest a Parisian bistro aesthetic, while the use of Queensland ‘Dreamtime’ marble and native, spotted gum timber joinery and flooring throughout, anchors Chandon to its Australian setting.
Colors reflect seasonal tonal shifts in the landscape, like dusky pink and green velvet, natural bronze-toned hues, aged leather and printed textiles by Indigenous artists. In the restaurant, brass light fittings suggest a Parisian bistro aesthetic, while the use of Queensland ‘Dreamtime’ marble and native, spotted gum timber joinery and flooring throughout, anchors Chandon to its Australian setting.
© Tom Blachford
汤姆·布莱克福德
炼金术的最后结局是金属工匠和我们的设计师合作的结果-一种悬挂在酒廊中央班格上的动力移动车。动态,浮力和微妙的重量,这个雕塑皮耶斯的抵抗投射出一个闪闪发光的帕蒂纳在一个有趣的采取了不可预测的性质泡沫。
The alchemic finale was the outcome of collaboration between metal-craftspeople and our designers – a kinetic mobile suspended over the lounge bar’s central banquette. Dynamic, buoyant and delicately weighted, this sculptural pièce de résistance projects a sparkling patina in a playful take on the unpdictable nature of bubbles.
The alchemic finale was the outcome of collaboration between metal-craftspeople and our designers – a kinetic mobile suspended over the lounge bar’s central banquette. Dynamic, buoyant and delicately weighted, this sculptural pièce de résistance projects a sparkling patina in a playful take on the unpdictable nature of bubbles.
© Tom Blachford
汤姆·布莱克福德
Architects Foolscap Studio
Location Yarra Ranges, Victoria, Australia
Category Restaurants & Bars
Lead Architects Adèle Winteridge, Holly White, Aaron Shipperlee
Area 680.0 m2
Project Year 2017
Photographs Tom Blachford
Manufacturers Loading…

