越秀·悦湖台营销中心,是由TTJV联合打造的艺术展示场所。TTJV双方创始人曾于CCD共事十年,建立了深厚的情谊。两人从业二十多年以来,已为HILTON希尔顿、ACCOR雅高、STARWOOD喜达屋、RAFFLES莱佛士、IHG洲际、MARRIOTT万豪等国际知名品牌酒店管理集团提供代表性的酒店室内设计及专业顾问服务,成就蜚声业界,为合作伙伴创造更高的价值。
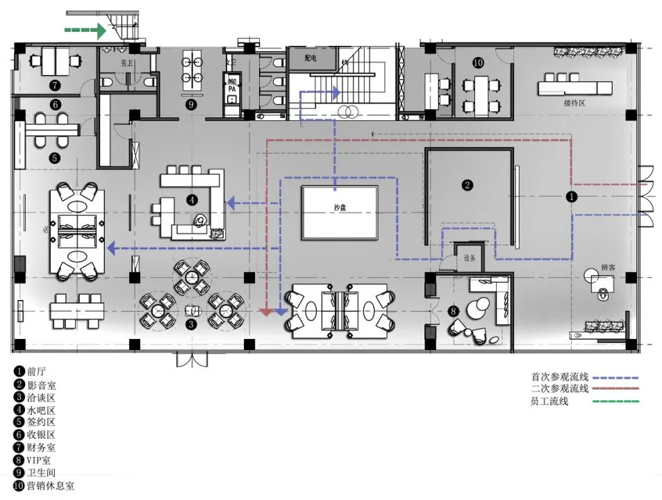
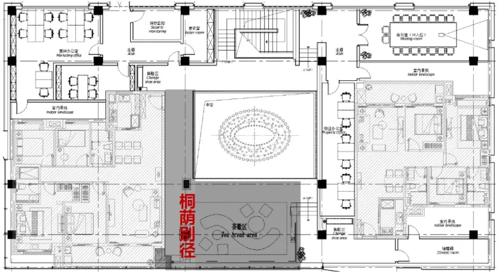
时光荏苒,友谊长存。自分别创业以来,两位好朋友也多次联手为项目进行合作,这次有幸再次强强联手,越秀·悦湖台营销中心从项目的精准定位、概念设计、方案设计、再到整体的实施落成,用时不超四个月。在未来的道路上,双方将不负韶华再向前、坚守初心再出发! 楚辞有云:“浩浩沅湘,分流汨兮。” 千百年来,湘江水浪滔滔,奔腾不止,造就了渚清沙白的沿江风光带,更浸染着湖湘文化;岁月悠悠,斗换星移。古老的楚汉名城,屈贾之乡经历了时代的变迁和文化的积累。 如今提及长沙,重现于脑海中的是美食美景及丰富的教育、医疗资源,以及令人耳熟能详的岳麓书院、橘子洲头滋养着这座城市,连接着每一个生活于此的生命个体。越秀.悦湖台售楼处作为越秀进驻长沙首个示范区项目,承载着销售、更新城市界面的高品质会客厅要求,同时希望带动片区的城市生活品质。 设计团队悉心提炼长沙的城市印象与地域文化,从书院出发将人文元素植入到营销中心空间设计概念中。 岳麓书院八景 前四景:柳塘烟晓、桃坞烘霞、风荷晚香、桐荫别径; 后四景:花墩坐月、碧沼观鱼、竹林冬翠、曲涧鸣泉。 在当代审美语境下,我们在设计中回归对优雅的艺术解读、物质与精神的互动。于极致简朴质雅中打造一个充满意境的艺术体验中心,彰显典雅凝练的空间美学。 竹林冬翠——接待大厅辩客区 将简洁而界面分明的块面关系引入室内,平衡、构成、对比,这一系列关键词成为了我们解决空间的重点。通过体块的关系实现空间上留白, 是给生活留下想象的空间,三两艺术品点缀层次,增加空间趣味性,现代简约空间融合东方意韵情感。 原木质感的飘带造型似遒劲有力的笔触在泼墨挥洒,给空间特有的情景带入与意境升华。 “竹”历来为文人墨客所钟爱,富有自然气息的造景引入,强调“岳麓书院”主题同时软化空间界限,拉进物我距离。 曲涧鸣泉——沙盘展示区水吧展示区 曲涧,指清风峡爱晚亭流经书院园林的溪涧,清涧山泉缓缓而下,数点桃花、几片红叶,触石有声,若有心读书,可在清涧边择一青石而坐,书声泉水声互相唱和,天地人自然合,这才是生活的终极乐趣。 沙盘区至上而落的艺术灯具,以“水滴”涟漪在水中变幻形态为设计发想,轻盈飘逸。整体视觉空间形成聚焦,令观者留下深刻记忆点。 山水相依显一方意境,水流山涧奏一曲合鸣,向来是古代文人墨客诗酒唱酬的一件雅事,借空间围合水吧之行,造一处曲水流觞之境。 花墩坐月——洽谈区 皎洁月色 、明月高悬,露珠清凉晶莹,银河疏朗娴静,凭栏夜眺,微风徐徐 。 浅洽区以书为伴,山水之间,雅中有静,静中有境,温润木色书架和屏风结合方式划分出几个交流区域,形式上重新建立起一种序列感,营造出博学于文怡情养性的书院意境。多维度的桌椅组合满足不同场景的切换棉麻与皮饰面提升空间的品质感,将植物、花艺的自然力量注入空间,使空间呈现自由放松的氛围与景致。 整个空间中最好的景致,莫过于紧邻玻璃幕墙的洽谈区域,外景引入室内,更烘托花墩坐月的意境。圆形画面展示满月状态,饰品营造彰显坐态轻松。将场景化阅读与商业空间完美融合,营造出一个沉浸式阅读情境,围炉而坐,品茶品书品人生。 VIP室强调舒适性、尊贵感,整体调性融入了家庭的温馨感,通过现代抽象挂饰,让人文气息与时尚兼备同时贵宾气质得以彰显。 桐荫别径——看房通道茶歇区 在这里,楼梯不仅仅是功能性的连接,更像是一座抽象的艺术装置,踏入其中,有曲径通幽之感。人各有其心境,各怀其情趣。 具有岳麓书院代表的人文、建筑画面入手,结合现代装裱形式,跳动的韵律伴着城市的变迁。象征着从以前到现在的发展程给人带来城市与家的归属感。 桐荫别径尽头,大树底下,悠然的小鹿在青青草地俯看。阳光透过建筑洒向草原,模糊了空间关系的此刻,一切都是那么的和谐自然。 平面效果图 项目信息 项目名称 | 越秀·悦湖台营销中心 甲方单位 | 越秀地产 项目地址 | 湖南省长沙市岳麓区咸嘉湖路570号 项目规模 | 990㎡ 软装限额 | 2400元/㎡ 硬装限额 | 2200元/㎡ 软装设计 | 深圳市同心同盟装饰设计有限公司 硬装设计 | 深圳市维捷装饰设计有限公司 关于设计 陈伟文 Wayman TT Design创始人、总设计师 陈伟文先生作为同心同盟设计的创始人、深圳市十杰设计师,曾担任室内设计师协会副秘书长,凭借16年的高端空间设计经验,在私宅、会所、酒店、样板房等业务领域颇有建树。他曾为HILTON希尔顿、ACCOR雅高、RAFFLES莱佛士、IHG洲际等国际知名品牌酒店管理集团提供专业设计服务,创造卓越价值,成就蜚声业界。 王红微 VIvi TT Design合伙人、软装总设计师 王红微女士作为同心同盟设计的合伙人、大中华区十佳软装设计师、国际注册高级室内设计师。她曾主持设计HILTON(希尔顿)、ACCOR(雅高)、STAR.WOOD(喜达屋)、RAFFLES(莱佛士)、IHG (洲际)、MARRIOTT(万豪)等高端品牌酒店的设计项目。其细心认真的工作态度深得业主称赞,敏锐的审美视角和多元的创意思维在空间设计领域不断创造惊喜。
售楼处 典雅 纯净 静谧

