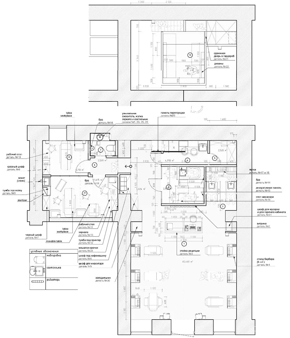
KULT是一家位于敖德萨(Odessa)旧城中心的理发店。该理发店位于一座老旧的建筑中,面积为100平方米,在本次改造之前除了一个破旧的门面之外一无所有。鉴于木地板上不能放置重物,设计团队便决定将油毡地板作为大部分地板的铺面材料。
客户希望本项目在设计上能够明显区别于当下流行的loft风格空间。因此室内空间不仅舍弃了旧砖、发型设计海报和其他一系列传统理发店的典型特征等,还加入了许多额外的功能空间。此外,设计团队还在理发店内设计了一个放置着沙发、容纳着额外技术室的夹层空间,从而给人们提供了一个放松的场所。
▼理发店柜台,采用不锈钢板作为背景
▼放置着沙发的夹层休息区
项目的时间十分紧张,从开始设计到施工完毕,整个周期仅有三个月(设计周期1.5个月,施工周期1.5个月),因此设计团队选择了最简单的解决方案。他们将室内空间的墙体对齐,并在其表面上覆以定制的装饰性灰泥,从而极大地节省了时间。
空间色调和设计细节的确定速度很快。本项目的一部分空间是边施工边设计的。所有的家具、固定设施和管道等均按照设计草图布置。墙体表面覆盖着粗糙的装饰性灰泥,从而节省了完善墙体的时间。
美容养生 国外 后现代 水波纹玻璃


?