发廊的门面亮丽触目,为周围环境注入活力,顾客一踏进君悦酒店便即可见。入到发廊开放的门厅,迎讶着是气派细腻典雅的灰白色木地板,轻轻的分划出发廊范围。
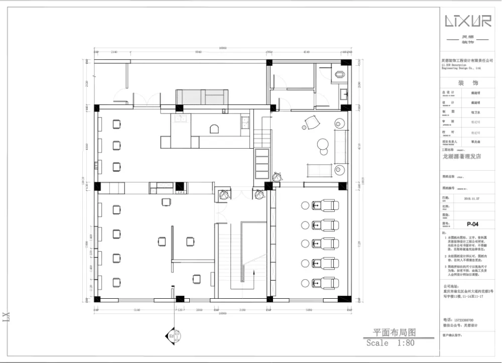
设计机构:重庆市灵想装饰有限责任公司 项目名称:美发官美发店 设计范围:室内空间设计 项目地点:重庆·龙湖源著 项目面积:250平方米 完成年份:2020年01月
美容养生 高级灰 后现代 艺术
发廊的门面亮丽触目,为周围环境注入活力,顾客一踏进君悦酒店便即可见。入到发廊开放的门厅,迎讶着是气派细腻典雅的灰白色木地板,轻轻的分划出发廊范围。
设计机构:重庆市灵想装饰有限责任公司 项目名称:美发官美发店 设计范围:室内空间设计 项目地点:重庆·龙湖源著 项目面积:250平方米 完成年份:2020年01月
美容养生 高级灰 后现代 艺术
之前
