STUDIO DOHO受联合零售品牌OceanSpot的委托,在上海为其设计了第一家概念店。门店位于8号桥创意中心的入口处,旨在以鲜明大胆的设计来吸引顾客,同时为创意专业人士提供别具一格的会面地点。
面积为127平方米的双层高外立面覆盖着一层二向色薄膜,呈现出变化的色彩。从立面上切割出的圆洞定义出零售区的展示窗口,为门店赋予了动态的观感,同时在周围的人行道上投下多彩的光影。
该设计完成于2018年秋季,其主要挑战在于,要找到一种富有创意的方式为店面赋予独特性,并且尽可能地减少对既有玻璃立面的影响。主创设计师Xin Dogterom和Jason Holland表示:“在第一次看到二向色薄膜样品的时候,我们就知道它将成为表达该项目精髓的完美材料,同时还能够将对既有店面的影响降至最低。最终,项目以一种我们从未想象过的方式焕发出新生。”
OceanSpot作为联合零售品牌,会基于特定的主题来策划购物体验。对此,Xin Dogterom表示:“全世界的实体零售行业都在迅速地变化,而中国也许是变化速度最快的地方。网上购物的普及性和便利性迫使着品牌和设计师们去重新思考传统的购物要素。Jason Holland补充道:“这为强调购物体验的品牌提供了契机,它能够在吸引消费者的同时,成为一个独一无二而又不断变化的购物目的地。”
设计师在室内的墙壁和立柱上安装了一系列木制和金属的网格,以适应不停变化的展示需要。预先定制的架子和挂钩系统可根据具体的产品以不同方式插入网格,从而带来无限数量的组合。
The Coffee Academics咖啡厅的工艺吧台为多样化的空间提供了背景,在优化购物体验的同时,也为在商业楼里工作的创意人士提供了聚会的焦点。




▼展示墙设计示意
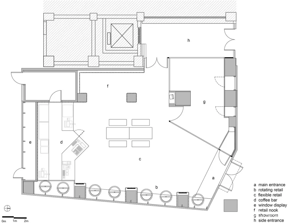
▼平面图
▼设计概念图
项目名称:OceanSpot Co-Retail
设计:工作室DOHO
设计年及竣工年:2018年秋季
主要设计师:Xin Dogterom和Jason Holland
项目地点:中国上海
总建筑面积:127平方米
摄影作品:塞斯·鲍尔斯摄影


点点赞赏,手留余香