苏黎世(德语:Züri)是瑞士联邦的最大城市,位于阿尔卑斯山北部,18、19世纪,苏黎世成为瑞士主要讲德语民族的文化教育和科学中心,许多著名的科学家,包括爱因斯坦和核物理的创始人之一的沃尔弗同·波里都在这里学习和工作过。
这一个位于苏黎世的 Seefeld (塞费尔德)地区,底层为工作室的多户住宅房屋。房子处于城市的核心区域,根据苏黎世政策规定现有房屋为历史保护建筑,所以在改建的同时又保护古迹成为了设计中的难点。
这栋建筑已经有 170 年的历史,可以说改建的过程就是与苏黎世历史对话的过程。
170年历史的原生建筑
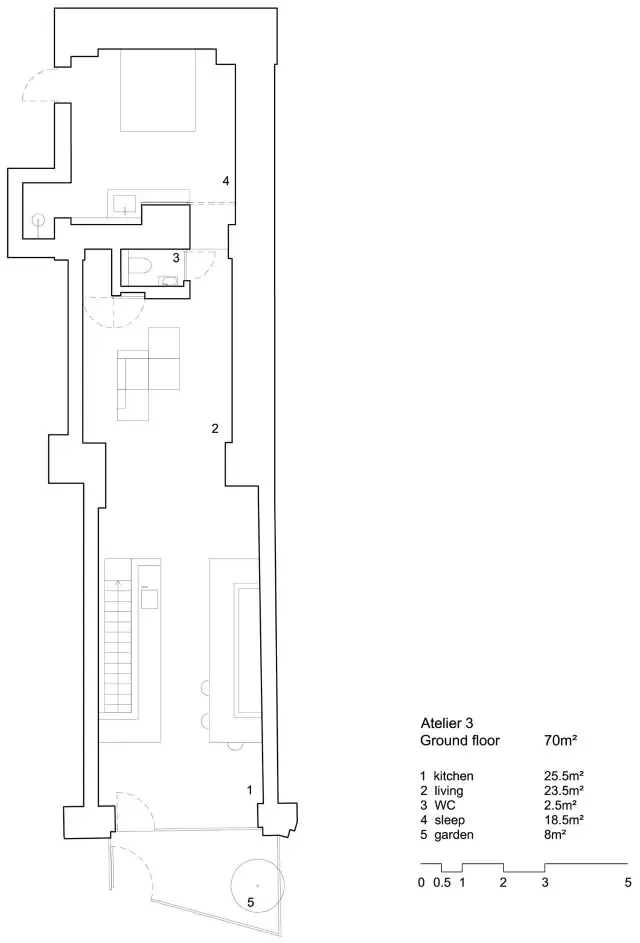
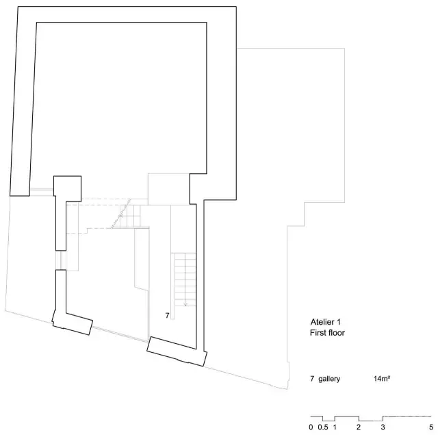
将现代新鲜的生活方式带入这所古建筑的接口是这些历史悠久的巨大石墙,建筑师在其中设计了 5 间小公寓,和 4 处可居住的工作室。
天然的石墙很久以前就建好了,之后又被抹上了石膏。设计师打掉了原来的石膏层,让原始的石墙肌理在空间里得以展现。设计师对材料的运用,完美的体现了建筑社会学角度,层级资产阶级房屋的样貌。展现了房屋有趣的一面,又不会破环历史建筑的外观效果。
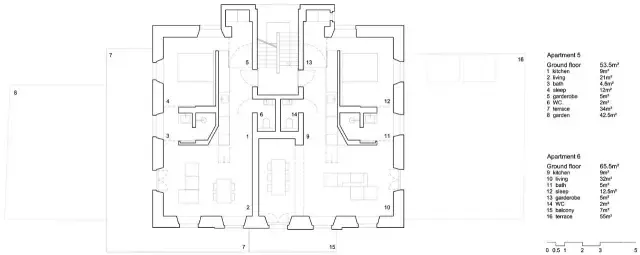
位于顶层的 5、6 号公寓
家具被整合在内部空间里,由混凝土,原木和石膏制成。20厘米厚的框架木窗直接安装在的天然石板上。
在狭窄的空间里,设计师沿着天然石墙创造出一个自由流动的空间。根据社会结构和房屋使用者的习惯,将空间内的流程与天然石墙相结合。
内置的轻体石膏与原本的墙体结合在一起,形成了岩石般的外观。
在工作室的设计里,设计师将石拱门和混凝土材质自然的结合,展现了现代空间对历史元素的回应。石头的材质的独到运用只是整个室内的一部分,空间中的光效极具诗意,满足了观者的感官的同时,也成为整个空间的点睛之笔。
独特雅致的木质造型与石头墙面的组合竟然浑然天成。这样的空间让人特别想静下来,慢下来。
粗糙的材质带来了历史的痕迹
场地中有一堵一米宽的石墙,还有20厘米厚实木框架的窗子和混凝土家具。
所有的元素呈现的都是最原始的状态,没有多余的分层。没有劣质的材料,没有社会污染也没有历史内涵的丢失。混凝土,原木,石膏,这些最粗犷的材质打造了最细腻的空间。不喧嚣,却有格调。
设计的最高境界就是回归自然本身,这样的空间自由而真实。
改造 混凝土 毛坯 水泥 住宅

