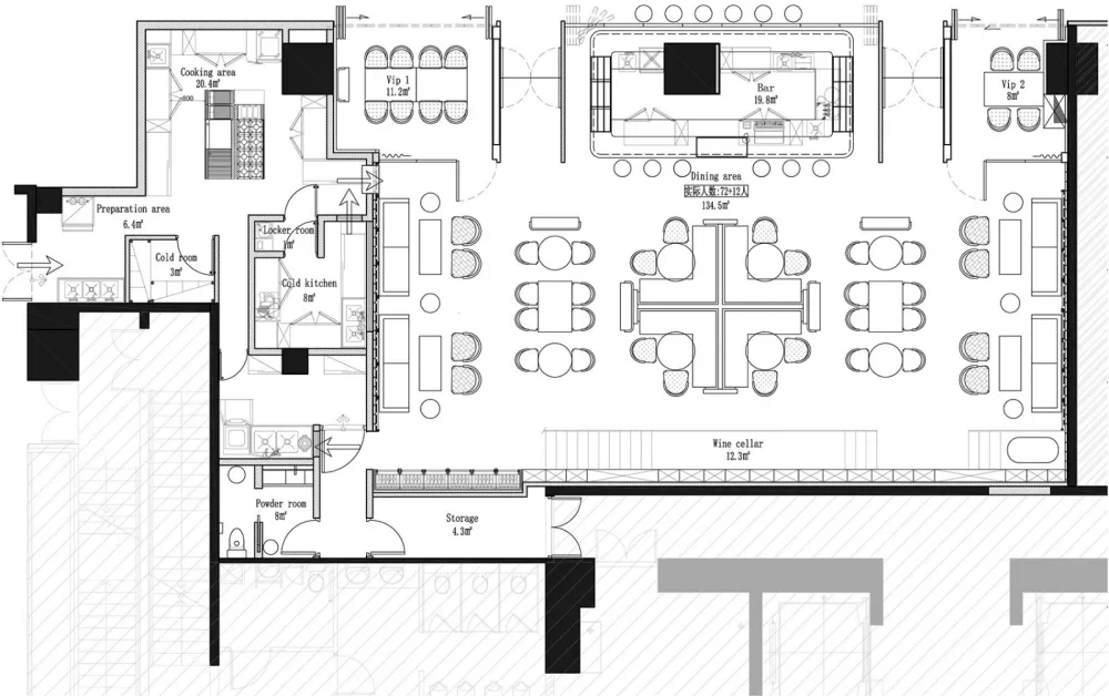
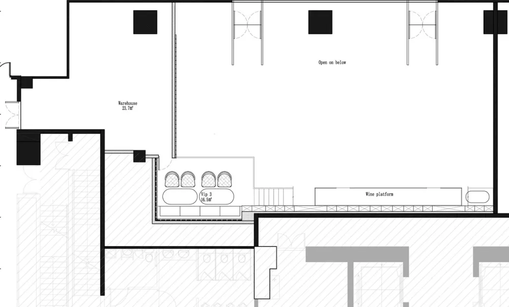
16米长的葡萄酒库内,5米高的垂直酒架上摆放着超过5000瓶葡萄酒……设计师希望为顾客提供一个以葡萄酒为主题的独特体验,顾客一步入酒馆内就获得了一种酒窖式的体验。用餐区位于空间中部,在葡萄酒库和吧台之间。当酒吧服务员在吧台端酒时,顾客可以同时观察到服务员和通向高处选酒平台的爬梯。挑选好的葡萄酒放在篮子里通过绳索系统传递到顾客手中,为顾客提供一种完整的葡萄酒体验。陶土墙帮助塑造酒窖氛围。
通常在酒吧中,吧台位于空间后方。但在这个空间中,吧台位于前方立面的交界处,能够为室内外的座位区提供服务。立面可以实现完全开放、半开放或完全关闭三种状态。这些组合形式可以形成不同的开口造型,塑造餐厅多样的立面,进而为顾客提供新鲜感。立面完全封闭后,二层空间的门可以关闭,作为vip室。从孔洞内射入光线既可以维持空间私密性,又能够通过大小不同的孔形成动态光影游戏。
空间具有一种复杂而温暖的氛围,蓝色和橙色家具构成色调平衡。部分室内布置如侧边沙发区、十字式沙发区,一些椅子和主吊灯、小型照明设施都是为项目定制的。

▼首层平面
▼夹层平面
设计公司:RooMoo
位置:中国
类型:建筑
材料:石材 大理石 橡木 金属 金属面板 金属线网 瓷砖 砖石 陶土砖 马赛克 木地板 玻璃
标签:Interior Deisgn Shanghai 上海 室内设计

