© Hank Mardukas Photography
 
 
孟菲斯第一个黑人戏目剧院从它开始创建的地方搬迁到现在的停车场地上,周围是目前正在如火如荼建设中的城市娱乐区。
© Hank Mardukas Photography
 
 
这座新的建筑物是该区域唯一的黑人戏目剧院,所以它拥有自己的特征,位于进入娱乐区主干道的一个角落处。
© Hank Mardukas Photography
 
 
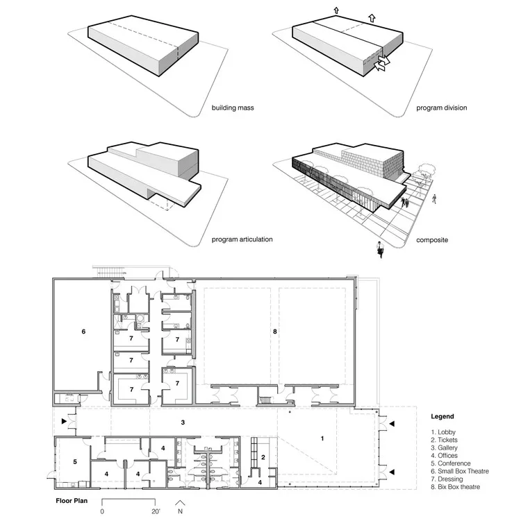
从其他的先例和案例研究的基础上来看,这个现代化的新剧院预算有限。基于紧张的预算,设计师制定了一项带两个目标的早期战略: 1.定义了永久的、可根据筹款和利润 (这将允许剧院不牺牲建筑质量而添加照明等)改建的弹性设施。2. 保持剧院建造的简单性。
© Hank Mardukas Photography
 
 
该建筑被划分成两个主要体量:一个用于表演,设有两个黑幕剧场、辅助空间;另一个用作行政用途。该剧院没有窗户,两个剧场占据了毗邻周边停车场的北部边缘。不规则的体块根据室内空间设计而成,但这两个房间都包裹着一层瓦状的壁板,借其连续性和纹理延伸到黑色的墙壁上。较低的建筑体量包含了入口大厅、售票处和行政空间,并在南部边缘的第二大街 (门罗大道)处展示出欢迎行人的规模。
 
 
高强钢镀面被用作抵抗气候变化并随着时间推移发生的氧化,在为建筑本身增添卓越的持久性的同时,为整个娱乐区平添独特的个性。
原文和内容版权:http://www.archdaily.com/
翻译来自:http://www.iarch.cn/,翻译:邱媚,刘庆新
© Hank Mardukas Photography
 
 
 
 
建筑师 archimania
地址 37 Cooper Street, Memphis, TN 38103, USA
建筑面积 11041.0 ft2
项目年份 2014
摄影师 Hank Mardukas Photography
Category 剧院


