Alberto Campo Baeza在一篇关于他的Casa Gaspar的文章中解释说,建筑师必须像医生一样。一个好的,倾听病人的声音,做所有必要的分析,根据病人的知识做出诊断。但如果病人不相信医生的意见,他们的医术就毫无用处。同样的事情也发生在建筑师身上。
这就是为什么这个任务对我们来说特别令人欣慰。物业邀请我们参加他们的家居设计比赛,详细介绍了他们的需求。这些信息,加上我们可以从几次会议和对情节的访问中拯救出来的东西,使我们能够开发一个免费的提议。它是关于在先前分析的基础上作出准确的诊断。
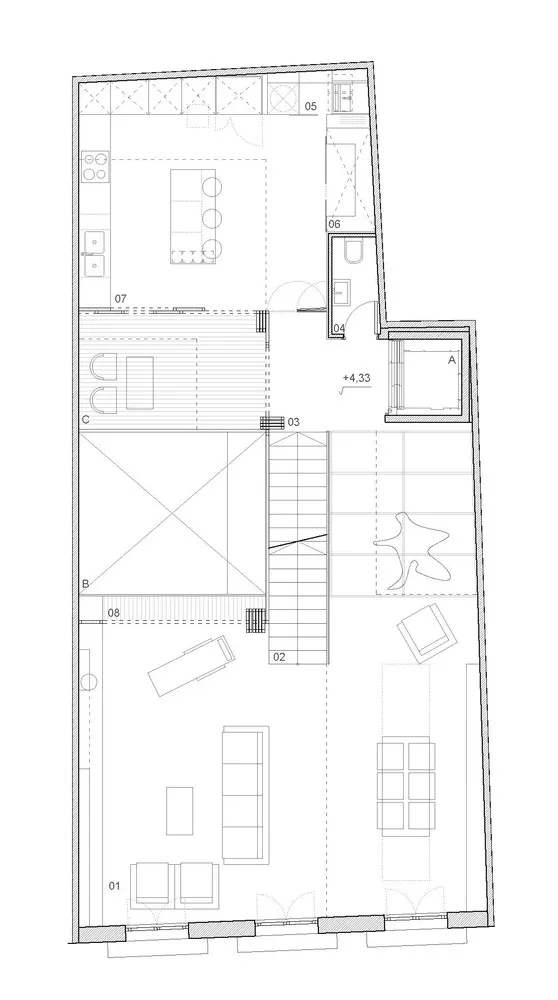
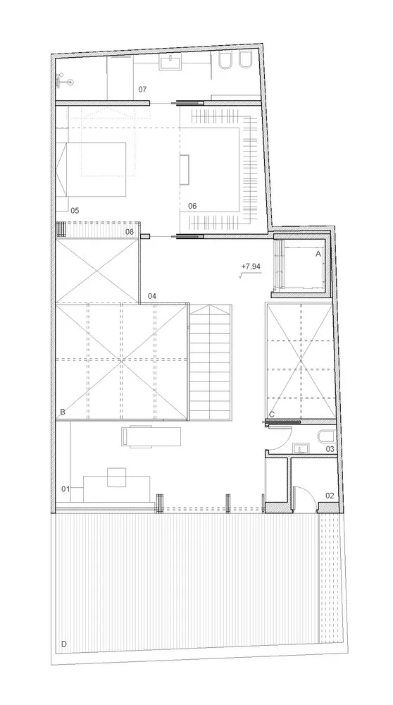
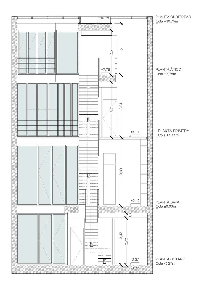
后来,我们通过设计空间来继续项目的发展,这些空间由业主和所有其他参与房屋建造过程的人提供。对我们来说,在塞维利亚设计一个家不能等同于在奥斯陆或波哥大。我们的建筑文化和气候条件深刻地影响着我们的建筑:建筑空间和空隙的关系,突出的光线,室内的力量和家庭的私人生活,白色的主要用途。



设计公司:CM4 Arquitectos
项目位置:Seville, Spain
设计面积:397.0 m2
设计时间:2018年
摄影师:Fernando Alda
执行方向:Javier Rodrigo Giménez
结构计算:Duarte y Asociados
设备计算:Miguel Sánchez
景观设计:Mónica Magíster
施工:Obratec Construye
设施:Noland Efitec

