© Nacasa & Partners
© Nacasa
架构师提供的文本描述。这是一家位于全球旅游城市广岛县的酒店新开的礼拜堂。这个礼拜堂诞生在大堂区,将使它成为酒店的代言人,传达它的品牌信息,这个设计理念就是创造一个独特的、无与伦比的空间。
Text description provided by the architects. This is a new chapel that opened in a hotel located in the global tourism city of Hiroshima pfecture. Focusing on the fact that this chapel’s birth in the lobby area would make it the face of the hotel and convey its brand message, the design concept was to create a distinctive, unrivalled space.
© Nacasa & Partners
© Nacasa
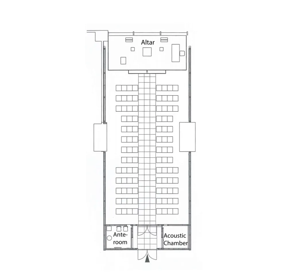
因为这个礼拜堂面对着酒店的庭院,当我们坐在教堂里的时候,就可以看到这个花园就在讲道坑后面,木格子板被用来创建一个奇妙的,阳光点缀的教堂,它与花园结合在一起。
Since this chapel faces the hotel’s courtyard, the garden can be seen directly behind the pulpit when we sit inside the chapel, and wooden lattice panels were used to create a wondrous, sun-dappled chapel that is integrated with the garden.
© Nacasa & Partners
© Nacasa
广岛通常以“根巴库穹顶”和广岛和平纪念馆而闻名,也是日本海外游客最受欢迎的目的地之一。因此,在规划礼拜堂时,我们非常清楚,我们设计的不仅仅是一个商业设施,而是一个能让世界其他国家了解日本和平精神、历史、传统艺术和精湛工艺的橱窗。
Hiroshima is often known for the ‘Genbaku Dome’ and the Hiroshima Peace Memorial, and one of the most popular destinations for overseas tourists to Japan. For this reason, in planning the chapel, we were highly conscious of that fact that we were not simply designing as a commercial facility but a showcase that would let the rest of the world know about Japan’s peaceful spirituality, history, traditional arts and crafts, and its refined workmanship.
© Nacasa & Partners
© Nacasa
就像人类一样,在森林里,树木也能生存和呼吸。我们都是生活、成长和繁衍的生物。它是过去与现在和未来之间的一种联系。祖先建造的东西今天带给我们,我们将繁荣昌盛传给后代。所有这些联系和联系成为我们的灵感。因此,一棵大树是整个室内设计的主题。
Just like humans, in the forest, trees also live and breathe. We are all living creatures here to live, grow and reproduce. It is a link between past and psent and to the future. Things built by the ancestors are carried to us today, and we pass prosperity to the future generation. All these links and connections to living things became our inspiration. Consequently, a large tree is the motif of the entire interior design.
一棵大树是木板设计的主题,被称为“花的力量”,它承载着祖先的根和后代的繁荣的主题。通过与和服设计师的合作,我们能够利用日本和服中的传统图案,将设计中的各种花卉和植物与这些概念联系起来。每个小教堂的木板单位为2m×1M,使用了100个单元。15毫米厚的日本柏木面板是复杂的手工雕刻,以显示刀具图案。如此细致的劳动使这里成为一个规模空前的木制圆顶礼拜堂,甚至在日本境内也是如此。透过圆顶的木雕进行照明过滤,在教堂的走道上投下阴影,就像阳光穿过树木,创造了一种幻想,以为这对夫妇是在阳光斑驳的森林里被祝福的。
A large tree is the motif of the wooden panel design, called the Power of Flower, which carries the theme of ancestral roots and the prosperity of future generations. Through collaboration with a kimono designer, we were able to associate the various flowers and plants in the design with these concepts by using traditional patterns found in Japanese kimonos. Each wooden panel unit of the chapel measures 2m×1m, and 100 units were used. The 15mm-thick Japanese cypss panels were intricately carved by hand to show the cutwork pattern. Such meticulous labor has made this a wooden dome chapel of an unpcedented scale even within Japan. Lighting filtering through the dome’s wooden cutwork casts shadows on the aisle of the chapel like sunlight through the trees, creating an illusion that the couple are being blessed in a sun-dappled forest.
© Nacasa & Partners
© Nacasa
Architects Nikken Space Design
Location 7-20 Nakamachi, Naka-ku, Hiroshima-shi, Hiroshima-ken 730-0037, Japan
Category Chapel
Designer Takashi FUJII
Area 160.0 sqm
Project Year 2014
Photographs Nacasa & Partners

