Courtesy of Atelier REC architecture
Atelier REC架构
架构师提供的文本描述。在Zac Andromède地区,专门用于该计划的场地是一个绝缘的地块,本来可以发展成一条林荫大道,但它还没有在建筑工地开始的时候完成。因此,这是一个建立学校综合体的问题,同时铭记ZAC条例,特别是关于该地区城市人口密度的规定,该地区仍然必须欢迎任何类型的建筑。
Text description provided by the architects. Within the ZAC Andromède area, the site devoted to the plan was an insulated plot, which would have developed into a boulevard and it hasn’t been accomplished within the kick off of the construction site. It was therefore a question of realizing a school complex keeping in mind the ZAC regulations, especially concerning the density of the urban population on this site, which still had to welcome any sort of building.
Courtesy of Atelier REC architecture
Atelier REC架构
一公顷半的土地是平坦的,旁边是一个住宅小区,它的房子以前在一个三年的农作物土地上有一个视图。从这些展馆对我们的项目计划的看法必须尽可能好。在西南地区,必须特别注意太阳能供应的管理,包括在凉爽季节的亮度和夏季的过度供暖。该项目的关键思想及其主要内容。
The one and a half hectare ground is flat, next to a housing estate, whose houses had a view before on a three-year crop agrarian ground. The perception of our project plan from these pavilions had to be as nice as possible. In the southwest area, a special attention must be paid to the management of solar provisions, in terms of brightness in the cool season and excessive heating in the summer period. The pivotal idea of the project and its main articulations.
Courtesy of Atelier REC architecture
Atelier REC架构
Courtesy of Atelier REC architecture
Atelier REC架构
这所学校综合体“莱斯·佩雷斯”的计划是图卢兹西北地区新生态区仙女座布拉格纳克地区的第一座学校建筑。它标志着建筑群围绕着开阔的景观和城市花园之间的概念所具有的持久的城市野心。
This plan of the school complex “Les Perséides” is the first school building in the Blagnac area of the new eco-quarter Andromède, in the northwest area of Toulouse. It marks the lasting urban ambition of architectural complex revolving around concepts between an open landscape and a city garden.
Courtesy of Atelier REC architecture
Atelier REC架构
作为邻里学校的Persé大道的初步实现,旨在成为一个城市地标,一个交流和友好的地方。这是这个当代建筑的目标,完美地铭刻在为扎克创造的城市和建筑线上。
An initial realization of the Boulevard Persée, the school of the neighbourhood is designed to be an urban landmark, a place of exchange and friendliness. It is the objective of this contemporary building, perfectly inscribed in the urban and architectural line created for the ZAC.
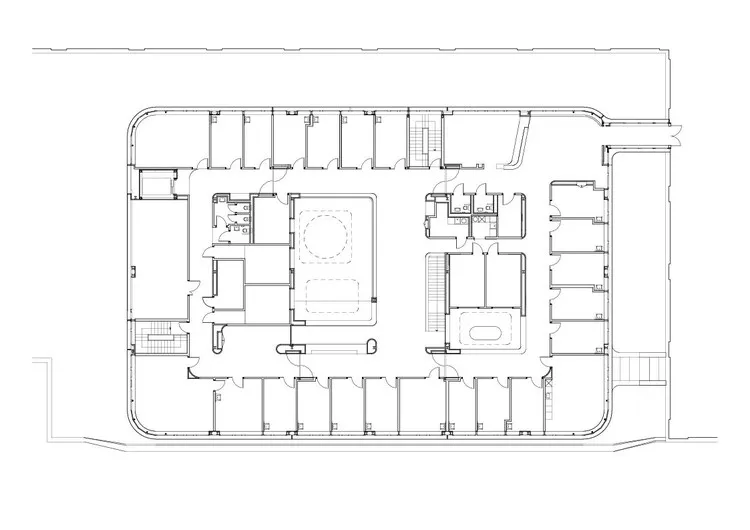
事实上,学校综合体呈现出一个清晰的城市体积,以正交的形式,沿着林荫大道的路线建造。在开阔景观的林荫大道前,街道上的建筑标志着城镇规划师Treuttel-Garcias-Treuttel想要的城市人口密度。
Actually, the school complex psents a clear urban volume, in orthogonal forms, built along the alignment of the Boulevard. In front of the boulevard in the open landscape, the architecture on the streets marks the desired urban population density by the town planners Treuttel-Garcias-Treuttel.
Courtesy of Atelier REC architecture
Atelier REC架构
林荫大道上的立面展现了所有这些特征,是一座如此完美的城市雕塑,被波光粼粼的阿拉伯人所激活。这个雕刻的信封揭示了隐藏在白色外壳背后的功能:学校、体育中心、广场和停车场。这幅奇特的建筑图片展示了保护的象征意义和学校的共和神社特色。自我巩固的混凝土是最好的材料来断言这些想法和形式。浇铸在很大的高度,灵活,有时后张力,这种类型的混凝土给这种光滑,统一,巨大的皮肤。白色和形状,它同时提醒童年纯真和曲线美的形状在中心的块。
Presenting all these features, the facade on Boulevard is such an urban sculpture so immaculate and crenelated, enlivened by rippling arabesques. This carved envelope unveils the functions sheltered behind this white outer skin: the school, the sport centre, its square and the car parks. This peculiar picture of the building illustrates the symbolism of protection and the republican shrine feature of the school. The self-consolidating concrete is the best material to assert these ideas and forms. Cast on big heights, flexible, sometimes post tension, this type of concrete gives this smooth, unified, massive skin. White and shaped, it reminds at the same time of childhood innocence and of the curvaceous shape at the heart of the block.
Courtesy of Atelier REC architecture
Atelier REC架构
除了建造在南面的建筑外,该计划的组织也很灵活,形如铁马,在城市建筑群的中心展示了专门为孩子们服务的空间。这些游乐场,受外界保护,是在北部地区的蛹开放,设计良好的环境和游戏的发展。
Beyond the building constructed on the southern front, the plan is organized flexibly, in an iron horseback shape, revealing at the centre of the urban complex the space devoted to the children. These play areas, protected from the outside, are as a chrysalis opening in the Northern area with well-designed environmental and play developments.
Courtesy of Atelier REC architecture
Atelier REC架构
在这幅图中,功能和环境的方法赋予了一个项目的生命呈现量和曲线组织。然后,将专门用于儿童的领域组织起来,并进行高质量的设计。
In the plot, the functional and environmental approach gave life to a project psenting volumes and a curvilinear organization. The areas devoted to the children are then organized with attention and a quality design.
因此,建筑物被组织成两个灵活的机翼,其高度在植物屋顶的动态运动中逐渐降低。这花边绿色植物,一个反复的特点,计划,波浪在风中拥抱学校在一个保护丝质的腰带。因此,在市中心的城市街区,被植物行所忽视,游乐区域就像一个大的无栖息空间,庇护着孩子们的游戏。
The building is organized therefore in two flexible wings, whose height is progressively reduced in the dynamic movement of the plant roofing. This lace of greenery, a recurrent feature of the plan, waves in the wind embracing the school in a protective silky sash. Therefore, in the heart of the urban block, overlooked by the plant row, the play areas resemble to a big roofless space, sheltering children’s games.
Courtesy of Atelier REC architecture
Atelier REC架构
孩子们从外面的公共空间走到学校,沿着Persée大道和大楼之间的广场的厚厚的正面走着。接待处的门厅是大楼的关键点,为所有的教育和娱乐场所服务。
From the outer public space, the child reaches the school walking along the thick facade of the square between the Boulevard Persée and the building. The foyer of the reception, the building’s pivotal point, serves all the educational and recreational areas.
Courtesy of Atelier REC architecture
Atelier REC架构
在一楼,东翼通向五间幼儿园教室,可进入一个大厅,大厅内装饰着明亮的露台和壁龛。教室与学步儿童专用的庭院和休息室直接相连,可以看到小区底部一个想象中的花园。食堂占据了西翼所有的一楼。
On the ground floor, the east wing leads to the five nursery school classrooms, accessible by a hall livened up with bright patios and alcoves. The classrooms are linked directly with the courtyard reserved to the toddlers and the resting rooms with a view on an imaginary garden at the bottom of the plot. The canteen takes all the ground floor of the west wing.
门厅的巨大楼梯通向小学的楼层。高着陆得益于两个游乐区,色彩清新而清澈,是儿童秘密的无声见证者。
The monumental staircase of the foyer leads to the primary school floor. The high landing benefits from two play areas painted in fresh and clear hues, silent witnesses of children’s secrets.
Courtesy of Atelier REC architecture
Atelier REC架构
多媒体室和图书馆可以直接从上面的平台进入。教师室和专为人员保留的区域都在中间,可以俯瞰庭院。
The multimedia room and the library are directly accessible from the upper landing. The teachers’ room and the areas reserved to the personnel are in the middle overlooking the courtyards.
这些区域的所有功能都是舒适和容易进入的,并计划创造平稳的运动。这所学校沐浴在自然光中。教室,主要是西南方向,有一个框架的看法和它的暴露在阳光下是很好的管理。开口定位良好,不过载内面曲线的直角比例清醒。
The areas are meant to be comfortable and of easy access in all their functions and are planned to create smooth movements. The school is bathed in natural light. The classrooms, mainly southwest orientated, have a framed view and its exposure to sunlight is well managed. The opening are well orientated, with sober rectangular proportions which do not overload the curve of the internal facades.
Courtesy of Atelier REC architecture
Atelier REC架构
十间小学教室,铺着厚厚的玻璃窗,可以看到草地上的屋顶。他们是在背景和庇护的噪音,而游乐区是可见的和暴露的。
Ten primary classrooms, broadly glazed, have a view on the grass roofing. They are in the background and sheltered from noise while the play areas are visible and exposed.
最后,一个体育中心覆盖了一楼的停车场。无论是公共还是私人使用,学校都可以使用,但也可以直接从外部进入。
Finally, a sport centre covers the car park area on the ground floor. Of public and private use, it is accessible to the school but also directly from the outside.
Courtesy of Atelier REC architecture
Atelier REC架构
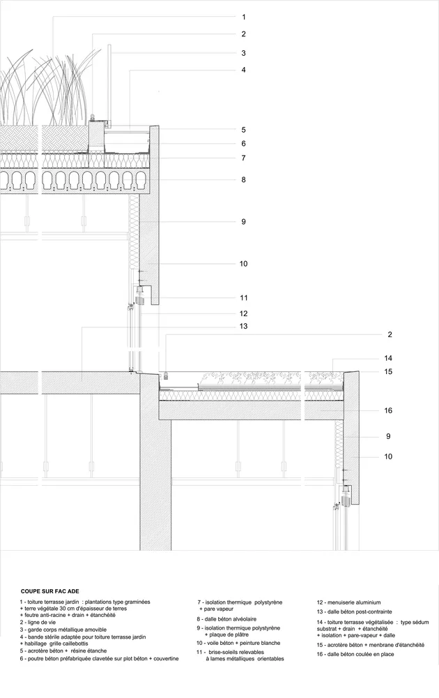
建筑物的保温是由建筑用混凝土的惯性和厚草屋顶的惯性所形成的密封围护结构。安装自动管理,以优化时间和运营成本。所有这些工具允许获得一个低能耗的建筑,RT在2012年。
The thermal insulation of the building psents a hermetic envelope created by the inertia of the concrete used for the building and the thick grass roofing. The installations are automatically managed to optimize time and operating costs. All these implements allow to acquire a low energy consumption building, RT on 2012.
Courtesy of Atelier REC architecture
Atelier REC架构
根据该计划的规定,生态责任、建筑所暗示的方向、功能表达都有助于创建这一项目。在仙女座的生态区仍在进行中,我们完成了这个学校综合体展示了一个特殊的身份,一个新的社区的关键设备,一致赞赏,在一个积极的学年结束。
The eco-responsibility, the orientations implied by the building, the functional articulations contributed to create this project, according to the regulations of the program. Within the eco-quarter of Andromède still in progress, we accomplished this school complex psenting a specific identity, a key equipment of a new neighbourhood, unanimously appciated, at the end of an active school year.
Architects Atelier REC architecture
Location Blagnac, France
Category Schools
Project Year 2014

