© Pedro Pegenaute
佩德罗·佩佩诺特
在一片郁郁葱葱的杨树林里,我们伸长了一条木地毯来运动。我们想在一个被植被包围的轻松的氛围中玩耍。
In a lush grove of majestic poplars, we extend a carpet of wood to make sport. We want to play in a relaxed atmosphere, surrounded by vegetation.
我们需要更衣室,控制室,楼梯,走廊,观众,服务,看台,商店,长凳,篮子,机器,管子,木工.总之,一个大型的程序来为这个空间服务,我们试图用一个清晰而简单的音量来解决它。
The building is missing, of course; we need changing rooms, controls, stairways, hallways, spectators, services, stands, stores, benches, baskets, machines, tubes, carpentry … in short, a large program to serve this space to play, and we try to solve it with a clear and simple volume.
但是,这本书应该是怎样的呢?首先,它必须是轻的,充满空气和绿色,就像树。它应该很容易与天空融为一体,甚至消失在天空中。
But, how should this volume be? First of all it has to be light, full of air and green, like the trees. It should blend in easily with the sky, even disappear into it.
与此同时,我们在室内玩耍,漠不关心,在一个白色的大罩下照明和保护我们.,一切都很好。
Meanwhile we are playing indoor, unconcerned, under a large white cover which illuminates and protects us …, everything is all right.
© Pedro Pegenaute
佩德罗·佩佩诺特
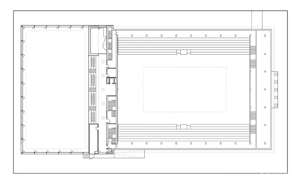
新的运动场是作为一个悬浮在地面上的体积而建造的。身体达到一个清晰和全面的几何图形.
The new Sports Hall is built as a volume levitating above the ground. The body achieves a clear and well-rounded geometry.
© Pedro Pegenaute
佩德罗·佩佩诺特
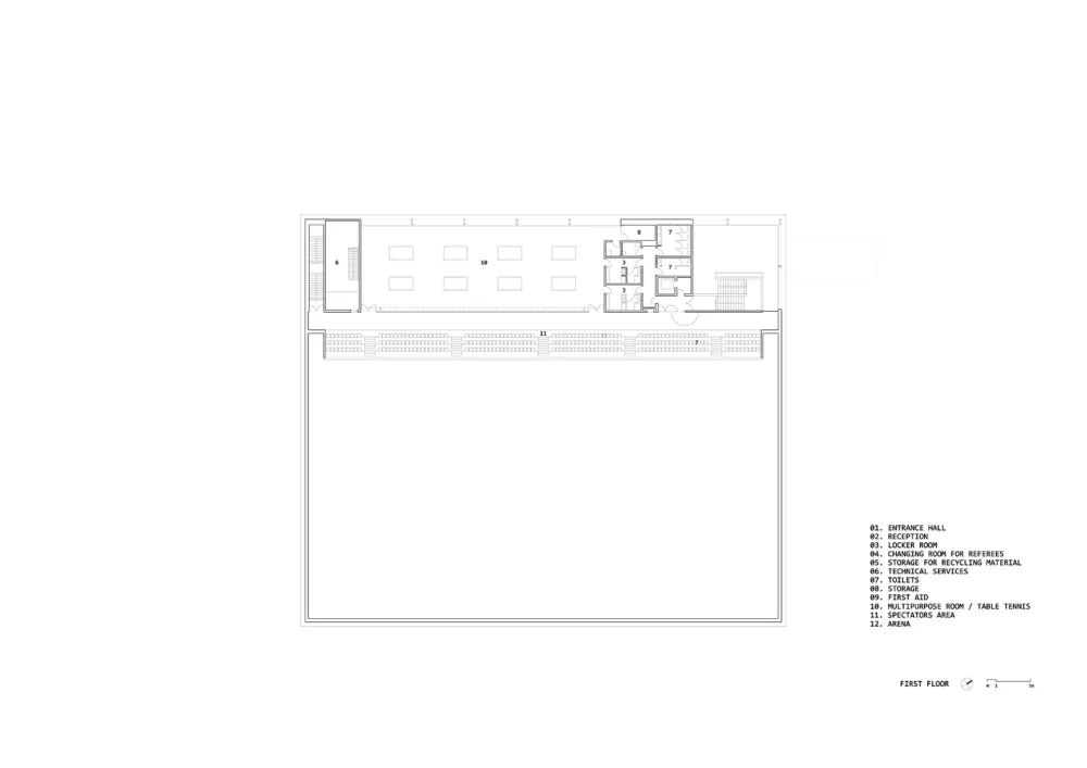
因此,我们有可能使用更衣室以上的区域进行小型运动(乒乓球)以及服务和设施领域。盖子,随着光束的节奏,照亮了一个很大的内部空白。球场最重要的是活动、运动和比赛。
As a result we get the possibility to use the area above the body of changing rooms for small-format sports (table tennis) as well as services and facilities areas. The cover, stepped to the rhythm of the beams illuminates a large interior white space. The most important thing of the playing court is the activity, the sport and the play.
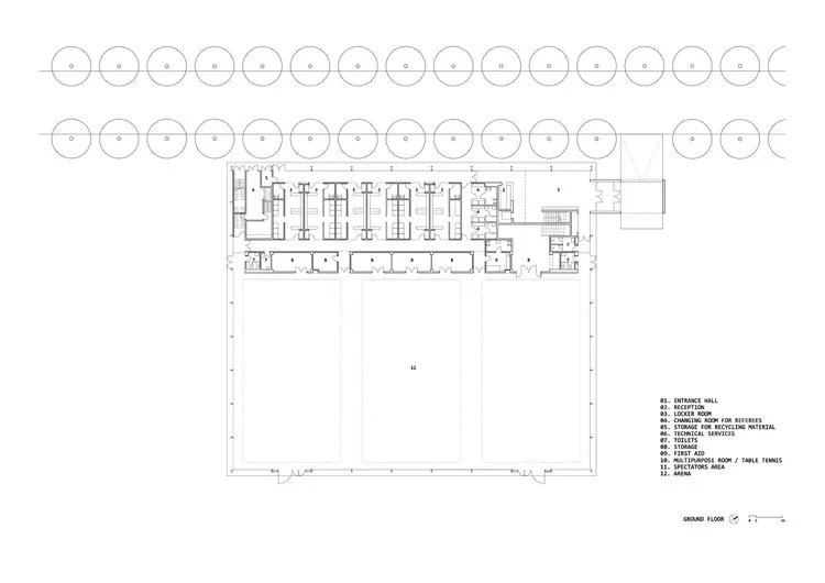
Ground Floor Plan
在里面,建筑看起来像一块空白的画布,一个巨大的空框架,在那里运动是发展的。只有更衣室、仓库和小规模运动的容量在黑暗中形成鲜明对比。作为哥特式教堂的唱诗班,它以楼梯的形式离开中央运动场区,面向它。
Inside, the building appears as a blank canvas, a big empty frame where sport is developed. Only the volume that houses the changing rooms, warehouses, and small-format sports appears contrasted in dark. As the choir of a Gothic church, it departs from the central sports courts area facing towards it in a stair-shape way.
© Pedro Pegenaute
佩德罗·佩佩诺特
本卷后面是运动员更衣室的通道,专门解决运动鞋流通区的隔离问题。
Behind this volume lie the access way to the changing rooms of the athletes, solving the isolation of the circulation area for sport shoes exclusively.
Elevation 1
抬高术 1
进入大楼的通道必须通过一个单独的音量来解决,这是更衣室内部身体的延伸,而更衣室的外部移动是为了欢迎游客。
Access to the building must be resolved through a separate volume, an elongation of the interior body of the changing rooms that moves outside the building to welcome visitors.
© Pedro Pegenaute
佩德罗·佩佩诺特
在外面,绿树的叶子和它们的阴影被再现在新展馆的外墙的像素图案中。在此之前,聚碳酸酯的皮肤模糊了外观的颜色和建筑的真实尺寸。
Outside, the green of the trees’ leaves, and their shadows are reproduced in the pixel pattern of the new pavilion’s façade. Ahead of this one, a polycarbonate skin blurs the colors of the façade and the real dimension of the building.
建筑物的外部形象难以捉摸,视时间或视角而异。有时建筑物与天空交融,有时与树木混淆,有时建筑物似乎有自己的光芒。
The external image of the building is elusive; it varies depending on time of day or angle of vision. Sometimes the building blends with the sky, sometimes is confused with the trees, at times the building seems to have its own light.
© Pedro Pegenaute
佩德罗·佩佩诺特
另一方面,双层外墙在建筑物的热调节方面起作用。由于温室效应,墙壁收集的热量被用于冬季取暖,而夏季则会产生自然通风。
The double façade works, on the other hand, in the thermal conditioning of the building. The heat captured by the walls thanks to the greenhouse effect is used during the winter for heating, while in summer causes a flow of natural ventilation.
主音量在离地面几英尺远的地方升起,释放出一层全玻璃的底层,这样就可以在里面进行运动,从外面看到永久的景致。
The main volume is raised a few feet off the ground, releasing a fully glazed ground floor, so that it is possible to play sports on the inside with permanent view to the outside.
Architects BCQ arquitectura
Location Av. República Argentina, 17800 Olot, Girona, Spain
Category Sports Architecture
Area 5914.0 sqm
Project Year 2010
Photographs Pedro Pegenaute

