© David Matthiessen
(C)David Matthiessen
架构师提供的文本描述。在地方公民投票中,莱昂伯格人民以明显多数票赞成重建现有的体育中心。这不仅涉及到一个新的建设,而且给现有的结构一个新的独特形式。重建的目的是增加浴室和运动场的吸引力和感觉良好的因素,并更新建筑物的技术特点。
Text description provided by the architects. In a local referendum the people of Leonberg voted by a clear majority in favour of the redevelopment of the existing sports centre. This not only involved a new build but also to give the existing structure a new distinctive form. The aim of the redevelopment was to increase the appeal and feel-good factor of the baths and sports halls and to update the technical features of the building.
© David Matthiessen
(C)David Matthiessen
从七十年代开始,体育中心的重建工作分为两个阶段。在第一阶段,两个运动场和浴室进行了装修,配备了毗邻的房间和技术设施,而室外设施也进行了部分改造。第二阶段是重组和彻底重建桑拿区,包括一个带观景的桑拿浴室和一个桑拿花园。虽然室内游泳池和两个运动场自2014年2月以来一直对游泳者和运动员开放,但桑拿的结构改造工程目前正在建设中。
The redevelopment of the sports centre dating from the 1970s was divided into two stages of construction. During the first stage, the two sports halls and the bathing hall were refurbished with adjoining rooms and technical installations while the outdoor facilities were partly remodelled. The second phase involves the restructuring and complete redevelopment of the sauna area, comprising a sauna with a viewand a sauna garden. While the indoor swimming pool and the two sports halls have been open to bathers and sportspeople since February 2014, the structural conversion work in the sauna is currently under construction.
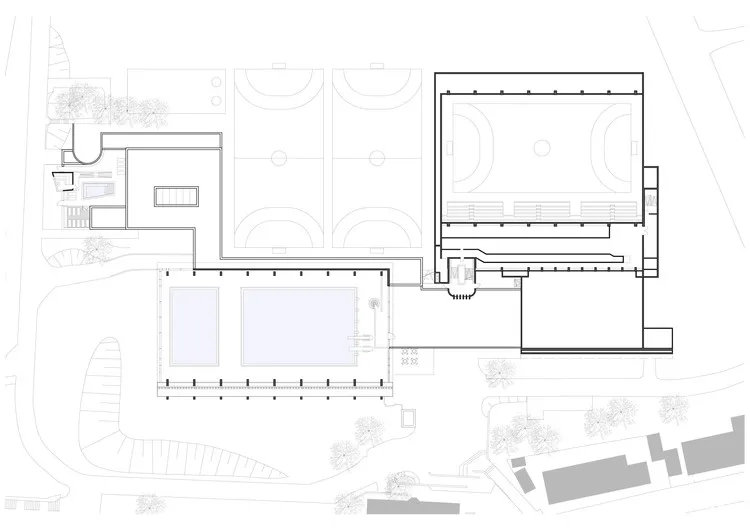
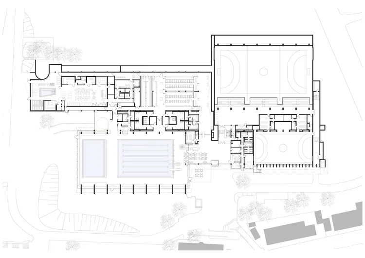
Floor Plan
大厅的三角形状继续是建筑综合体的特征。为了优化能源效率,建筑物的所有玻璃幕墙都已被更换-因此,体育中心的外观几乎保持不变。更令人惊讶的是翻修和改造后的建筑群的内部。这里的目的是优化体育中心的功能要求和大气影响使用小型结构措施。为了实现这一目标,建筑师们创造了新的平面图,并优化了门厅和相邻房间的路线布局。当代的材料和色彩设计使室内有了自己的特征,确保了整个建筑给人一种愉快的空间感。整个建筑技术也得到了更新-仅保留了部分洗澡水设备。
The triangular shape of the bathing hall continues to characterise the building complex. In order to optimise energy efficiency, all the glass facades in the building have been replaced – the external appearance of the sports centre therefore remains virtually unchanged. All the more surprising is the interior of the refurbished and remodelled building complex. The aim here was to optimise the sports centre with regard to its functional requirements and atmospheric effect using minor structural measures. In order to achieve this, the architects have created new floor plans and optimised the layout of routes in the foyer and adjoining rooms. The contemporary material and colour design lends the interior an identity of its own and ensures that the whole building gives a pleasant sense of space. The entire building technology has also been updated – only parts of the bathing water equipment have been retained.
© David Matthiessen
(C)David Matthiessen
自重建以来,该体育中心原本漆黑的入口区,现在有一个开放的,明亮的外观和友好的气氛。玻璃门面现在可以看到重新设计的门厅。重组给了这个更宽敞的感觉-转门和储物柜被移到更远的后面,小酒馆和浴室之间的隔断已经完全被玻璃化了。最大的透明度和流动的过渡也提供了灵活的折叠玻璃隔墙之间的小酒馆区和门厅,以及半高的玻璃开窗毗邻的行政办公区域。入口处的混凝土表面已重新粉刷,地板已重新铺上瓷砖。为了定位的目的,建筑师们采用了以色彩编码为特色的旧的色彩指导系统:蓝色引导游客到浴室,绿色引导他们到变化的区域;橙色代表大型运动场,黄色代表通向体育馆的路。门厅中一个引人注目的元素是现有的混凝土围护天花板。金库的内面已按照路线系统的颜色进行油漆,使游客来到建筑物的不同区域。一些方形字段创建视觉高光与照明天花板,特别是为这个项目。这使得现有的天花板结构可以清晰地阅读,而门厅则通过使用色彩和照明设计获得了一个全新的身份。
Since redevelopment, the pviously dark entrance area of the sports centre now has an open, bright appearance and has a friendly atmosphere. The glazed entrance facade now offers views into the redesigned foyer. The reorganisation gives this a far more spacious feel – turnstiles and lockers have been moved further back and the partition between the bistro and the bathing hall has been fully glazed. Maximum transparency and flowing transitions are also provided by the flexible folding glass partition wall between the bistro area and the foyer as well as the half-height glazing opening on to the adjoining administration office area. The concrete surfaces in the entrance area have been repainted and the floor has been re-tiled. For the purposes of orientation, the architects have taken up the old colour guidance system that characterises the whole building with its colour coding: blue guides visitors to the bathing hall while green leads them to the changing areas; orange shows the way to the large sports hall and yellow indicates the way to the gymnasium. A striking element in the foyer is the existing concrete coffered ceiling. The inner surfaces of the coffers have been painted in accordance with the colours of the routing system, leading visitors to the different areas of the building. Some of the square fields create visual highlights with illuminated ceilings that have been crafted especially for this project. This allows the existing ceiling structure to remain clear to read, while the foyer has been given an entirely new identity through the use of colour and lighting design.
© David Matthiessen
(C)David Matthiessen
大型游泳馆包括一个游泳者游泳池、一个学生游泳池和一个儿童游泳池。所有原来的水池和游泳池都保持原样。这一地区的翻修工作主要集中在天花板上,天花板在整个浴室中都已被取代,而棕色木材屋顶桁架则用白色漆成。天花板的颜色设计吸引人的是一个绿色,黄色和蓝色面板的模式,从三角形的屋顶形式。游泳馆里的重要艺术作品-游泳者和学生泳池之间的波浪灯设计-被保留下来并涂成白色。一个玻璃栏杆把蹒跚学步的孩子们的区域和浴室隔开了。新组件包括游泳池服务员的玻璃舱和滑梯。一种令人愉快的气氛是由斜天花板上的间接照明设计,围绕着泳池周围的下行灯,以及标志着淋浴区域入口的弯角照明所创造的。
The large bathing hall comprises a pool for swimmers, a learners’ pool and a children’s pool. All the original pools and pool surrounds have been left intact. The refurbishment work in this area has mainly been concentrated on the ceiling, which has been replaced throughout the baths while the brown timber roof trusses have been painted in white. The ceiling’s colour design eye-catching is with a pattern of green, yellow and blue panels deriving from the triangular form of the roof. The significant work of art in the bathing hall – an undulating lamp design between the swimmers’ and learners pools – has been retained and painted white. A glass balustrade separates the toddlers’ area from the bathing hall. New components include a glazed cabin for the pool attendant as well as a slide. A pleasant atmosphere is created by the indirect lighting design on the slanted ceiling, downlights along the pool surround, and coved lighting that marks the entrance to the shower area.
© David Matthiessen
(C)David Matthiessen
游泳池和运动场的不断变化的区域和淋浴已经被拆除到建筑物的外壳上,并正式重新设计。更高的天花板和新的表面提供了一种愉快的空间感觉。采用各种颜色梯度的大幅面马赛克地砖与米色墙砖和地砖、彩色储物柜和用刷过的阿尔特木制成的家具相结合,为不断变化的地区和淋浴提供了高质量的欢迎。圆形天花板灯提供了一个轻松的氛围,并大大加强了这一领域。
The changing areas and showers for the pools and sports halls have been stripped down to the building shell and formally redesigned. Higher ceilings and new surfaces provide a pleasant feeling of space. Large-format mosaic floor tiles with a variety of colour gradients in combination with beige wall and floor tiles, coloured lockers and furniture made from brushed alder wood give a high welcoming quality to the changing areas and showers. Round ceiling lights lend a relaxed ambience and greatly enhance this area.
© David Matthiessen
(C)David Matthiessen
在重建期间,两个运动场的几乎所有表面都被更换,而正面则与内部隔绝-只有地面覆盖物保持原状。现在墙壁上覆盖着新的挡板墙和石灰木贴面。选定的混凝土表面和深色木镶板已重新油漆。以白色为主的外观-带有天花板配件的新天花板-也是用白色设计的-给运动场带来了一种明亮、友好的气氛。天花板上的LED照明线提供充足的照明。新的透明玻璃在小体育馆也允许更多的日光进入比以前不透明的窗户表面,从而打开了房间的外部。大型运动场内的可伸缩观众站也已被替换,并在石灰木中进行了设计,与挡板墙相匹配。
Almost all the surfaces in the two sports halls were also replaced during the redevelopment while the facades were insulated from within – only the floor coverings have been kept in their original form. The walls are now clad with new baffle walls with a limewood veneer. Selected concrete surfaces and the dark wooden panelling have been repainted. The primarily white appearance – the new ceiling panels with ceiling fittings have also been designed in white – gives the sports halls a bright, friendly atmosphere. LED light lines on the ceilings provide ample illumination. The new transparent glazing in the small gymnasium also allows a greater amount of daylight to enter than the formerly opaque window surfaces, thereby opening the room up the outside. The retractable spectators stand in the large sports hall has also been replaced and designed in limewood which matches the baffle walls.
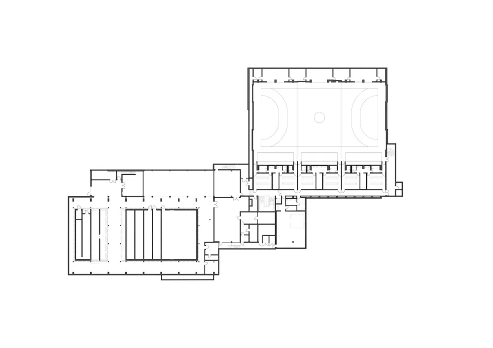
Floor Plan
这项重建为体育中心提供了建筑质素、亮度和气氛。功能程序也有了很大改进:例如,新安装的电梯现在方便了残疾人进入大楼。
The redevelopment has given the sports centre architectural quality, brightness and atmosphere. The functional procedures have also been significantly improved: the newly installed elevator, for example, now facilitates disabled access to the building.
© David Matthiessen
(C)David Matthiessen
Architects 4a Architekten
Location Steinstraße 18, 71229 Leonberg, Germany
Category Renovation
Architect in Charge Matthias Burkart, Alexander von Salmuth, Ernst Ulrich Tillmanns, Hallstrasse 25, D-70376 Stuttgart
Project responsible Martin Reimer
Project management Christian Voermann
Team Nikola Bothschafter, Swantje Hanussek, Martina Henke, Jelena Koneva
Area 10490.0 sqm
Project Year 2014
Photographs David Matthiessen

