© Rodrigo Vargas
 
 
 
 
来自建筑师。John James 村,由 Leukaemia 基金会经营,为那些从其他地区前来堪培拉进行血液疾病如白血病治疗的患者提供免费临时住宿。John James 村为患者及其家人们在堪培拉提供一个像家一样的舒适环境。Leukaemia 基金会拓展了原有的由多个病人共用同个居住空间的设施。新的方案给予每个病人及其家庭私人的空间和房间。
© Rodrigo Vargas
 
 
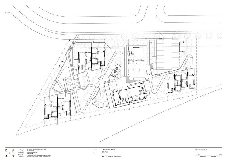
这个综合体被设计成村庄的形式,公共核心区域位于场地中心,而居住单元则在景致优雅的场地中分散开来。患者可以通过环绕公共花园的无障碍人行道,或者通过直接贯穿场地的交通轴线抵达居住单元。每个建筑都是规模适当的单层住宅,主要由砖块,金属贴面和玻璃这些标准住宅材料建造而成。
© Rodrigo Vargas
 
 
村庄的入口精心地连接着行政大楼的前厅,使得工作人员可以随时在患者进出时观察病人的情况,落地玻璃从办公室延伸到门厅再到村庄的中心区域,创造通透性的同时便于进行管理。
© Rodrigo Vargas
 
 
每个单元都有一个从私人庭院进入的具有辨识度的入口,以强化家的感觉。住宅单元的设计充分考虑到患者的需要,面北布置客厅和主卧室,并另外设有空间供护工和陪伴治疗的家庭成员使用。村庄也提供有娱乐设施,使得患者可以互相交流,并有安静区域供患者休息放松。休闲大楼的公共休息室让患者可以在接受治疗期间分享他们的经历。烧木的壁炉位于休息室中心,在大家交流时提供一个舒适而平静的背景。
© Rodrigo Vargas
 
 
建筑所需要的所有外部设施都被巧妙地放置进了橱柜或者合并成为立面设计的一部分。所有的服务设施都被隐藏起来,却同时能在需要时被方便找到。
 
 
所有建筑都位于不同的地高,场地的坡度被利用起来让每个居所拥有独特的位置。人行道位于公共花园之中,通过景观将建筑单体连接起来。
© Rodrigo Vargas
 
 
John James 村给那些需要和他们的家庭一同前来堪培拉的患者们提供了一个临时的家,在他们最脆弱的时候为他们遮风挡雨。
编辑:韩爽 翻译:岳宜珊
 
 
建筑师 DJAS Architects
地址 Rusden St, Garran ACT 2605, Australia
主持建筑师 James Hetherington, Adam Litherland
项目年份 2016
摄影师 Rodrigo Vargas
Category 建筑
厂家 加载中……



?
医疗场所都可以这么接地气,棒棒的