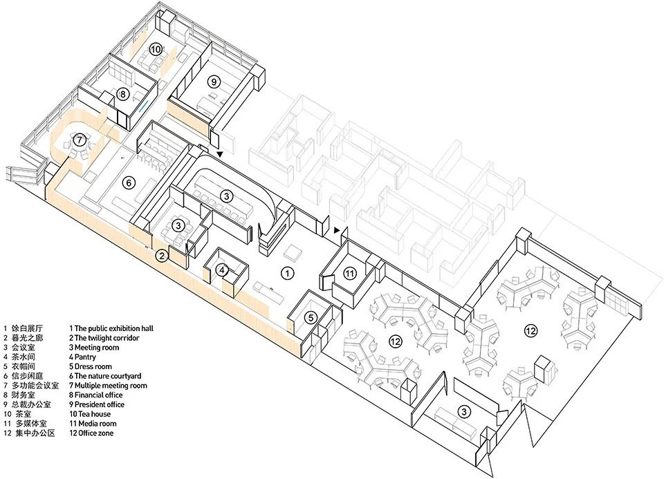
项目位于北京亦庄的高层商务写字楼,是一家跨国企业的北京总部办公空间。空间自西向东由集中办公区,馀白展厅区,暮光之廊区,和信步闲庭区四个部分组成。设计关注办公空间中人的心理感受和释压途径,期望以此实践提出一种面向未来的办公空间设计趋势。
This project locates in a commercial high-rise building; the client is an international trades company. The site consists of the office zone, public exhibition hall, twilight corridor, and nature courtyard, which have a layout from west to east. We concentrate on the mental feelings and the method of releasing stress in the workplace. As a result, we have anticipation to suppose a design trend for the future workplace.
▼被格栅模糊的人影与城市,City dispersed in the grilles
从解决负情绪和负压开始的设计 | Deal with the negative pssures in office
办公空间除了发生创造、输出的行为,产生收获,认可的正向情绪,事实上,负面情绪常会不期而遇。我们的项目就以这种应对负面情绪的目的作为起点,在当代大密度空间、高速率节奏、多信息流量的城市中,面对如何在熙攘忙碌的办公室释放压力,建筑师基于工作这一日常行为进行思考,为了释压,克服消化工作中可能的精神重负,在非日常的场景中更容易获得身心的放松启发了我们,因此,当办公空间能同时激发日常与非日常两种生活方式,负压将得到承载空间。
At the office, creations, exports, and appciation is usually a positive reward, in actually, the negative influences and emotions encounter with us. We do design for dissolved these terrible feelings. In contemporary society, live in the heavy density of space, the high-speed mode, and abundant informational energy, facing all these complicated circumstances, we try to release or transform these anxieties. In light of the common routines, people pfer to choosing an extraordinary lifestyle inversely and tending to a comfortable status. Thus, when the ordinary and extraordinary scene exists correspondingly, there allowed releasing the negative pssures.
▼馀白展厅,The public exhibition hall
絮语时序,馀白空间 | Whispers in a public exhibition hall
馀白展厅是进入场地的首个空间,也是和其西侧日常的办公区颇具反差的非日常公共展厅空间。这里集合大小两间会议室,茶水间,衣帽间和多媒体室五个功能体块。这一展厅理念源自业主公司主营业务的启发:贸易是一种易物的过程,其中伴随并最终形成文化的传播和呈现。故此,空间以美术馆中五个独立的混凝土展厅体块为原型,被隐藏入口的体块形成馀白空间,点以长凳和艺术品展台,混凝土表皮的可塑性让展厅空间更具场景化,仿佛置身真实的美术馆,人是空间的主角。极简的结构肌理和灰色调的线条勾勒以宁静的氛围和内敛的处理让人获得一种精神的重置,馀白空间纯粹无焦点,以足够的尺度触发偶然的邂逅絮语和静思冥想的归属感。
The public exhibition hall is the first sight once entering. There is a definite difference in the office zone and an extraordinary open exhibition hall. In this hall, including two scales of meeting rooms, pantry, dress room, and a live stream room, five functional volumes. The inspiration originated from the trades communication, which contains an exchange of products, the broadcasts of cultures. Therefore, the concept developed on a prototype of a concrete exhibition hall. No entrance face to the exhibition hall, where we situate a bench and exhibit several artworks. The texture of concrete creates the scenery of the museum. It just likes you are in a real museum, and people become the host in this place. Simplified structure, façade, and grey walls in lines generated a tranquil space; minimal interior reset the complex emotions and back to origins. It is spotless in the exhibition hall, where it forms a space for encountering, whispering, meditating, and feeling a sense of belongings.
▼暮光之廊,The twilight corridor
行驻之间,光影之廊 | Traverses and stays on the twilight corridor
空间北侧是俯瞰城市风景,狭长且具有透视感的格栅廊道,从馀白展厅到信步闲庭的室内唯一通道。我们以极致夸张的手法延长这一走廊,沿着玻璃幕墙的整面格栅将城市景观虚化,缓和冰冷的玻璃钢结构大楼立面,将自然光线剪入室内。薄暮时分,阳光倾洒,在地面刻出一道道阴翳,源自自然的时光变幻给穿越悠长廊道以仪式性的行为体验。暮光之廊赋予空间一种精神意象和哲思意味,徜徉其中,带来一种细腻深刻的空间感知,撷珍光影,行驻之间,获得精神的恢复。漫长的走廊也激发出访客对廊道尽头的好奇心,偶发的趣味性给了空间更多想象的可能。
The western area faces to the fabulous urban scenery; the narrow, long, and perspective grilles corridor is posited here, which is the only passage between the public exhibition hall and the nature courtyard. We especially expand this corridor to the edge of the site in a long distance. The gratings along with the glass façade of the building blur the city landscapes outside of the windows, balancing the cold and solid glass steel structure with the warm and harmony timber gratings, filtering the natural lightings into interiors. At twilight, the sunlight showers in the corridor and sculpts a line and line shadows on the floor; with the original natural elements and the flows of time, passing through the passage became a ritual process and particular experiences. The twilight corridor reflects spiritual meanings and philosophy thinking, throughout there, which brings a delicate and impssive sense. Catching lights and shadows, walking and staying, the corridor rewards to the recovers of spirits. Interestingly, the long corridor stimulates the curiosity of guests and pushes them forward to the end of the passage and creates imagination in an unpdictable space.
▼廊式入口,Corridor entrance
信步闲庭,交口众言 | Wanders in the nature courtyard
作为非日常的另一表达维度,精神的自由度容纳于展厅空间,行为的自由度和多元的交流事件则发生在以自然庭院为理念的信步闲庭区。空间以山水石池为象征底色,阡陌纵横;休闲吧台,多功能会议室,财务室,茶室和总裁办公室秩序性地布陈石池中,分散的石子构建界限也模糊界限,呼应整体性也表达自由性,材料天然细碎的属性让游弋成为空间主旋律。会议室如岛屿般独立于石池,出入一块墨色汀步,格栅闭合可开私密性会议,打开则是开放的多功能舞台,这一共享空间强调了信步闲庭的社交属性;半开放的茶室两侧格栅林立,惬意舒适,虚实之间的通透和私密恰如其分。庭院区贯穿南北的中轴打开视野,区域西侧的VIP入口以走廊形式接入主步道闲庭信步的漫游路径。
As an expansion of an extraordinary life, the mental freedoms could appear in the exhibition hall, whereas, the typology of behaviors, manners in communication, and social activities would occur in the nature courtyard. The leisure bar, multiple meeting rooms, financial office, tea house, and psident office sequentially posited in the nature courtyard, which floor is full of gravel. Natural and scattered gravels make space available to roaming. The multi-function meeting room isolated from the gravels pool, which is entirely enveloped by the timber grilles and owns only one entrance route. When close or open the gratings door, the meeting room could switch to a multiple-stage. This place highlights social relations. The tea house is a comfortable semi-public space; gratings stand in two sides. The grilles balance translucency and privacy. The primary way throughout the courtyard zone from north to south, broaden the views; the VIP entrance look likes a branch accessed to the natural route.
▼茶室,Tea house
▼轴测图,Axonometric drawing
项目名称:海氏国际集团北京办公室
项目地点:北京亦庄大族广场
项目类型:办公空间
业主单位:海氏国际集团
设计单位:PLAT ASIA
主创设计师:郑东贤
项目设计师:刘国伟
设计团队:练敬韵,肖东升,刘鑫威
建筑摄影:存在建筑-建筑摄影;PLAT ASIA
家具品牌: 梵几
项目面积:604㎡
主要材料:木格栅,混凝土涂料,石塑地板,石子
设计时间:2018.12-2019.01
建成时间:2019.06

