这是一个旧房改建的项目,原建筑是一个地上两层、地下一层的别墅,房屋附属的空地分布在建筑的四周。这个建筑与周围的别墅相比,唯一不同的是东侧的空地是一个70cm落差的缓坡,在这个普通的别墅区里,成为一个有趣的特质。
在设计之初,便以抽象的方式来定义这座建筑,希望做一个拥有无形生活边界的场所。让建筑中每个单元统一在新的空间场所中。生活的范围可以延伸至建筑所占有的全部角落。由清水混凝土浇筑的围墙与平台合为一体,漂浮于地面之上,定义了新的空间。东侧的微坡与新空间之间形成了一条缝隙。就是这缝隙使院子的整个空间像是飘浮在空气之中,脱离了原有的环境,形成了全新境界。在其中植入不同树木和岩石,只有清澈的玻璃划分出室内与室外,脱离于地面的新空间,恍惚置身于社区之外。
新空间中设置了两个下沉的庭院,这不光是给地下室提供了自然和视觉的通透性,还为地上新的空间体提供了垂直方向空间的层次和变化,并形成了地上空间区域的界定,在地上这个扁平的新空间中,增加了空间的力量与厚重。这浮于地表的新空间25米边长的混凝土边墙全部浮在空中,在混凝土的物理重量之下,形成了空间特有的张力。院中地表向外部空间得到了延伸,与外界相连,使院子无限深远。生活其中,久坐或行走,总能获得一种空灵与力量叠加所带来的安宁与惬意,营造出特有的生活的诗意。
这是一个充满自由的新空间,半户外与露天庭院相互交织,创造了一个丰富的内部环境,光线时刻不停地变化。与城市空间恰恰相反,这里感受轻松,躲避城市的嘈杂,一种新的半户外景观在居家环境中被营造出来。它是为生活定制的新空间,通过丰富的层次感营造出一种新的生活方式。
设计单位 | TAOA陶磊建筑
官方网站 | http://www.i-taoa.com/
联系邮箱 | s@i-taoa.com
建成时间 | 2018
建筑面积 | 540㎡
这是一个普通住宅的改建项目。房主是一位艺术家,希望通过建筑的改建,可以使自己有一个和居住在一起的工作室。同时也希望艺术创作和家庭生活可以互不干扰。
原始的建筑主体,仍然作为日常起居生活的空间,利用原有的院子的地下部分,改造成为更为宽敞、更为独立且更灵活的艺术创作空间。同时地上部分仍然作为院子提供给生活空间的景观和户外活动。
整栋住宅被分为地上和地下两套空间系统。两者各自拥有完全不同的空间氛围。沿着垂直方向互相之间保持一种内在的联系,构建出两个不同的、重叠在一起的平行世界。
地上的庭院是家庭日常起居的场所,将地下工作室的屋顶作为家庭的景观。这里植物尽可能的丰富,让生活在此的家人可以感受到轻松和自在。在美丽的环境中,让孩子可以体验和了解自然,让自然与生活息息相关。
地下空间作为主人艺术创作的地方。虽然在地坪以下,但是这里空间的两端设计了两个尽可能大的地下庭院。为地下工作室提供必要自然采光和通风条件,同时创造了两个安静且独立的精神世界。这里与室内相连,室内外是一个不可分割的空间统一体。自然光由明至暗,再由暗至明。这里的景观除水和竹子外几乎没有任何多余之物,由此使得整个空间的氛围像是凝固的空气,安静而深沉,为创作者提供了一个可以独立思考的场所。
建 筑 师 | TAOA陶磊建筑
建筑面积 | 520.0 m²
项目年份 | 2018
厂 家 | 鼎层DCENG
设计团队 | 陶磊, 陈真, 康伯州, 李京, 张婧泓
景观设计 | TAOA陶磊建筑
室内设计 | TAOA陶磊建筑
施 工 方 | 盛长维团队
业 主 | 艺术家王晓勃
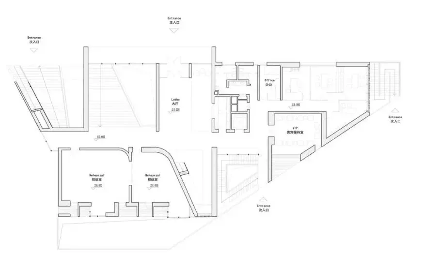
03. 本溪文化艺术中心
项目位于辽宁省本溪博物馆广场南侧,既是本溪文化艺术展示的美术馆空间,同时也是文艺家们汇聚交流及办公的必需场所。建筑地上四层,地下一层。首层、地下一层通过室内外空间的连接及庭院下沉,联结成一个独立、开放的共享空间和展示空间。二、三、四层分别为文联办公、创作和会议空间。公共楼梯盘旋交错而上,以不同的姿态连接各层。
建筑主体屋面采光侧窗形成的双重坡面使博物馆广场周边单调平缓的天际线微微上扬;结合场地转角带来建筑体量上的斜切,和楼梯向外斜探的形体变化,产生了一种新的艺术化的城市活力。
在如岩石般完整的体量上镂刻出的凹洞,既是室外休息的功能性需要,更让被包裹的内部空间由内而外透过不同形态、不同方向的凹洞散发出来,形成一种坚忍而温和的力量。
项目地址 | 辽宁省本溪市
用地面积 | 3,000 m²
建筑面积 | 4,000 m²
设计内容 | 室内 景观 建筑
设计时间 | 2013.12-2014.06
施工时间 | 2014.08-2016.11
建 筑 师 | 陶磊、康伯州、陈真
关于设计 TAOA 在实践中不断的寻求一条与当今社会及自然环境共存的道路,以东方的自然观探讨属于未来的建筑。TAOA 所有的项目,不论是居住、商业还是文化中心,都在始终秉承着让建筑在当代的语境下,以有机、轻松且快乐的方式体现真实、自由的生活氛围,旨在中国传统的空间意识、文化意识及当下价值观的前提下去营造属于自己的空间意境。TAOA同时重视从项目策划、概念设计到项目施工过程中的每一个环节,一直致力于对建筑品质的完美追求,重视建筑的工程细节和最终真实建筑的完成度,重视业主的真实需求和建筑表达社会意义的统一关系。 TAOA全称为陶磊(北京)建筑设计有限公司,前身为2007年由陶磊创立的个人建筑工作室,2011年正式成立陶磊(北京)建筑设计有限公司,并且得到业界的普遍关注,作品在多个国内及国际重要专业媒体发表。2010年设计作品首次获得WA中国建筑奖这一重要奖项,之后作品还获得亚太室内设计大奖金奖及优秀奖,中国博物馆设计大奖入围,中国建筑十年评选第十名,中国建筑传媒奖最佳建筑奖提名,2012年,作品再次获得WA中国建筑奖佳作奖,以及陶磊个人获得中国建筑传媒奖青年建筑师人物奖提名。2012年受凤凰传媒之邀出版TAOA第一本书,当代建筑在中国70系列之《里应外合》。
公共空间 中式 质朴 自然 木质

