当下,城市大型公共建筑作为城市空间的重要组成部分,绝不仅仅是形式和功能上的突破,更像是一面城市之窗,向世界展示着这座城市的文脉历史、时代特征以及未来气质。其呈现方式丰富多样,但本质均在于尊重城市的发展脉络、追求公共空间的开放性,力求实现使用者的归属感和认可度,从而进一步激发片区乃至城市的活力。
西溪首座办公园区的设计实践,试图探索办公园区之于城市的意义,更重要的,在互联网新兴城市杭州,大量的创新科技人才涌入,园区与城市的这种关联,能否为互联网时代创新办公空间模式带来新的思考,是本次探索的重点。
城市空间与文脉挖掘
项目位于西溪湿地北部500米处,西溪湿地之殊在其集城市湿地、农耕湿地、文化湿地于一体。然而,与城市化扩张共至的人口激增和生态破坏让西溪之质生变。湿地的保护促进城市经济文化的双重收益,但完善的原住民迁移带来的湿地保护,看似共赢,却使自然与生活相互交错的场景难以再现,令人扼腕。
基地紧邻湿地景观,自然资源优越,且该区域处在政府的大力推动下快速发展。周边高端住区和金融商业密布,同时还有不少的文化设施也在逐步成形。在杭州多中心城市规划的大背景下,可以预见,这里也将变得车水马龙。
项目地块规整,四面临街。基地被十字交叉的河道四分,源起西溪的60米宽河道横穿东西,80米宽规划景观廊道贯通南北,直达湿地。作为集办公与商业为一体的大型园区,如何在满足合理功能需求的同时,实现一个充满活力的城市开放空间,是本次设计最基本的切入点。
商业的价值体现在规模聚集的沿街商铺和具有吸引力的地标形态。办公则需要内聚与活力的内向空间。基于以上对办公综合体的理解以及对空间功能价值的审视,也恰因其特殊的文化和地理脉络,我们看到了在西溪首座充分交融活力空间与多元生态、塑造开放园区与商业吸引的可能性。基于此,我们从传统的湿地城市与院落组织中,提取出“外围围合、内部营造”的空间共性,通过内外有别的空间布局,创造适宜的办公环境与湿地景观,力求打造活力交融的园区环境;通过轻盈柔美的立面设计,凸显杭城秀美的城市特质,再结合非常规视觉下的常规结构处理,使成本得到有效控制;最后辅以细节设计的打磨和灯光氛围的呈现,使园区成为城市中无疑的焦点。
开放园区与形态生成
围绕“公共性”与“开放性”相结合的需求,我们展开了设计策略的研究与探索,进行了多方案的总图布局对比。在进行了多方案的比较与优化后,确立以下建构策略:首先,体量布置以内外有别、外整内松、层层渗透为原则;其次,在面向外围城市道路的四个界面,以中国传统的院落意向为蓝本,结合现代的技术支持,采用大围合、大开口、大尺度这三“大”设计手法来对外部围合体量进行整合。这样不仅能在城市界面上创造出开阔大气、卓尔不群的建筑形象,又为都市居民创造出尺度恢弘的城市公共活动空间,为内部营造出世外桃源般的湿地景观创造有利条件。最后,内部的体量布置以传统的湿地聚落形态为蓝本,以小体量、小变化、小组团这个三个“小”设计手法组织内部聚落,充分结合南北80米景观带和东西60米景观河道的优越资源,不仅在水平方向上进行景观的渗透与延伸,还在垂直方向上利用种植屋面将湿地景观向竖向维度拓展,使建筑成为景观的一部分,最终达到与景观的融合。
在具体的形态把控上,外部围合四个L形板楼,对其边角进行柔化处理,协调开洞比例,形成刚柔并济的建筑形象;内部的小体量建筑则以单体多层退台和体块间高低错落的有机组合为基本设计手法,营造恬淡、平和、精巧的建筑气质。
建筑色彩采用淡灰与雅白的主色调,延续温润雅致的城市印象,结合各种建筑节能措施设计的众多立面细节,消隐建筑的体量感,重温江南水乡的色彩记忆。
内部空间采用大空间办公布局形式。板楼内部设置办公中庭,它位于核心筒中部,35米高,能有效地将阳光带进较低的楼层。中庭中设置的四台电梯,裸露的运行轨道和结构柱营造出科技感和未来感。客梯载重量1.6吨,速度1.5米/秒,轿厢净高3.2米。
外部板楼底层为商业店铺,商铺单元设计综合考虑了设备与商业形象的需要。商铺立面的划分对应9米的柱网模数,按照每段2250的宽度进行四等分,而每一个标准商业单元均由一段内凹的商业入口门斗加三段落地的大面玻璃组成。单片橱窗玻璃尺寸为2250*3000,保证绝佳的商业展示效果。玻璃橱窗上部设置通长的金属格栅,满足设备排烟以及商铺通风的需求。另外我们在底层连续设置出挑2.1米的金属雨蓬,既可以为人们提供庇护,又可以强化建筑形体增加设计整体感。
内部点状分布的小体量建筑设计中,中庭与交通空间相结合,完成动静分区的有效过渡。交通空间又与辅助功能相连接,居于一隅。辅助空间与使用空间的形体分离,增加了空间的通用性与灵活性。
在景观设计上,围绕西溪水景主题,在原来的河道基础上,重塑西溪“一曲溪流一曲烟”的烟水西溪湿地意象。通过打造河道、溪流、池塘、湖漾、沼泽、潭池等多元水环境,把原生态的湿地景观带回基地。内部独栋办公屋顶平均覆土0.9米,最厚处1.5米。种植大的阔叶乔木,楼板屋面植草处理。这样使园区内部绿化覆盖面从平面维度向立体延伸,有利于形成良好的园区气候,降低空调能耗,提高顶层的舒适度。南北地块跨河道处设计两座拱状钢结构连桥,下可通船。连桥沟通南北地块的同时,拱桥形态与湿地景观相呼应,还原湿地意象。
幕墙表皮与材料构造
柔化的边角、大跨度的挖空转角部位和退台的处理,在化解大体量压迫感的同时,也带来大尺度悬挑和曲面幕墙等技术难题。出于造价成本的考量,我们决定用常规的构造策略实现非常规的视觉印象。
大曲面建筑的幕墙造价通常大幅高于普通建筑的造价。出于经济性的考量,我们决定使复杂的曲面形态简单化处理,用常规的构造策略实现非常规的视觉印象。
幕墙的曲面玻璃没有使用双曲面,在异形转角与上挑处使用单曲玻璃,其它部位正交常规处理。在形体的转角端部以及洞口处,我们通过对每一块玻璃的半径与水平位置做了不同的限定,使单曲的玻璃单元组合塑造出双曲的形体效果,既保证了我们所要追求的非常规的柔美曲线,又可以有效降低造价及施工难度。
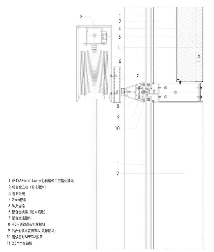
横向的遮阳百叶是本项目造型设计的一个重要元素,为了实现圆润流畅、精致轻盈的设计效果,我们对百页的材料及形态进行多方案的设计推敲,最终考虑到百页端头的细节、拼缝的效果以及折弯工艺等因素,选定了主体复合铝板加铝合金型材端头的设计。并对型材和铝板的颜色统一性、拉弯精度的完美拟合、拼接缝隙宽度等做了严格要求以保证呈现出最佳的效果。另外我们也对百页内侧的横向龙骨也进行了推敲设计,保证内外形态的统一,同时尽量减小横框截面在视觉心理上的影响,增大观景面。
楼层的层高被设定为4米,遮阳百叶按照1米的间距进行横向的划分,在使室内视觉通畅无阻的同时起到阻挡外来视线干扰的作用。杭州夏天日照过于强烈,水平出挑的浅色百叶使阳光经过反射进入室内,能有效地起到遮阳节能的功用。通过使用水平百叶二维的横向线条肌理对体块进行切分,实现三维不规则的塑性形体。我们对标准楼层的四段百叶标高定位也进行了精细的推敲。保证了观景的最佳视线关系,并统筹考虑了横框的防护高度、开启扇设置、结构梁高的合理衔接等设计要求。
为了保证外立面效果,我们采用了机械排烟系统,而仅满足平时通风需求的开启扇,我们选择设置在幕墙最底部,使得内部正常视线范围内看不到开启扇外边框,可以保证观景视线的纯净,而开启扇设计在底部也可以很方便窗户的开启,节省了摇窗器的成本。在底部开启扇的外侧我们设置了固定玻璃,以保证安全性的同时兼顾立面的整体性。外片玻璃的开口尺寸与固定方式都进行了精细的推敲,确保立面的统一与使用的合理。
采光玻璃我们也进行了多种方案挂样对比,在满足热工性能的前提下做出最优的选择。最终选用普通白玻Low-E玻璃,16%反射率的灰色透光膜,使建筑幕墙不至于过分冷峻,与圆润的横向百叶一起,营造亲切的建筑氛围。
内部独栋办公幕墙的设计中,运用类型学的原理,归纳出不同透明性指标的立面肌理,根据景观朝向等外部资源的优劣,安排每个界面的立面虚实。在朝南和朝西的方向外设置电动遮阳百叶,在夏天取得最大的遮阳效果又不影响室内的自然采光,在冬天保证不遮挡日照。
模数化与结构设计
板楼办公及地下室采用最为经济的9米柱网模数,在上部可形成2250个办公基本单元。独栋办公的柱网模数为12米,以避免地下室抬柱。外部板楼采用半径3米、内部独栋采用半径1米的圆弧倒角模数。
板楼核心筒分为两种布局,中岛式和单侧样式,提供更加灵活与经济实用的交通结构。独栋办公层高4.2米,用1.4米的模数进行横向划分。幕墙整体下降350毫米,幕墙横挺位于1050毫米处,代替栏杆,使形体更加纯粹。
针对建筑具体部位不同的建筑形态,采用混合的结构设计。在城市界面的入口处,大跨的开口架空部位采用大跨空腹钢桁架体系。板楼为钢筋混凝土框架—剪力墙结构,局部柱采用型钢混凝土柱,局部楼盖为钢筋混凝土组合楼盖。
内部点状散落分布的独栋办公独立开放,为了实现大空间办公布局与自由流动的平面模式,采用扁梁厚板的结构形式。柱网为12米,四边各出挑3米,结构轻盈,室内空间宽敞明亮。建筑结构与建筑表皮脱离,核心筒设置居于一侧,为自由经济的平面构成提供更多的可能。我们对独栋办公内部管线进行了优化设计,将影响层高的所有管线集中布置在中心区域,尽量压缩空间减小其对高度的占用,并保证外侧四周3米悬挑空间的高度最大化,以获得最佳的观景效果。对管线布置的梳理保证了空间、结构、设备在设计目标上的一致性,内部后期装修无论是否做吊顶都会有比较好的空间效果。
建筑异形的转角处,在保证支撑合理的前提下,将构件极简化处理,使建筑内外得以协调统一。对于标准部位,玻璃直接固定在支撑幕墙系统的竖向龙骨上。而异形转角部位,支撑幕墙系统的竖向龙骨并非上下垂直。若采用同样的玻璃固定方式会额外增加很多段垂直的竖向构件。为了保证内部空间的纯净,我们考虑将转角处横向龙骨加强,玻璃直接固定在横向龙骨间,最大程度提供宽敞通透的室内空间。
办公入口处的下挂幕墙与悬挑雨棚支撑体系独立于结构柱之外,保证了建筑幕墙的连续通透。旋转门底部降板以放置机电设备,实现无框的设计。
在建筑外立面泛光设计中,经过三轮设计方案的现场调整,最终选定线性动态LED上投灯。配合具体设计的灯头节点与挡光板,使灯光在在隐蔽性、连续性上都能呈现出上佳的状态。
结语
与小规模的项目强调感官体验与创造性相比,西溪首座此类大体量项目的设计需要采用更为审慎的策略。在深刻理解业主的本质述求下,游走中间状态来寻找创作空间与突破口;功能空间与材料组织都需要成熟可靠的全局考虑;针对商业性与城市化的背景,视觉风格的确立更需要以市场为主导,以融入城市背景为原则,而不是以个人喜好为出发点来进行设计。在细节的处理上,需要精确的专业控制保证完成的品质,施工图阶段的继续设计工作不可忽视。
一条南北向城市公共绿轴和一条东西向河流将项目基地分成四块,如今回想,这个曾经困扰我们的限定条件恰恰让我们实现了真正的花园式办公。五年前担心的湿地野趣景观与办公园区高端商务氛围之间是否能和谐相处的问题也已不在,如今游走其中,绿意盎然的园区已然分不清是建筑中的景观,还是景观中的建筑。
项目的建成,最让我们获得成就感的,不是营造出具有冲击力的建筑视觉形象,而是说服了园区业主,在建筑投入使用后采用开放式管理。公共性的实现给园区带来了生机和活力,遛狗遛娃这些生活场景的悄然融入,模糊了工作与生活的边界,作为建筑师,看见这样的场景,倍感欣慰。这也是我们对未来办公园区模式的一次实践探索和尝试,过程艰辛,也有不少遗憾,期待未来有新的突破。
建筑师 gad
地址 文一路崇仁路口, 杭州, 中国
类别 办公建筑
业主 中国节能集团浙江公司
建筑面积 地上148156㎡,地下100000㎡
项目年份 2018
摄影师 姚力, 黄金荣

