“在现代住宅小区里做一个文人美术馆”,是我们拿到的命题。显然,这是一个具有挑战性的命题,需要解决两大难题:现代与传统的关系;住宅(私密)与美术馆(开放)的关系。好在,这个场地坐落在富春山脚下。
01. “一个想象的文人世界”
An Imaginary World for Literati
这是两幢相连的排屋,五层楼高,每幢占地约100方,因为占地面积小,加上中心过大的楼梯井(楼梯宽度1.2米),可使用的居住空间全部被挤压在边上,空间非常狭小;又因为住宅的功能需要,整幢建筑被细分为大小不一,形态各异的38个房间,整个建筑被无数的墙体划分成细碎的小空间;还因为小区外立面的统一管理,我们只能在内部改造,这意味着,在外部看来和周边住宅别无两样,在这样的条件下,如何诞生一个文人美术馆?
我们认为在现代结构的建筑里简单加入传统元素,几件传统家具,几面木头墙体,都只能说是一种装饰,那些“传统语言”只是历史当中的片段,此时其语言体系并不完整,我们需要重建一套可以回应传统、可以承载传统实物片段的现代空间形式语言,一个具有叙事性、建构性的自我解释与生长的语言系统。我们打算,先从想象一个“文人世界”开始,然后用这个建构完整的语言系统去改造这个现代住宅。
02.“洞天”/“容器”/“混凝土框架系统”
Grotto – Recipient – Frame Structure in Concrete
首先,这个“文人世界”应该在一片山水环境中发生,就像黄公望先生对富春山的选择,而场地四周已被住宅包围,因此,我们计划在现代建筑的外壳下装进一座想象的山水,建构一个文人的“洞天世界”。带着对“洞天”空间的想象,我们打掉了所有的内部墙体、所有的楼梯和局部的楼板,只留下了原始的混凝土框架和外立面表皮,于是一个巨大的容器空间出现了,这就是“洞天”的基本结构,同时也解决了住宅的封闭到公共空间的开放性要求。这时因为原始住宅细碎的房间划分而导致的异常复杂的混凝土框架被完全的曝露出来,虽被一个连续而庞大的外部边界所包裹,但其仍旧奠定了复杂多变的空间基调,这是现场与生俱来的特质,也是这个“洞天”需要保持的特质。
本质上,这是一个技术的容器,混凝土框架既是对“现代建筑”的一个指代,又是一个实质上的技术支撑体,而六面连续的外表皮则是和外界对话与关联的唯一边界,这个被还原到本质的结构,既保证了“洞天”的完整性,又储备了内部空间的多维度发生可能。
03. “木头房子系统”
Wooden Room Systems
此时,现代建筑中多余的成份已经清理干净,等待进入的则是一整套文人生活方式的空间系统,我们设置了九个木头房子,这九个房子代表了文人生活的九个方面,“琴”、“棋”、“书”、“画”、“诗”、“酒”、“茶”、“花”、“香”,这些是文人用于表达思想的媒介,两两成对:“琴-棋“书-画”“诗-酒”“茶-花”,而“香”则是一个最具精神性的内容,在过去,点香常被看作是一个神圣的仪式性活动,香在垂直向上升腾的时候,意味着与神的对话。因此,我们将“香”设置在了整个建筑的圆心位置,我们称之为“人文的中心”,而其余内容则萦绕在四周。
同时,我们给出了一系列“轩台楼阁”等相应的建筑类型,根据空间的位置和使用特征进行匹配,从下往上形成了“书斋”、“琴楼”、“画轩”、“花室”、“酒肆”、“茶庵”、“诗阁”、“棋宇”、“香台”,九个承载文人生活的原型建筑,在高低不同的空间位置上相互对话,以此完成文人世界的内容建构。为什么说是原型建筑?比如茶庵,“庵”作为一种建筑类型,在其最原始的时候是一个圆形的草屋,加上喝茶的使用功能,我们在设计的时候将圆形草屋的意象与盘腿对坐喝茶的意象用现代建筑形式语言呈现出来,外方内圆,四周通透,使其既不违背本质,又是一个现代建筑。而对原型的回溯除了预设一种生活的展开形式外,更为重要的是为了让其空间不脱离自然环境,类型本就带着环境成型,在这个“洞天世界”里,更重要的是山水环境的氛围塑造,可以看到,无论是山水画还是园林,房子总是只占据着少量的空间,大部分的空间仍是自然山水。
04. “自然场所系统”
Conjunction of Natural Places
这些自然山水便存在于除去九个木头房子之外的剩余空间中。我们常常会在山水画中遇见这样一种特殊的空间:画中若有一个小房子,房前往往就会有一小片人工改造的地儿,有些是菜地,有些是平地,有些被篱笆围起来成为院子,总之,一定会有那么一块人工驯化过的场地,成为房子与自然山水之间的一个过渡空间。
在“洞天世界”里,九个木头房子的边上都配置了一个这样的自然场所空间,或大或小,或停留或经过,或附属或并置,每一个木头房子和相应的自然场所又构成了一组新的层级空间。而这些自然场所也同时围绕着一个中心,与“人文的中心”相对,这是一个“自然的中心”,是一个五层楼高的天井,这里原本就是一个天井,只不过在原始住宅中是封闭的,是为了两幢建筑之间的通风而设置,而在这里,它是一个能将自然环境真正引入到室内的大型透明玻璃装置,由一系列可以自动开合的百叶窗构成,这个装置配有自动抽水循环系统,可以在晴天将底部雨水池中的水抽到顶上并自由落下,通过控制水量创造瀑布或雨水声。这个天井装置可以在整个洞天的各个角落看到,它的垂直形态象征着“大地与天空”的关联,而香台则处于整个空间的圆心位置,它的360度辐射形态象征着“人与神”的关联。“人文”与“自然”的两个中心,分别凝结着木头房子系统和自然场所系统,共同形成了一个双重复合的“天、地、人、神”关联的世界中心。
05. “垂直园林”/“游山玩水”/“山水迷宫”
Vertical Garden – Promenade in Nature – Labyrinth of Landscape
我们对木头房子和自然场所系统使用了实物感较强的材料,能感受到材料的肌理、质感甚至温度,来对应传统观念,而混凝土框架系统则使用了较为抽象、无肌理、光滑且略微反光的材料,来对应现代观念。同时,我们将混凝土框架完全的暴露,包括所有的梁,让人们感受到一个完整的技术框架系统,通过不界定顶面和地面,来打破“现代建筑”(柯布西耶“多米诺体系”)的水平空间限定,创造自然的多维空间状态,那种人在山水环境中生存的自由空间状态,两套不同观念下的系统进行交织融合,互为对话,共同建构起一座想象中的山水人文世界。
最终,这些空间将被几条重新设置的路径关联起来,交错叠加,犹如“垂直的园林”,形成一个可以“游山玩水”的“山水迷宫”,内在的游走便是这种多维、套叠、连绵、自由的空间结构最好的呈现形式。路径本身也是场所的一部分,是场所的蔓延,以此将所有片段空间连缀成一个整体,我们设置了两类楼梯,一类是居于建筑下方的体积感较强的“石桥”,我们将下方更接近大地的楼梯理解为是一层空间跨越到另一层空间的桥梁,就像在山中跨越河岸的石拱桥,而另一类则是居于上方,更接近天空的“天梯”,为了强化凌空感,我们将每一步阶梯都进行了分离并在整体上做了延长处理,使得爬天梯的过程变得更漫长,天空变得更高远。
06.“隐喻投射”/“情境剪辑”/“山水幻境”
Metaphor – Scenario – Mirage
路径串联的不仅是功能空间,更是一系列被剪辑出来的山水情境空间,好似一处“山水幻境”。在这里,到处都有对山水和文人生活的隐喻投射, 比如天井,空间中唯一的白色透明物体,犹如瀑布一般,时而打破洞天的宁静,时而定格为顶上洞口突然截住的一缕阳光;比如画轩,悬于水面之上,转折弯曲环抱湖心;比如琴楼,左前方是天井瀑布,右前方是由透光混凝土砌筑而成的岩石山,右侧则是高耸的有着几处壁龛的悬崖,可以想像犹如在一处深山谷中抚琴。一幕幕情境随着路径被剪辑串联,木头房子好似亭台架于湖上,楼阁悬于空中,人们游际与驻留在“似与不似之间”。夜晚的“洞天”是另一种“山水幻境”,因此,我们设计了一套山水语言的灯光系统,其中,不规则高低错落的吊灯是为了营造夜晚山中特有的星星点点的灯火氛围,木头房子会被完全的点亮,好似山间远远的一处人家,沿路设有引路的地灯,在关键的转折点设有壁灯提示空间的转换,中心的天井,是唯一的冷光灯,全部点亮时可以把整个空间照亮。
07.“蓬莱仙岛”/“一个中国文人世界的微缩模型”
Fairy Island – Miniature of the World for Chinese Literati
与内部自然场所空间性质类似,在整个洞天的外部需要构造一层与自然山水过渡的空间,在此与内部形成一个同构的结构呼应。与外界关联的空间,包括洞天的外表皮以及四方的院子:前院、后院、侧院和顶院,连续的外表皮将四个院子关联起来,形成一层环绕在周围有一定厚度的外部环境,如果将洞天喻为“蓬莱仙岛”,这层有厚度的环境则可以理解为两种性质,一是岛四周的海(水),通向彼岸的媒介;二是那烟雾缭绕的仙气,一个自成一体的自然小环境。
在山水画中,自然由山、水、树、石四类基本的自然物构成,通过其千姿百态的造型以及地方位置的布局形成各种山水自然环境,因此将这四种自然物分别作为四个院子的精神核心,延伸为山院、水院、树院、石院,形成一个高度概括的自然环境,也是一个精神的自然环境:水院是后院,有一个小山门,一池清水;树院是前院,有一个大山门,一颗保留的大树;石院是侧院,比较隐蔽,有一颗高两米的巨石;山院是顶院,登顶远眺,能看到富春山。
四周的海(水),则通过“枯山水”的形式呈现,这里指的并非日本的“枯山水”,而是一种隐喻的转化,各种水形态的抽象化,进而接近水的象征,前院、侧院同为瓦院,前院层层台地,犹如浅滩溪流缓缓落下;侧院面积不大且有较高的围墙,近似林间一汪清泉。后院、顶院同为黑色碎石铺作的院子,后院地面景观延伸进了室内,内部原始的台地形成了一个大的戏台空间,这个空间是上部空间的基座,黑色碎石在上面的每一层自然场所中都有局部的出现,就好似山间清流,层层跌落,最终汇入山下的水潭;顶院借着远处的富春山,一半是江一半是岸,形成了一幅可以进入的《富春山居图》。
外表皮不仅是洞天的边界,在原始住宅功能里,外表皮承担着阳台的作用,是室内走出室外的媒介,而洞天空间“内化”的特性,已不需要阳台的功能,我们利用阳台的空间特征再造一个外部的自然环境,将阳台全部做成树池,种满绿植,这样,当我们在室内看向窗外时,会看到更多的自然。
外部环境的处理,目的是呈现出一个漂浮在水上的“洞天世界”,一是让人们感受一种“蓬莱仙岛”般的幻象,二是呈现一种渡水而入的彼岸神秘之感。这个“洞天世界”是志同道合的文人们精神的交流之地,风物的共赏之地,创作的展示之地,是暂时离开现实的神游之所,是“一个中国文人世界的微缩模型”。










▼B2层平面图
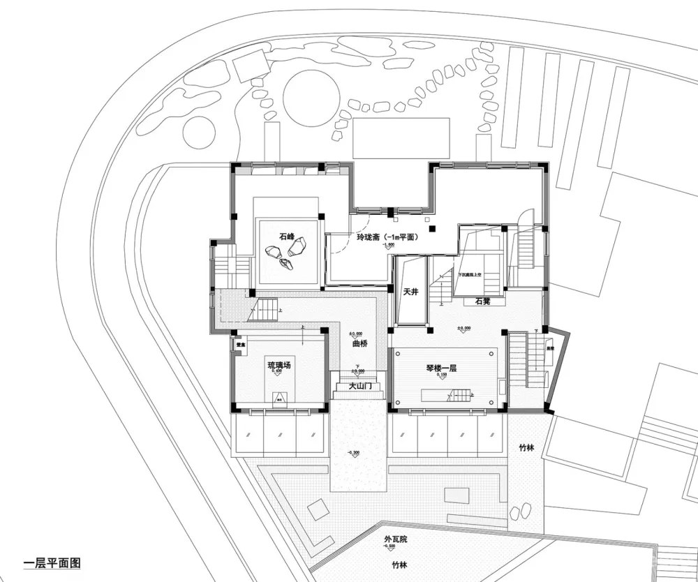
▼1层平面图
▼3层平面图
▼2层平面图
▼1层夹层平面图
▼B1层平面图
▼设计概念图
▼文人世界的微缩模型
▼木头房子 + 场所
▼木头房子+混凝土框架
▼剖面透视图
▼垂直园林设计概念图
▼场所系统
设计时间 : 2014.6
竣工时间 : 2018.12
项目负责⼈ : 董莳
主案设计师 : 董莳、赵迦

