北京周边有很多太过讲究的房子,讲究的千篇一律,讲究的太不讲究。瓷砖贴面、洋红粉蓝,总是那么出挑,这个项目原先也是这个样子。钱不能花太多,所以用在山上拾的荆条子把建筑给裹起来,隐在山里,好看也遮阳。塔房子用剩下来的脚手架顺手就搭在院子里,拉上遮阳的网子,日头出来的时候坐在底下,看着层峦叠嶂,美。业主给他这个民宿起名叫“小也山谷”,但我更想叫它“野山谷”。
 
 
 
 
 
 
 
 
 
 
 
 
 
 
 
 
 
 
 
 
 
 
 
 
 
 
 
 
 
 
 
 
 
 
 
 
 
 
 
 

 
 

 
 

 
 
 
 
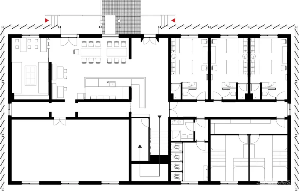
▼二层平面图
 
 
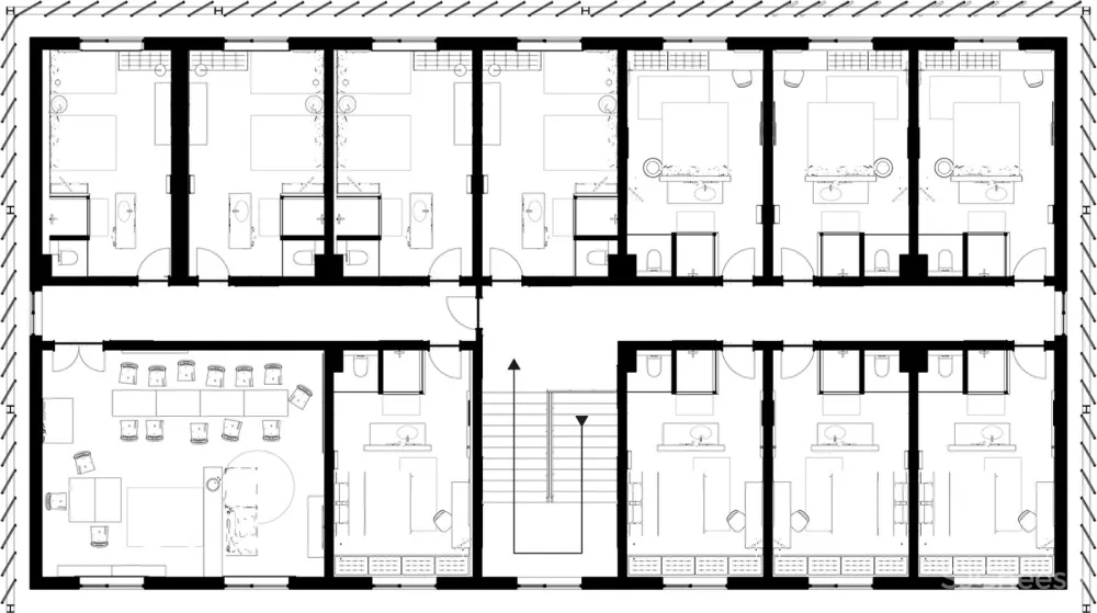
▼一层平面图
 
 
▼总平面图
 
 
项目名称:小也山谷
设计方:阿穆隆设计工作室
联系邮箱:13522430436@163.com
项目设计:2018.08-2018.09
完成年份:2018.10-2019.04
主创及设计团队:阿穆隆 宋小有 刘宠
项目地址:北京市延庆区石佛寺村
建筑面积:850㎡
摄影版权:金伟琦
客户:小也山谷民宿
材料:荆条,多层板,钢,镀锌板


