江南水乡,千古文人骚客的桃源属地。湖光潋滟的嘉兴,一座以“平和报本”为精神的城市——平湖,成了JYDP间睦设计,文创零售书店新作“湖光里”的坐落地。
湖光里文创零售书店,位于平湖南河头历史文化街区。在古时南河头被称为“鸣珂里”,明宣德五年(1430年)时期,已初具规模,形成两街夹一河的传统水乡格局。空间依托于青砖黛瓦,富有江南水乡古韵的徽派建筑,既为设计的一大特色,也对改造保护古建带来了不少考验。
Jiangnan Watertown, the Peach Blossom Spring of poet. JYDP’s team designed HUGUANGLI bookstore in historical and cultural district of Nanhetou, Pinghu,Jiaxing city.
In ancient times, Nanhetou was called “Mingkeli”. During the fifth year of xuande in Ming dynasty (1430), it began to take shape, forming a traditional pattern of two streets with one river. Relying on ancient bricks and tiles, the space is rich in ancient Hui style architecture, which is not only a feature of the design, but also a challenge of the transformation and protection of ancient architecture.
▼书店外观,exterior view of the bookstore ©JYDP间睦设计
江南水乡,千古文人骚客的桃源属地。湖光潋滟的嘉兴,一座以“平和报本”为精神的城市——平湖,成了JYDP间睦设计,文创零售书店新作“湖光里”的坐落地。
湖光里文创零售书店,位于平湖南河头历史文化街区。在古时南河头被称为“鸣珂里”,明宣德五年(1430年)时期,已初具规模,形成两街夹一河的传统水乡格局。空间依托于青砖黛瓦,富有江南水乡古韵的徽派建筑,既为设计的一大特色,也对改造保护古建带来了不少考验。
Jiangnan Watertown, the Peach Blossom Spring of poet. JYDP’s team designed HUGUANGLI bookstore in historical and cultural district of Nanhetou, Pinghu,Jiaxing city.
In ancient times, Nanhetou was called “Mingkeli”. During the fifth year of xuande in Ming dynasty (1430), it began to take shape, forming a traditional pattern of two streets with one river. Relying on ancient bricks and tiles, the space is rich in ancient Hui style architecture, which is not only a feature of the design, but also a challenge of the transformation and protection of ancient architecture.
▼书店外观,exterior view of the bookstore ©JYDP间睦设计
空间氛围 – 江南森系书店的自然之野
Space atmosphere – Nature essence
湖光里有光华的洗礼,也有和平湖“平和报本”的一样自然质朴的人文气质。在平湖“平和报本”的精神中,一个“平”字,既凸显了其地处杭嘉湖,平原腹地的自然禀赋,又涵盖《礼记·中庸》所云,“中也者,天下之大本也;和也者,天下之达道也”的平和境界。
平和境界,可以是从容不迫的慢下来,允许生活露出原本的模样,舒缓身心,回归自然。或静听风雨,枕书而眠,或看湖光里依傍小桥流水日升月落,仿佛时光的流淌也变得缓慢。
HUGUNAGLI has light and peaceful spirit. “PING”in Chinese it’s not only highlights the natural endowment in the location but also covers the doctrine of the mean in the book of rites. Harmony is the state of peace under heaven.
Peaceful state, can be leisurely slow down, allow life to reveal its original appearance, relax body and mind, return to nature. Or listen to the wind and rain, sleep with reading, or see the bookstore near the bridge water, as if the flow of time has become slow.
▼湖光里外部环境,营造出一种平和的境界,architecture facade, creating a peaceful state ©JYDP间睦设计
设计区域分属两栋独立建筑,中间相隔悠长小巷,依功能再进行细分。植物的光合作用带来能量转换,促进万物共生。因此为空间“引入光”,采“光合”谐音的物理形态“光盒”之意,基于最大采光性,置入在原建筑前后外立面、小院白墙和两栋建筑的连接处。一切以光为指引,置入光盒后,空间自然开阔的光感开始流动,呈现一片明亮。
▼置入空间的“光盒”,“light box” placed in the layout ©JYDP间睦设计
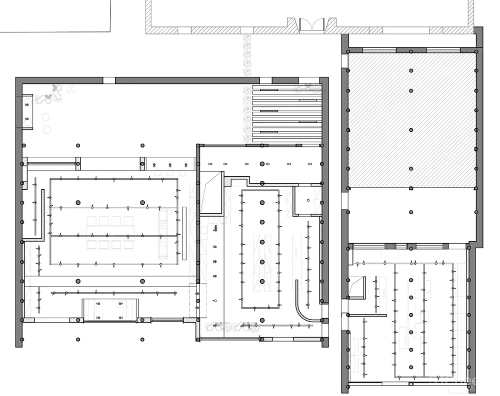
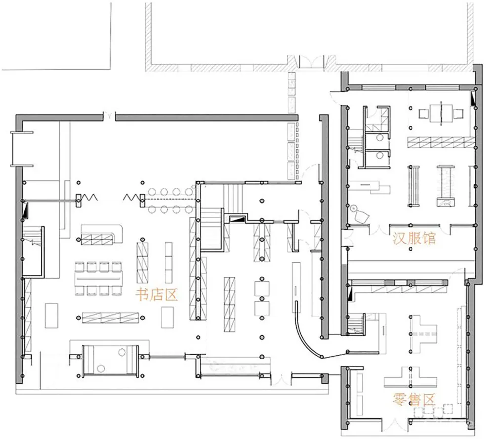
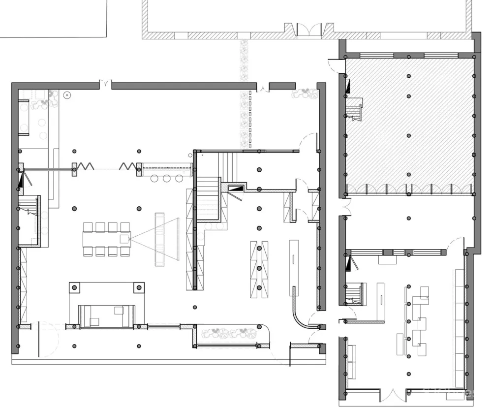
书店区以阅读氛围营造和书籍陈列为主,搭配定制化书架、桌案,集陈列、储物、美观于一室。零售区和汉服馆以组合多变的定制陈列为主,配以珊瑚色系陈列道具,营造温暖平和的购物环境。
▼空间功能性布局,书架、陈列、桌案的加入,明确出空间格局、动线走向,final function layout, the addition of bookshelf, display modular and tables make clear the spatial pattern and the circulation path ©JYDP间睦设计
设计书店之初,我们就颇为平湖,回归自然与生活的本真气质所动容。所以在书店氛围的营造上,我们通过充满自然之野的材质肌理,营造这间江南森系书店。
空间内部,完整保留了古建中密集的石底立柱,以顶托岁月的阴翳礼赞;四壁的书架陈列,采用具有透光感的PC背板,衔接以自然清新的绿色漆木层架,配浅色木纹书籍储藏柜,底衬湖光里的返璞归真。前者镌刻了江南的悠久历史,后者对照了自然的本真生活,宁静舒适的森系书店也由此而生。
At the beginning of the design of the bookstore, we want to return to nature and the true temperament of life. Therefore, in the construction of bookstore atmosphere, we create this Jiangnan bookstore through the material texture full of natural wilderness.
In the interior of the space, the dense stone columns in the ancient construction are kept intact to support the shadow roof .The bookshelf of walls is displayed, the PC wall that connect with natural green lacquer wood layer is worn, match book of light color wood grain to store ark, the return uncut jade in bottom line lake light returns true. The dense stone columns recorded history,the bookshelf recalled life,those gave birth to HUGUANGLI.
▼宁静舒适的阅读区,空间内部完整保留了古建中密集的石底立柱,reading area, the dense stone columns in the ancient construction are kept intact to support the shadow roof ©JYDP间睦设计
空间陈列 – 陈列功能的动静结合
Space display – Display function of dynamic and static combination
零售区多以珊瑚色系的定制陈列组合道具,作为灵活多变的陈列展示货架,金属网格板与零部件可根据商品类型自由组合。组合道具下方的移动式抽屉,满足了储货需求,附带两层推拉式抽屉,更增加货品的陈列选择。
The retail space use coral color customized display combination as flexible shelves. Metal perforated panels and parts can be freely combined according to the needs of clients. Movable drawer under the combination of modular, to meet the storage needs, with two layers of push-pull drawer, increasing the selection of display method.
▼灵活多变的陈列展架,flexible display modular ©JYDP间睦设计
书店区域西北角的楼梯,被设计团队封顶改造为一个综合性的阅读、陈列展示区域,保留楼梯拾级而上的造型,结合镂空的绿色壁龛,作为静态的陈列展示。
The staircase in the northwest corner of the bookstore has been transformed into a comphensive reading and display area by the design team, retaining the shape of stairs ascending and combining with hollowed green niches as a static display.
▼改造后的楼梯阅读区,stair reading area ©JYDP间睦设计
书店区以阅读氛围营造和书籍陈列为主,搭配定制化书架、桌案,集陈列、储物、美观于一室。零售区和汉服馆以组合多变的定制陈列为主,配以珊瑚色系陈列道具,营造温暖平和的购物环境。
▼空间功能性布局,书架、陈列、桌案的加入,明确出空间格局、动线走向,final function layout, the addition of bookshelf, display modular and tables make clear the spatial pattern and the circulation path ©JYDP间睦设计
建筑外表,依旧保留岁月的阴翳礼赞,而内部充盈了自然光华,书香倏然而来。设计团队希望“光盒”之意,如光华为岁月洗礼,也为古老建筑注入新生的力量。
The exterior of the building still retains the shadow and admiration of the years, while the interior is filled with natural brightness. The design team hopes that the meaning of “light box”, is like the light baptism for the time, but also to inject new power into the ancient buildings.
▼书店外立面,依旧保留岁月的阴翳礼赞,the exterior of the building still retains the shadow and admiration of the years ©JYDP间睦设计
空间整体在保留原建筑风貌的情况下,以陈列功能为第一考量,以阅读环境氛围营造为重点,加以不破坏空间原有内部格局的保护性设计,将湖光里书店的温暖静谧,赋能于清新自然的文创零售空间,打造出南河头最赋江南气质的森系书店。
Space as a whole in the case of retain the original architectural style, taking display function as the first consideration, focusing on the reading atmosphere build, meanwhile it does not destroy the space pattern of the original internal protective design warming the bookstore and forming the most natural wild bookstore in Jiangnan area.
▼暮色下的湖光里书店,HUGUNAGLI bookstore in the twilight ©JYDP间睦设计
▼平面布局图,layout plan ©JYDP间睦设计
▼立面图,elevation ©JYDP间睦设计
项目名称:湖光里文创零售书店
项目地址:嘉兴平湖南河头历史文化街区
项目设计 & 完成年份 2019.5-2019.10
设计公司:JYDP间睦设计
主创:孙雅馨
设计团队:李霖、王莎莎、张曼
项目类型:商业零售
项目面积:384㎡
摄影版权:JYDP间睦设计
图片摄影:Raitt Liu 刘瑞特
客户:大赞光合
品牌:1.多乐士——乳胶漆, 2.汇丽——PC板


😊