耀街住宅Yew House是温哥华的传统住宅,经过翻新以适应当地的老化。该项目由温哥华设计公司Campos Studio和多伦多工业设计师Tom Chung合作完成。紫杉屋坐落在基西拉诺的一个小角落里,基西拉诺是温哥华最早的工人阶级社区之一。
这座房子始建于1907年,经过了零星的翻修,在20世纪70年代,它的大部分土地被出售,以适应邻近的开发项目。由于这片土地的出售,现在已经不可能在这片土地上建造新房子了。因此,该计划变成了对现有房屋进行升级,将其拆除到钉孔,重新绝缘,并对外壳进行地震升级。
业主们在这个适宜步行的社区中养育了他们的家庭,他们想要找到一种方法来翻新房子,以适应他们向半退休的空巢老人的转变,以及从退休到步入老年。

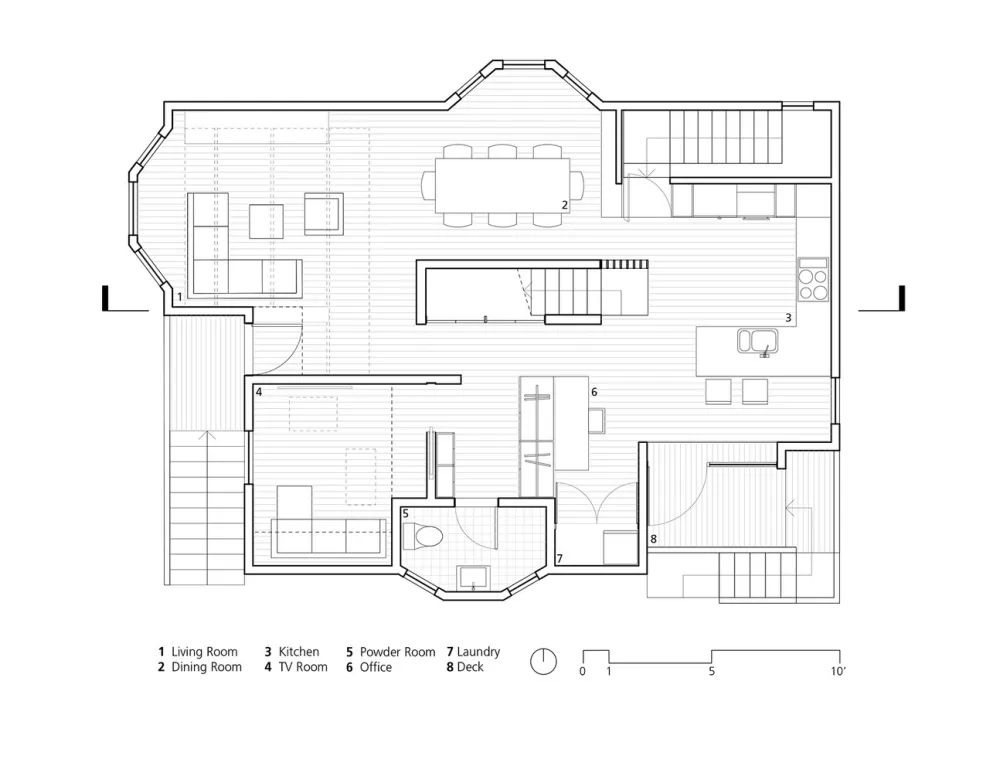
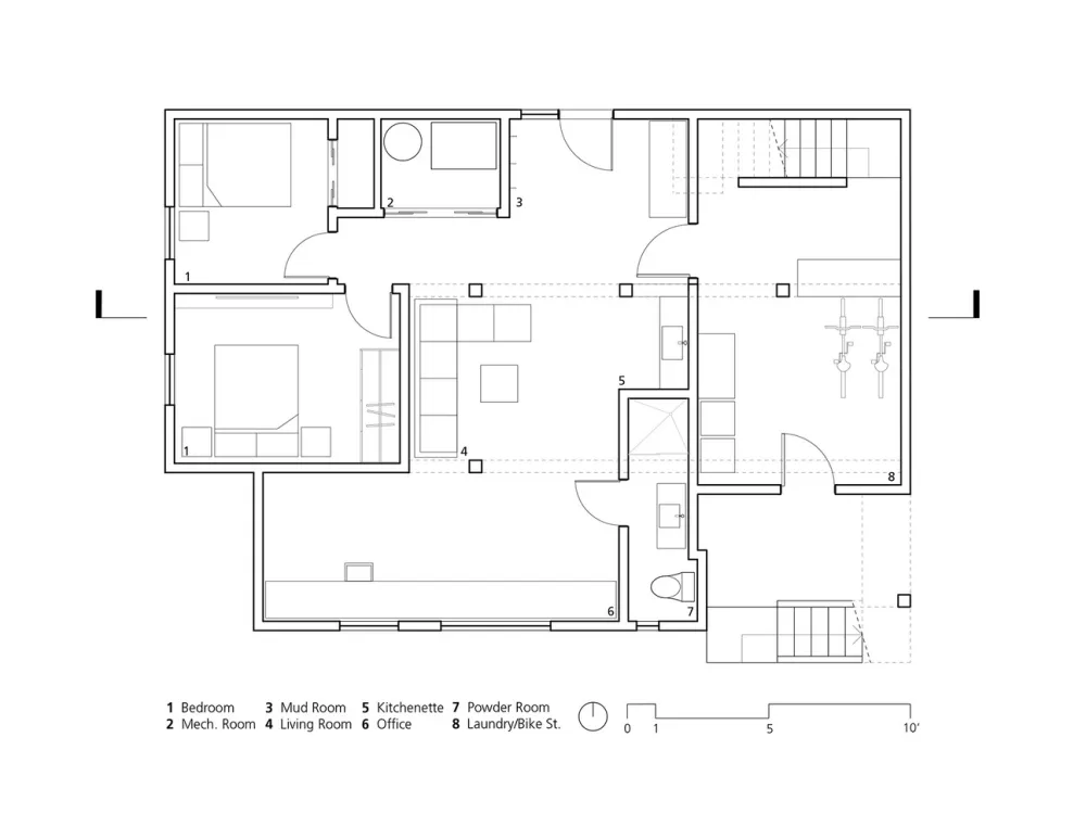
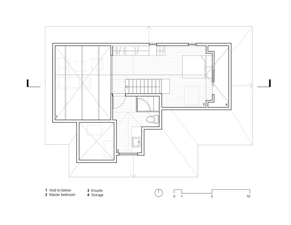
该计划成为创建一个明亮的现代开放阁楼风格的生活区,为来访的孩子和朋友提供一个不显眼的私人客人区。之前的阁楼被改造成一个主卧室和带隐藏存储的套房阁楼,而一楼的卧室现在是一个自给自足的客区,通过厨房木匠厂的一扇隐蔽的门与主生活空间相连。主楼被设计成可转换成一层的生活空间,预计电视室和化妆室最终会被改造成主卧室,这样这对夫妇就可以老去。

饰面始终保持耐磨性和永恒。地板,包括楼梯,都是欧洲白橡木的。木制品是橡木和波罗的海桦木的结合。天花板由黑色金属扣板支撑,与黑色金属屏风和金属制品相呼应。在拆除过程中,在干墙后面发现了一个原来的火场。

它被修复,并有助于界定餐厅和生活区。该项目包括Tom Chung设计的一些定制灯具,而家具则是客户拥有的复古家具和当代设计作品的混合体。


位置:加拿大温哥华
面积: 2400.0 ft2
项目年份: 2018
摄影师:Conrad Brown, Andrew Latreille

