一个好的空间不应仅仅提供精美的图像就满足了。Labotory希望通过赋予Oriente咖啡厅独特的细微差别和氛围来设计一个享受新体验的地方。











Cafe Oriente位于汉南洞尽头,出售手工制作的韩国甜点和咖啡。Labotory试图通过现代简约来捕捉精致东方美的和谐。









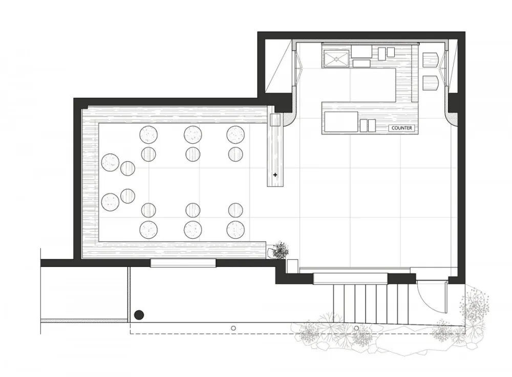
C形结构,像传统的韩屋庭院,白色天花板饰面让人想起韩国纸,咖啡屋空间表现为屋檐的弹性曲线,实木座椅如山脊地板,粗糙和坚硬的花岗岩对比构成这个空间的所有元素在座位上都井井有条,同时营造出舒适的氛围。坐下来享受一杯咖啡,就好像您坐在地板上欣赏小花园一样。这可能是一种接受喝咖啡行为的精髓和精致形式的空间能量的体验。




