这是一个具有当代精神和时尚的设计理念的公寓设计项目。该公寓位于基辅市中心,由充满活力而年轻的工作室Dolgopiatova设计师专为有两个孩子的家庭而设计的。
Here is an apartment project with contemporary spirit and stylish execution of the design idea. Located in central Kiev and designed by young and dynamic studio Dolgopiatova Design, the apartment is designated for a family with two children.


Oksana Dolgopiatova运用了永恒的装饰图案,大胆的颜色,复古的气息,和时尚的物品形成一种中性风格的组合元素空间。非常流行的城市豪华风格,包括黄铜元素和时髦的灯具,大理石表面并置混凝土覆盖层,以及有趣的复古细节(在这种情况下;纹理图案和一些标志性的家具),在这个现代的设计组合中以艺术和时尚的方式摆放。
Oksana Dolgopiatova used an eclectic mixture of timeless shapes, bold colors, vintage hints, and trendy insertions. The very popular stylistic of urban luxury that includes brass elements and trendy lamps, marble surfaces juxtaposed to concrete claddings, and the playful vintage details ( in this case; textural patterns and some iconic furniture pieces), works in an artistic and stylish manner in this modern design composition.


定义个性的设计方案融合了实用性和艺术创新。大胆的色彩是由时尚的黑色和独特色调为主的花岗岩Almadin(红色和红紫色)组成。主入口富有表现力的纹理、材料和颜色序列为这个非常迷人和有特色的空间增添了另一个焦点。门的艺术轮廓的灵感来自米兰的旧大厦大门。
Character-defining design solutions entwine practicality and artistic innovations. The bold color palette is dominated by the entwinement of trendy black and characteristic shade of the granite stone Almadin – red and red-violet. The expressive textural, material, and color sequence of the main portal gives additional focal strength to this very charming and characteristic feature of the design project. The doors artistic silhouettes are inspired by Milan’s old mansions gates.


另一个引人注目的是遍布公寓的圆形图案和装饰品—从客厅窗帘上的复古图案到艺术灯装置(尤其是主卧室中的灯具),从小的装饰性细节,家具到装饰结构,甚至浴室的洗脸台和浴缸。每个房间的厨房桌子、沙发、走廊上方的组合灯、纹理图案和地毯等都有不同的圆形。这些艺术和独特的设计方案统一了风格和特征色彩构成了室内空间。
Another eye-catching design touch are the circular shapes and ornaments spread throughout the apartment– from the retro pattern on the living room curtains to the artistic lamps installations ( especially the one in the master bedroom), from small decorative details and furniture pieces to decor structures and even bathroom basins and tubs. Different circular shapes can be found in each room’s composition – lamps above the kitchen table, sofa, corridor, textural patterns and rugs, and so on. These artistic and unique design solutions unify the stylistic and the characteristic color composition of the interior.



















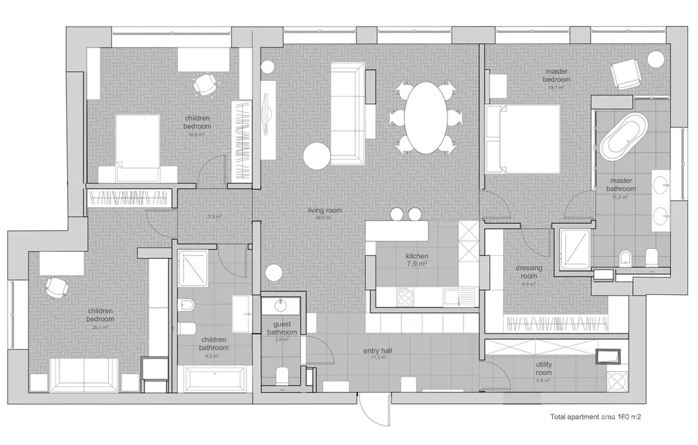
∇ 平面图

主要项目信息
项目名称:Almadin公寓
项目位置:乌克兰基辅
项目面积:160平方米
项目类型:住宅空间/公寓设计
完成时间:2019
设计师:Oksana Dolgopiatova
摄影:Andrey Bezuglov

