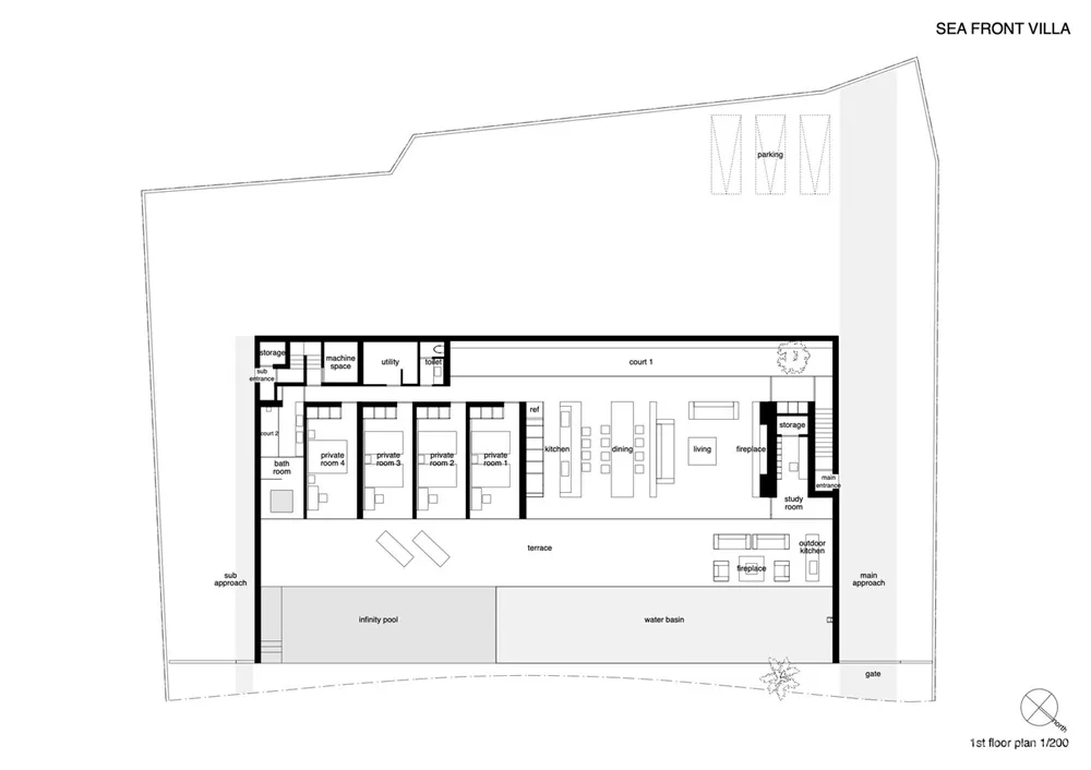
这栋建筑是一幢单层的别墅,位置优越,可俯瞰大海。客厅、餐厅、厨房、私人房间、浴室和书房都在北侧,在那里我们可以看到大海。每个房间都有一个大的开口窗框,无缝连接露台、游泳池、花园和大海,并可以欣赏美丽的海景。南侧通过在客厅、餐厅和厨房设计一个具有迎风的庭院,以避开直射的阳光,从而避免直射的阳光直接进入室内。
This building is a one-story villa on a site with a great location overlooking the sea. Living, dining, kitchen, private room, bathroom and study planned on the north side where we can see the sea. Each room has a large opening sash that seamlessly connects the terrace, pool, basin and the sea, and sees beautiful sea views. The south side plans to take in the wind while avoiding direct sunlight by planning a courtyard in the living, dining, and kitchen so that direct sunlight does not enter the building directly.




由于建筑基地和大海之间隔了一条道路和一道灌木林,因此可以通过将第一层从地面抬高2.5m来解决,以确保每个房间都可以看到海景。为了实现最小的空间,仅使用家具制作的间接照明。此外,业主通过安排新的照明设备来规划最大的空间。
Because the site has a road between the site and the sea, it is solved by raising the first floor level 2.5m from the road surface to ensure the sea view from each room and not to see the building from the road. In order to realize a minimal space, only indirect lighting made of furniture was used. In addition, a maximum space was planned by arranging new lighting by the owner.














∇ 总面图

∇ 平面图

∇ 剖面图

∇ 立面图


主要项目信息
项目名称:海滨别墅
项目位置:日本
项目类型:住宅空间/海滨别墅
完成时间:2019
项目面积:256.0平方米
设计公司:Shinichi Ogawa & Associates
摄影:Pirak Anurakyawachon

