Studio 10近期为原创极简主义女装品牌幾樣设计完成的海岸城概念店室内设计试图探讨建筑材料中光的透射、折射、反射与织物的互动关系。
在这个120平米的空间中,通过反射、半透明及透明材料的叠加和运用,搭配Kvadrat RafSimons系列灰绿色绒布垂帘及柔和细腻的人工照明,Studio 10希望创造出丰富的空间层次和空灵的空间维度,与品牌极少主义而富有灵气的概念精髓暗合,也与其秋冬系列以羊毛、羊绒、丝绒、灯芯绒等富有质感的厚重织物为主的材质形成反差对比。
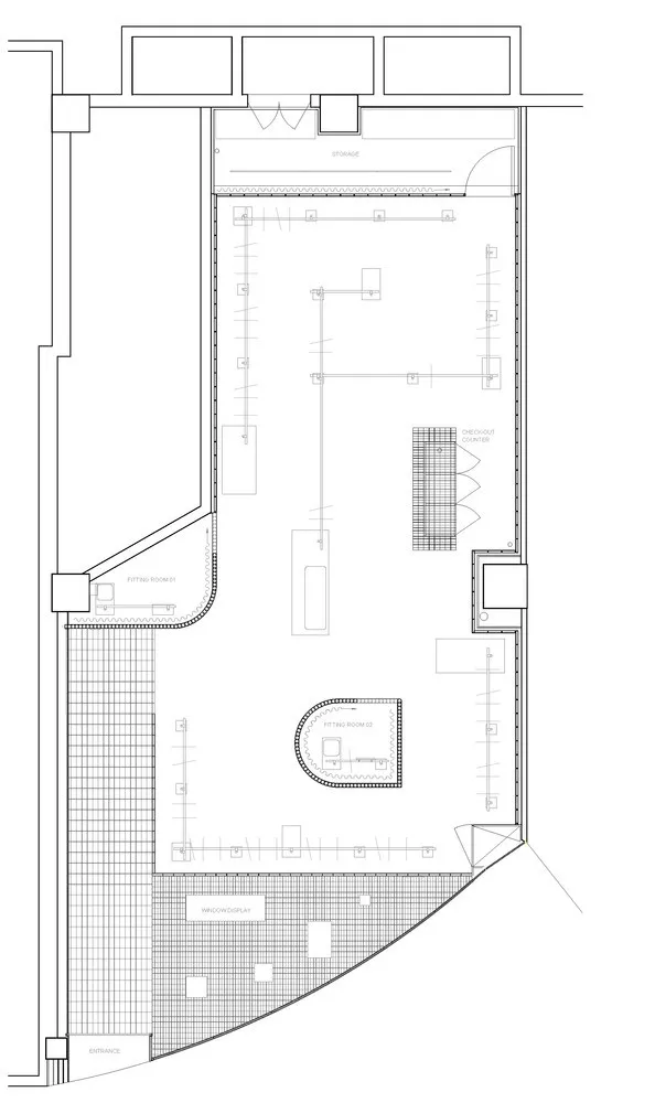
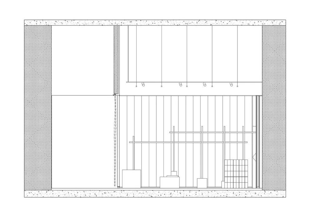
入口橱窗地面和通道以玻璃砖铺就,底部隐约衬出幾樣特有的灰绿色漆,与侧壁的半反射玻璃、背景淡蓝色透明玻璃砖矮墙和镜面吊顶产生重叠和投影。沿通道绕过玻璃砖墙步入铺内,整个空间沿墙面铺满了灯芯纹U型玻璃,背衬银色镜面材质,经过折射和反射隐约透出淡淡的绿。由透明亚克力空心管排列围合而成的更衣室仿若漂浮在空间中的一方小舞台,亚克力圆管背衬品牌特有的灰绿色绒布垂帘,保证试衣间私密性的同时亦兼具舞台幕布功能;垂帘在更衣室不使用时完全拉开,更衣室内外隐约可见,暧昧而富有戏剧性。
店铺内挂衣杆均采用定制磨砂亚克力棒,以银色脚手架金属连接件组装成高低、角度均可调节的高适应性服装展示系统;亚克力立杆底部固定于绿色大理石基座上,后者根据功能需要尺寸不一,可以兼做展示台、座凳或置物台等。
店内地面铺设定制的灰绿色水磨石,嵌有大块的墨绿色和白色大理石骨料,体现了品牌对材质和工艺的极致追求。项目甲方幾樣团队在项目的设计和执行过程中与Studio 10进行了紧密的合作。
室内设计: Studio10
面积: 120.0 平方米
项目年份: 2019
摄影师: 张超
主创建筑师:周实
设计团队:Cristina Moreno Cabello,黄安,莫纯煇,黄子夏,于越(实习),陈菲菲(项目助理),包嘉晓(项目助理)
业主:幾樣

