感谢来自 好好设计 GOOD²Design 的商业项目案例分享:
潮汕的南边作为实业发达区域,密集的人口,大型机械,与全球不远万里前来采购的外宾构成了这座城市的画像。基于此对于高品质服务业态有着刚性需求。
The south side of Shantou is an industrially dense area with a large population and developed industry. As a product export city, foreign customers often visit bulk purchases. On this basis, high quality and international SPA services are required.
ไปทางทิศใต้ของซัวเถาเป็นเขตอุตสาหกรรมที่มีประชากรหนาแน่นมีประชากรจำนวนมากและอุตสาหกรรมที่พัฒนาแล้ว โดยการส่งออกผลิตภัณฑ์จากเมืองและดึงดูดลูกค้าต่างประเทศเพื่อซื้อสินค้าจำนวนมากเราต้องการบริการสปาคุณภาพระดับสากล

【泰象】源自泰国的概念,长于潮汕并辐射全国的一个“正宗泰式massage”管理机构,本案【泰吉】便是其中之一的高阶子品牌。
[Thai Elephant] is derived from the concept of Thailand. It is an “authentic” Thai massage management organization, [Taiji] belongs to its high-end brand, established in Shantou, and quickly radiated across the country.
[ช้างไทย] แนวคิดจากประเทศไทยเป็น บริษัท จัดการนวดแผนไทย “ของจริง” แบรนด์ในเครือ [ไทยลัคกี้] เป็นแบรนด์ระดับสูงที่จัดตั้งขึ้นในซัวเถาซึ่งกำลังขยายตัวอย่างรวดเร็วทั่วประเทศ

【泰象massage】管理方委托设计师林彦先生与他创立的【好好设计GOOD²Design】设计事务所进行全案设计。我们试图颠覆区域对于“高级理疗”的认知偏差,将在原有的建筑物内部进行全面改造。力图打造一座工业大城之中的“城市绿洲”。
[Thai Elephant] management commissioned designer Lin Yan and his team [Good Design] to carry out the entire case design. We are trying to subvert the cognitive bias of “Thai physiotherapy” in the region and will be fully remodeled within the original building. Trying to establish an “urban oasis” in a large industrial city.
[ช้างไทย] ทีมผู้บริหารมอบหมายให้นักออกแบบหลินและทีมของเขา [การออกแบบที่ดี] ตลอดการออกแบบโครงการเราพยายามคว่ำอคติของ“ กายภาพบำบัดไทย” ในพื้นที่และจะออกแบบใหม่ในอาคารเดียวกันพยายามสร้าง “เมืองโอเอซิส” ในเมืองอุตสาหกรรมขนาดใหญ่

【初极狭,才通人。复行数十步,豁然开朗。】空间位于建筑物顶层,为了让来宾得到充分的过渡,我们单独建造一条专属的垂直动线,仿若一条时空隧道般,带客户穿梭至泰国秘境。外向的大门既是满足了风俗与承载了机能,亦分外显眼引人入胜。让人不禁多窥两眼,试图一探究竟。
[The beginning is extremely narrow and can only be passed slowly. Suddenly everything is getting bigger.] This space is on the top floor of the building. In order to keep the quiet transition of the guests unaffected, we built a separate vertical moving line, like a time-space tunnel, bringing customers to the wonderland of Thailand. The exterior door not only meets customs and carrying functions, but is also particularly eye-catching and fascinating. People can’t help but look inside and try to find the answer.
[จุดเริ่มต้นแคบมากและสามารถผ่านได้ช้าเท่านั้น ทันใดนั้นทุกอย่างก็เริ่มเติบโต ] บริเวณนี้ตั้งอยู่ที่ชั้นบนสุดของอาคาร สำหรับผู้ที่ชอบความสงบเราสร้างเส้นแนวตั้งที่เป็นอิสระเช่นอุโมงค์อวกาศเพื่อนำลูกค้าไปสู่ดินแดนมหัศจรรย์ของประเทศไทย ประตูเคารพประเพณีและสะดุดตามากและผู้คนไม่สามารถมองเห็นการตกแต่งภายในได้โดยตรง แต่ลองหาคำตอบ


为了营造出静怡的氛围,GOOD²Design在内部造景,双层玻璃的运用隔绝了外部的喧闹,有效的隔音降噪。同时精油香薰的使用,令来者倍感放松与宁静,用泰国原产浴盐为来宾沐足的仪式是来自【泰吉】古法最真挚的祝福。
In order to create a calm atmosphere, [GOOD Design] is internally landscaping and uses double-glazed glass to isolate the outdoor temperature, effectively reducing noise. At the same time, the use of essential oils makes people feel relaxed and quiet. The welcoming ceremony of using Thai native bath salt as a guest is the most sincere blessing of ancient [Tai Chi].
สร้างบรรยากาศที่เงียบสงบ [การออกแบบที่ดี] สร้างภูมิทัศน์ในอาคารใช้กระจกสองชั้นเพื่อแยกอุณหภูมิภายนอกลดเสียงรบกวนได้อย่างมีประสิทธิภาพในขณะที่ใช้น้ำมันหอมระเหยเพื่อให้คุณรู้สึกผ่อนคลายและสงบสุข เท้าทำความสะอาดเกลือจากประเทศไทยเป็นพรที่จริงใจที่สุดของ [ไทยลัคกี้]




设计的过程中受到普吉岛延绵的山峦启发,弧形与重叠的山墙形成了雕塑,引导来访者穿梭在这波晶格化的热带丛林之中。亦好似郁郁葱葱的森林提供了天然的视线盲区,极高的私密性并不存在人为生硬的屏障,一气呵成行云流水。吸引来宾在空间中不断深入探索。
Inspired by the rolling hills of Phuket, the curved and overlapping gables form a sculpture that guides visitors through the pixelated tropical jungle. It also acts like a lush forest that provides a natural blind spot. A high degree of privacy is not a strict barrier, but a process. Attract guests to explore freely.
ได้รับแรงบันดาลใจมาจากเนินเขาของจังหวัดภูเก็ตหน้าจั่วที่โค้งมนและทับซ้อนกันเป็นรูปปั้นที่นำผู้เข้าชมผ่านป่าเขตร้อนที่มีพิกเซล นอกจากนี้ยังทำหน้าที่เหมือนป่าไม้เขียวชอุ่มซึ่งให้จุดบอดตามธรรมชาติ ความเป็นส่วนตัวระดับสูงไม่ใช่อุปสรรคอย่างเข้มงวด แต่เป็นกระบวนการ ดึงดูดแขกให้มาสำรวจอย่างอิสระ




【好好设计】在空间中轴线处“开天窗”让光线驱散了大平层中段的压抑,双层中空玻璃及智慧调光卷帘可以分析日照及天气的变化,有效调节照度及过滤紫外线,【沐浴吉光】享受这份自然的恩赐。




“我们希望这里不存在幽闭的空间”林彦先生如是说,他通过巧思让“中庭的光”找到一丝刻意的罅隙,柔柔地渗透到房间内,挥洒在微粒质感的墙面上,每个来宾都被包裹在这个安全感极强的专属空间,享受着这缕私享的【吉光】所带来的暖意和无与伦比的“海之音”身心惬意。
“We hope there is no claustrophobic space here.” Mr. Lin Yan said that he used a clever idea to let the “light of the atrium” find a deliberate gap, gently penetrate the room and shake on the textured wall. All guests are wrapped in this unique space, very safe and enjoy an unparalleled “sound of the sea”.
“ เราหวังว่าจะไม่มีพื้นที่มืด” หลินกล่าว เขาใช้ความคิดอันชาญฉลาดเพื่อนำทาง “แสงแห่งเอเทรียม” เพื่อจงใจเว้นช่องว่างค่อยๆเจาะเข้าไปในห้องและส่องแสงสีบนผนัง แขกแต่ละคนจะถูกห่อในพื้นที่ที่ไม่ซ้ำกัน มันปลอดภัยและสนุกมาก “เสียงแห่งทะเล” ที่ไม่มีใครเทียบ


贵宾房由来自泰国的21个小岛分别命名,延续了【泰吉】充满故事性的叙事环境,仿若穿梭在不同的岛屿之中,各具特色。
Named after 21 small islands from Thailand, the VIP room continues the storytelling environment of Taiji, just like the shuttle between different islands.
ห้องวีไอพีนั้นตั้งชื่อตาม 21 เกาะเล็ก ๆ ในประเทศไทย ห้องวีไอพียังคงสภาพแวดล้อมการเล่าเรื่องของ [ไทยลัคกี้]และเดินเล่นระหว่างเกาะต่างๆ

自然形成可供人小憩的空间。中间种植热带植物,遮阴的同时,形成空间的聚合性。设计了部分座椅,鼓励来宾逗留与社交。体验型经济驱动下,将周边产品精心陈列,这些泰国制造的产品极具观赏性,亦是中泰经贸的缩影。采光井的设计提升了空间品质亦降低了能耗,【坐井观天】换个视觉欣赏四季更替。
Of course, it creates a space for people to rest. Planting tropical plants in the middle while shading, forming a spatial polymerization. Some seats have been designed to encourage guests to stay and socialize. Driven by an experience-based economy, the products are carefully displayed. These Thai products are very ornamental and are the epitome of Sino-Thai trade. The design of the light well improves space quality and reduces energy consumption. [Sit in the sky] to appreciate the changes in the four seasons.
แน่นอนมันสร้างพื้นที่สำหรับคนที่จะพักผ่อน พืชเมืองร้อนเติบโตอยู่ตรงกลางและร่มกันแดดกลายเป็นพื้นที่ความโน้มถ่วงและที่นั่งถูกออกแบบมาเพื่อกระตุ้นให้แขกมาสังสรรค์ บนพื้นฐานของเศรษฐกิจเชิงประสาทสัมผัสผลิตภัณฑ์ได้รับการสะท้อนอย่างพิถีพิถัน ผลิตภัณฑ์ไทยเหล่านี้มีความสวยงามและเป็นข้อพิสูจน์ของการค้าจีน – ไทย การออกแบบแสงธรรมชาติที่ดีช่วยปรับปรุงคุณภาพของพื้นที่และลดการใช้พลังงาน [นั่งอยู่บนท้องฟ้า] เพื่อชื่นชมการเปลี่ยนแปลงในสี่ฤดูกาล




艺术作品【无齿】警示着人类切勿为一己私欲,大量猎杀导致非洲大象濒危,谴责狩猎者在利益趋动下,无下限的猎牙行为,野生大象数量急速减少中,呼吁保育工作需得到正视与政策保护。
The work of art [No Teeth] warns that human beings cannot be selfish. A large number of hunting has caused the harm of African elephants. They condemn the hunter’s interests-driven, unrestricted hunting behavior, and the number of wild elephants is rapidly decreasing and needs attention. Need protection.
งานศิลปะ [ไร้ฟัน] เตือนว่ามนุษย์ไม่สามารถเห็นแก่ตัวได้ การล่าช้างแอฟริกาจำนวนมากที่ใกล้สูญพันธุ์แล้ว พวกเขากล่าวหาว่านักล่าให้ความสนใจกับพฤติกรรมการล่าสัตว์ที่ไม่ จำกัด และเรียกร้องให้มีการแก้ไขและป้องกันนโยบาย

贵宾SPA房间享受定制的水疗服务,SPA的愉悦身心,为内心囤积的压力、疲惫、惶惑找到一个出口。恍若隔世,桃源与喧嚣,仅在一墙之隔。
The VIP Spa offers bespoke spa services, a delightful and unforgettable spa, and an outlet for stress, exhaustion and restlessness. Like a secret environment, Taoyuan and the city center are separated by a wall.
VIP Spa ให้บริการทรีทเมนท์สปาที่น่าพอใจความเครียดและความเหนื่อยล้า เช่นสภาพแวดล้อมที่เป็นความลับเถาหยวนและใจกลางเมืองมีเพียงกำแพงเท่านั้น



身与心经过洗礼,细细的享受着窗外小雨,餐厅是“旅途”的终站,精致的佳肴出自泰国米其林大厨之手。在此听觉、嗅觉、视觉、味觉、触觉、得以全面满足,身临其境泰正宗。
After the massage is completed, the body and mind will enjoy the light rain outside the window. The restaurant is the end of the journey. Exquisite cuisine comes from the chef of Michelin, Thailand. Here, the senses of hearing, smell, sight, taste and touch are fully satisfied, and they are immersed in real Thailand.
หลังจากการนวดร่างกายและวิญญาณดูเหมือนจะถูกทำให้บริสุทธิ์โดยสายฝน การเดินทางสิ้นสุดลงในร้านอาหารและอาหารที่ประณีตมาจากเชฟมิชลินในประเทศไทย ที่นี่ความรู้สึกของการได้ยินกลิ่นสายตารสชาติและการสัมผัสมีความพึงพอใจอย่างเต็มที่และพวกเขาจะถูกแช่ในประเทศไทย




“象鼻神” 毗那也迦,成就一切善事,消灭灾祸,守护【泰吉】
Complete all good deeds, destroy disasters, guard [Tai Chi]
ทำสิ่งที่ดีให้เสร็จสมบูรณ์ทำลายภัยพิบัติยาม [ไทยลัคกี้]

∇ 设计思路推演(GIF) Design idea deduction

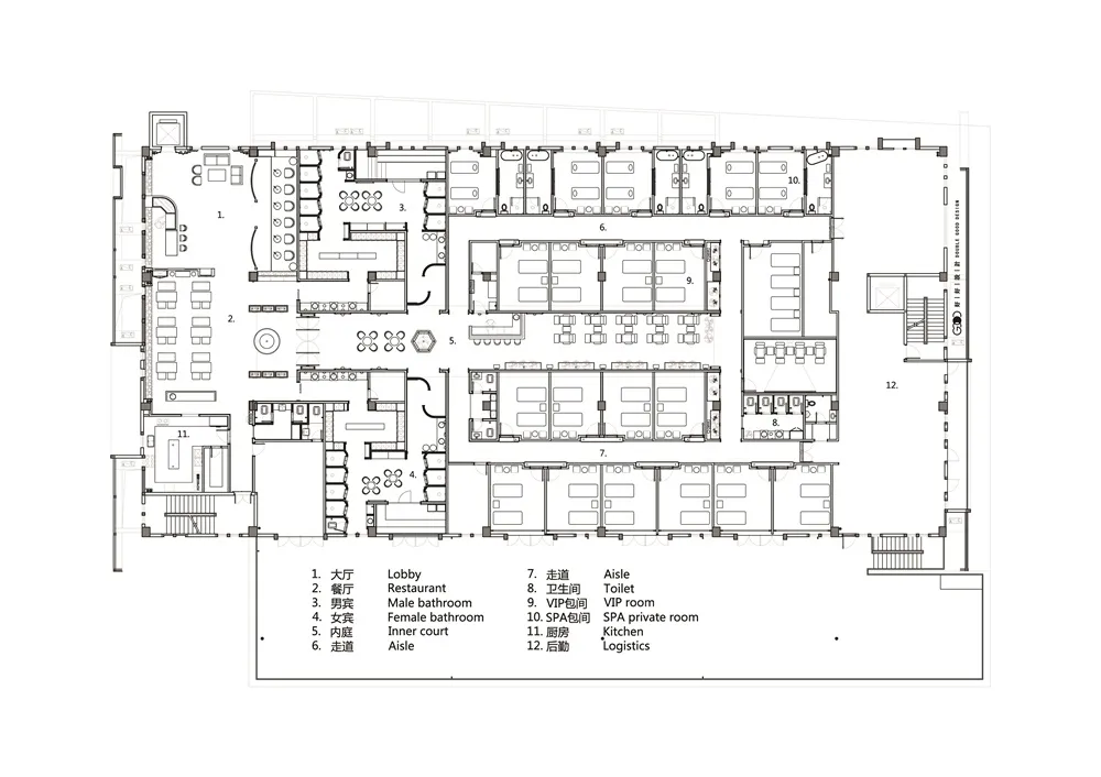
∇ 平面图 Floor plan

完整项目信息
项目名称:泰吉
设计方:好好设计
联系邮箱:[email protected]
项目设计&完成年份:2018年12月(启动设计)2019年8月(项目竣工)
主创及设计团队:林彦&丹仪&怡敏
项目地址:中国/广东省/汕头市
建筑面积:1600㎡
摄影版权:灿铭&林荟摄
合作方:软装:好好优选/工程:文锦工程
主要材料:大理石/金属/手工涂料/木/墙布/马赛克/线型灯/工艺玻璃
撰文:林彦
Project name:Tai Chi
E-mail:[email protected]
Design:DOUBLE GOOD DESIGN
Design year & Completion Year:December 2018 (starting design) August 2019 (project completed)
Leader designer & Team:LinYan & DanYi & YiMin
Project location:China/Guangdong/Shantou
Gross Built Area (square meters):1600㎡
Photo credits:CanMing & Lin-Vision
Partners:Casa:GOOD SELECT Construction:WENJIN CONSTRUCTION
Main material:Marble / Metal / Hand Paint / Wood / Wallcovering / Mosaic / Line Light / Craft Glass

