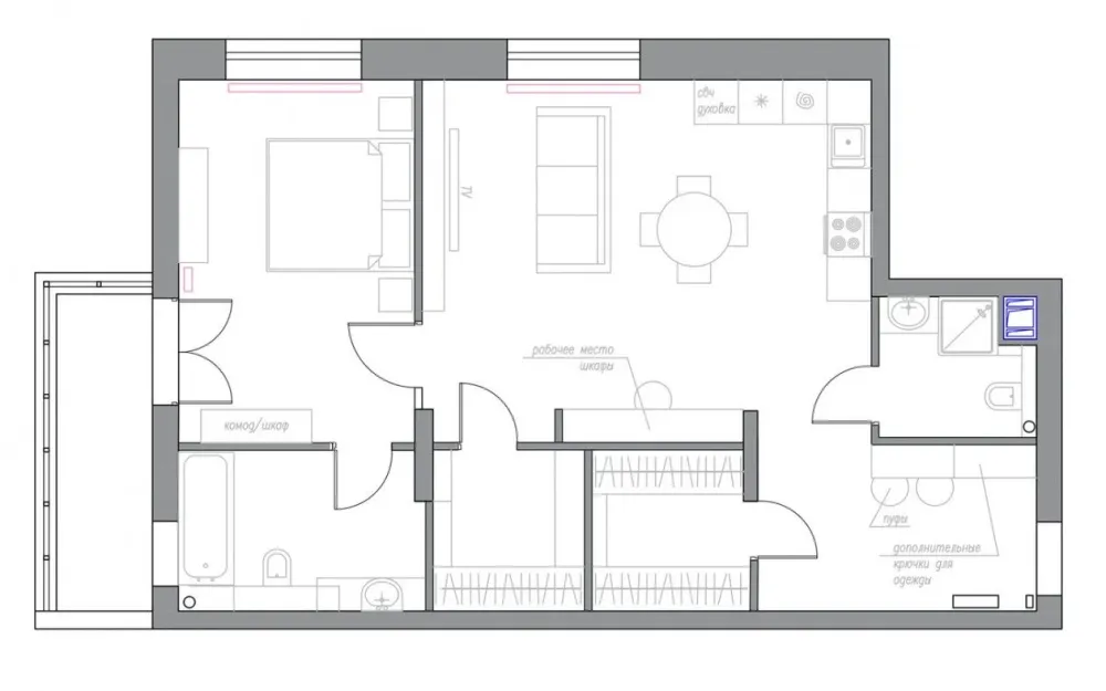
Anna Sergeeva新作,该公寓的业主是一位年轻的女性,我们看到了从设计师女性角度出发而带来的优雅与甜美,不是过分的渲染,却是恰到好处的点缀,身处其中,便可以感受到那份悠然自得的精致。
开放式客,餐厅是空间更加宽阔,敞亮。整体色调选用高级灰做基调,经典蓝做点缀使空间更加绚丽优雅,透露出女性特有的知性美。
主卧色调柔和给人舒适的感觉,床头的几何圆形吊灯给整体添加了几分温柔。鲜花给空间带来了自然,生机勃勃的气息。
Anna Sergeeva新作,该公寓的业主是一位年轻的女性,我们看到了从设计师女性角度出发而带来的优雅与甜美,不是过分的渲染,却是恰到好处的点缀,身处其中,便可以感受到那份悠然自得的精致。
开放式客,餐厅是空间更加宽阔,敞亮。整体色调选用高级灰做基调,经典蓝做点缀使空间更加绚丽优雅,透露出女性特有的知性美。
主卧色调柔和给人舒适的感觉,床头的几何圆形吊灯给整体添加了几分温柔。鲜花给空间带来了自然,生机勃勃的气息。
之前
